
Verify availabilityAdd to lists:✕

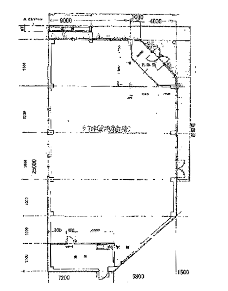
Handling number H-112 (used property in stores). Plot: 1,153.49m2 (348.91 ping). Building: Store, 321.60m2 on the first floor. New construction date: July 1985, Showa 60.取扱番号 h-112(店舗中古物件)。地積:1,153.49m2(348.91坪)。建物:店舗、一階321.60m2。新築年月:昭和60年7月(1985年7月)。
| Land:土地面積 | 1153 m² |
|---|---|
| Building:建物面積 | 322 m² |
| Scale:建物規模 | One-story house平屋建て |
| Structure:構造 | Steelgalvanized steel thatched one-story house鉄骨造亜鉛メッキ鋼板葺平屋建て |
| Built in:建築年 | 1985 |

Steel frame flat roof four-story building, shops and residences. The land area is 64.28 m2, and the total number of buildings is 174.55 m2. Gono Line Noshiro Station 10 minutes walk.鉄骨造陸屋根 四階建、店舗・居宅。土地面積64.28m2、建物合計174.55m2。五能線 能代駅 徒歩10分。
| Land:土地面積 | 64 m² |
|---|---|
| Building:建物面積 | 174 m² |
| Scale:建物規模 | Four-story building四階建 |
| Structure:構造 | Steel frame flat roof鉄骨造陸屋根 |
| Built in:建築年 | 1983 |

Sales have resumed! 1 million yen / Daisen City Kyowa Former Hotel (Closed) Site 1978.2 tsubo Multi-purpose use * There is a demolition estimate for all buildings販売再開しました!100万円/大仙市協和の旧ホテル(廃業)敷地1978.2坪 多用途活用 ※全建物の解体見積書あり
| Land:土地面積 | 6539 m² |
|---|---|
| Building:建物面積 | 1158 m² |
| Scale:建物規模 | 3 stories3階建 |
| Structure:構造 | SRC constructionSRC造 |
| Built in:建築年 | 1990 |

Handling number H-116 (used office property). Land: residential land. Application area: special industrial area. Building payout ratio/floor area ratio: 60% / 200%.取扱番号 h-116(事務所中古物件)。地目:宅地。用途地域:特別工業地区。建ペイ率/容積率:60% / 200%。
| Land:土地面積 | 1707 m² |
|---|---|
| Building:建物面積 | 136 m² |
| Scale:建物規模 | One-story house平家建 |
| Structure:構造 | Concrete block galvanized steel roofing Heike buildingコンクリートブロック造亜鉛メッキ鋼板葺 平家建 |
| Built in:建築年 | 1990 |

Auction (period bidding). The property is a registered gas station, and the current situation is a store and warehouse. There are multiple plots of land (1,124.72 m² in total). Bidding period: November 25 - December 3, 2025.競売(期間入札)。物件は登記上給油所、現況は店舗・倉庫。土地は複数筆(合計1,124.72m²)。入札期間:2025年11月25日〜12月3日。
| Land:土地面積 | 1125 m² |
|---|---|
| Building:建物面積 | 78 m² |
| Scale:建物規模 | Heike building (1 floor)平家建 (1階建て) |
| Structure:構造 | Reinforced concrete flat roof one-story house building鉄筋コンクリート造陸屋根平家建 |
| Built in:建築年 | 1968 |

Refueling station (site area 1,129 m², total floor area 141.78 m²). Auction (Akita District Court Odate Branch) Bidding period: November 25 to December 3, 2025.給油所(敷地面積1,129m²、延床面積141.78m²)。競売(秋田地方裁判所大館支部)出品、入札期間:2025年11月25日〜12月3日。
| Land:土地面積 | 1129 m² |
|---|---|
| Building:建物面積 | 142 m² |
| Scale:建物規模 | 2 stories2階建 |
| Structure:構造 | Steel structure galvanized steel sheet 2-story building鉄骨造亜鉛メッキ鋼板ぶき2階建 |
| Built in:建築年 | 1975 |

There is also a sale at a limit price! Hotel Seaside Annex (currently closed)" can be newly opened or converted to a dormitory or dormitory指値で販売もあり!「ホテルシーサイドアネックス(現在休業)」新規営業、もしくは宿舎・寮などへの転用も可
| Land:土地面積 | 1759 m² |
|---|---|
| Building:建物面積 | 928 m² |
| Scale:建物規模 | Second floor2階 |
| Structure:構造 | Heavy steel construction重量鉄骨造 |
| Built in:建築年 | 1984 |

Akita prefecture, located in northern Japan, offers a unique blend of rural charm and scenic beauty, ideal for those seeking a tranquil lifestyle. Known for its rich cultural heritage, breathtaking nature, and hot springs, Akita is characterized by its four distinct seasons, making it a perfect destination for nature lovers and outdoor enthusiasts. The region is famous for its rice production and local cuisine, such as Akita Kanto Matsuri’s rice dishes, which are highly rated for their freshness and quality. Finding affordable housing in Akita is relatively easier than in major urban centers like Tokyo or Osaka. The real estate market in Akita tends to offer more spacious properties at lower prices, making it attractive for families and individuals looking for budget-friendly options. Rural locations, in particular, feature lower living costs and housing prices, allowing individuals to enjoy a comfortable standard of living without the financial strain. In terms of quality of life, Akita excels with its low crime rate, strong community ties, and access to nature, promoting a relaxed lifestyle. The cost of living in Akita is significantly lower than in metropolitan areas. While job opportunities may be limited compared to urban regions, remote work options are becoming more prevalent, providing flexibility for relocation. Overall, Akita Ken offers a peaceful living environment with a balance of affordability and a welcoming community, making it an appealing destination for those seeking a lifestyle change in Japan.
AllAkiyas.com puts at your disposition thousands of Japanese real estate listings of properties available for sale or rent. Our extensive listings include detached houses, townhouses, apartments, commercial spaces, and vacant lots. We place a special focus on traditional vacant houses, known as akiya (or kominka in rural areas), and traditional townhouses, or machiya. You can easily search for properties across all of Japan's prefectures using your specific criteria.