
Verify availabilityAdd to lists:✕

Consultation is required as the property price is undecided (the listed price is displayed as a provisional amount)
An old private house with a Japan garden and transoms where you can enjoy the four seasons. Tourist spots such as Takefu IC, Hokuriku Shinkansen Echizen Takefu Station, and Washi Village are also nearby, making it ideal for use as a soba restaurant or café. There are also fields and it has a quaint appearance.物件価格は未定のため要相談(表記価格は仮金額で表示)
四季を楽しめる日本庭園と欄間が残る古民家。武生IC・北陸新幹線越前たけふ駅・和紙の里などの観光地も近く、そば処やカフェなどお店としての活用に最適。畑もあり、趣ある佇まいです。
| Land:土地面積 | 3094 m² |
|---|---|
| Building:建物面積 | 436 m² |
| Scale:建物規模 | 2 floors above ground地上2階 |
| Structure:構造 | Wooden木造 |
| Built in:建築年 | 1951 |

A spacious 4DK wooden detached house, appearing in a quiet residential area in Takefuyanagi-cho, Echizen City! A home that combines convenience and comfort.広々4DKの木造戸建て、越前市武生柳町の閑静な住宅街に登場!利便性と快適性を兼ね備えた住まい。
| Land:土地面積 | 78 m² |
|---|---|
| Building:建物面積 | 82 m² |
| Scale:建物規模 | 2 floors above ground地上2階 |
| Structure:構造 | Wooden木造 |
| Built in:建築年 | 1977 |

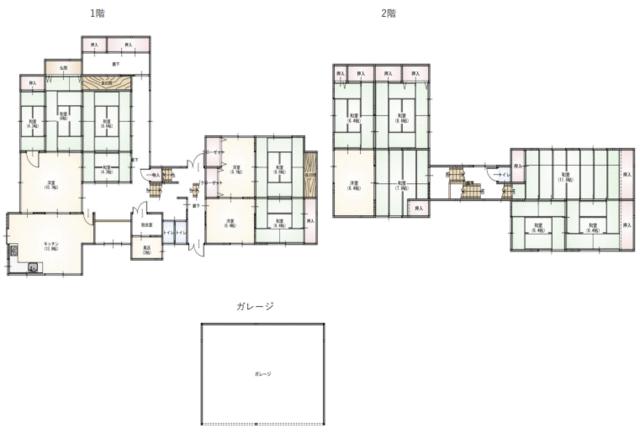
In addition to a large 16K floor plan, it comes with a separate garage! It is a property that can be used for multiple households and stores.16Kの大型間取りに加え、独立ガレージ付き!多世帯や店舗併用にも対応可能な物件です。
| Land:土地面積 | 398 m² |
|---|---|
| Building:建物面積 | 358 m² |
| Scale:建物規模 | 3 floors above ground地上3階 |
| Structure:構造 | Wooden木造 |
| Built in:建築年 | 1967 |

Fukui, a tranquil prefecture located on the Sea of Japan coast, stands out as an attractive destination for those looking to immigrate to Japan due to its blend of rich cultural heritage, natural beauty, and affordability. Known for its breathtaking landscapes, including the iconic Eiheiji Temple and the stunning Wakasa Bay, Fukui offers a harmonious environment that attracts families, retirees, and individuals seeking a peaceful lifestyle. In comparison to bustling urban areas like Tokyo and Osaka, Fukui Ken provides a much slower pace of life, which many find appealing. Housing affordability is a significant advantage, as property prices in Fukui are considerably lower than the national average, making it feasible for foreigners looking to own property without breaking the bank. The region’s charm is enhanced by its warm community atmosphere, excellent local cuisine featuring fresh seafood and traditional dishes, and a vibrant cultural scene that includes various festivals and events throughout the year. Furthermore, the local government is increasingly welcoming to newcomers, providing support and resources for those looking to settle in. With good access to the larger cities via public transport and the allure of scenic countryside living, Fukui Ken presents a compelling case for those wishing to experience a more serene, affordable lifestyle in Japan while immersing themselves in authentic Japanese culture.
AllAkiyas.com puts at your disposition thousands of Japanese real estate listings of properties available for sale or rent. Our extensive listings include detached houses, townhouses, apartments, commercial spaces, and vacant lots. We place a special focus on traditional vacant houses, known as akiya (or kominka in rural areas), and traditional townhouses, or machiya. You can easily search for properties across all of Japan's prefectures using your specific criteria.