Verify availabilityAdd to lists:✕

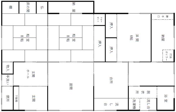
Used houses. There is an unregistered warehouse (about 36 tsubo) and farmland in the back. There is a floor plan. Transaction mode: Mediation.中古住宅。未登記倉庫あり(約36坪)、奥に農地あり。間取図あり。取引態様:媒介。
| Land:土地面積 | 766 m² |
|---|---|
| Building:建物面積 | 277 m² |
| Scale:建物規模 | 2 stories2階建 |
| Structure:構造 | Wooden galvanized steel roof木造亜鉛メッキ鋼板葺 |
| Built in:建築年 | 1972 |

A detached house in a residential area of Fujikoto district!
Just a few minutes walk from the social welfare council and a Japanese pub.藤琴地区の住宅街にある一戸建て!
社会福祉協議会や居酒屋に徒歩数分で行くことができます。
| Land:土地面積 | 121 m² |
|---|---|
| Building:建物面積 | 119 m² |
| Built in:建築年 | 1974 |

There are tens of minutes of rooms, such as a study and a children's room!
A large house located in a residential area a little away from the town center.
I want a room for my hobbies. I want a children's room. I want to live with two households, etc.
It can be used in a variety of ways.書斎や子ども部屋など、部屋数十分!
町の中心地から少し離れた住宅街に位置する大きなお家。
趣味の部屋が欲しい。子供部屋が欲しい。二世帯で同居したいなど、
様々な使用方法に対応できます。
| Land:土地面積 | 839 m² |
|---|

Located on high ground, the Kasuge district is home to farm inns, guest houses, trial housing, and farm restaurants.
There is a fire station nearby, and the banks, post office, and supermarkets in the town center are about a 15-minute walk away.高台に位置する粕毛地区には農家民宿やゲストハウス、お試し移住体験住宅や農家レストランなどがある。
近くに消防署があり、町の中心部の銀行・郵便局やスーパーマーケットまでは徒歩15分程度に位置する。
| Land:土地面積 | 936 m² |
|---|---|
| Building:建物面積 | Please inquire |
| Built in:建築年 | 1971 |

Property under 1 million yen
Housing that can be used in a variety of ways, from singles to large groups
Social welfare council and izakaya are within a few minutes' walk.
Shed and garage available a few hundred meters away100万円以下物件
単身から大人数まで色々な形で利用できる住宅
社会福祉協議会や居酒屋に徒歩数分で行くことができます。
数百メートル離れた場所に小屋、車庫あり
| Land:土地面積 | 121 m² |
|---|---|
| Building:建物面積 | 119 m² |
| Scale:建物規模 | 2-story / -2階建 / - |
| Structure:構造 | Wooden木造 |
| Built in:建築年 | 1974 |

From the second floor of the house, you can see the town's main street as well as the Fujikoto River flowing behind it.
Located in the center of town, the house is equipped with a heating and ventilation system throughout. At the landlord's request, you can continue to use your existing appliances such as the refrigerator and TV.住宅2階の部屋からは、町のメインストリートが見える他、裏を流れる藤琴川を一望できます。
町中心部に位置しており、住宅内は全館暖房・換気システム付き。大家さんの希望により冷蔵庫やテレビなど今ある家電をそのまま利用できます。
| Land:土地面積 | 523 m² |
|---|---|
| Building:建物面積 | Please inquire |
| Built in:建築年 | 1995 |

This is truly a satoyama view!
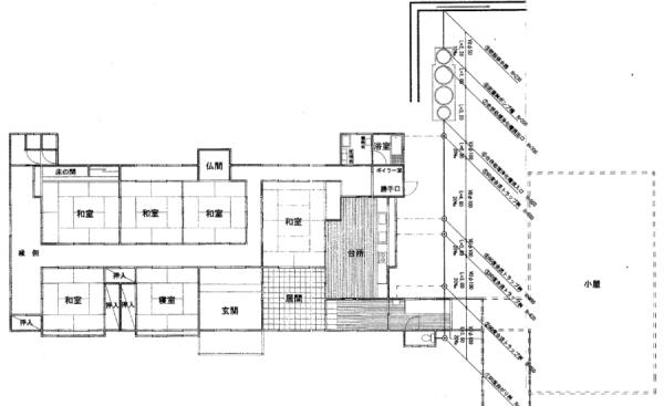
"The house is located on high ground in the Ichinowatari district, overlooking the lush rice fields. The satoyama is directly behind the house. The detached storehouse, once used as a tobacco drying room, is spacious and two stories high. Outside, in addition to the mains water tap, there is also a free tap for mountain water. This house is also suitable for artisans such as dyers and weavers and potters who use water and need a large garage."これぞ里山の眺望!
「一の渡地区の高台に立地し、豊かな水田を見下ろす。家の裏側は直ぐに里山。かつてタバコ乾燥室として使用した独立倉庫は、2階建てで広い。外の水道は上水道の蛇口の他に、山からの山水の蛇口(無料)もある。水を使い広いガレージが必要な染織家、陶芸家といった工芸家にも対応できるお家」
| Land:土地面積 | 264 m² |
|---|---|
| Building:建物面積 | 117 m² |
| Built in:建築年 | 1980 |

This is a home where you can feel nature up close!
In addition to the living room and kitchen, the first floor has five Western-style rooms, and there are two Japanese-style rooms on the second floor, making it a great place for large groups or people who want to work from home.自然を肌で感じられる住宅です!
1階はリビングとキッチンの他に洋和室が5部屋、2階にも和室が2部屋あり大人数や家で仕事がしたい人にもおすすめです。
| Land:土地面積 | 597 m² |
|---|---|
| Building:建物面積 | 144 m² |
| Built in:建築年 | 1963 |

Akita prefecture, located in northern Japan, offers a unique blend of rural charm and scenic beauty, ideal for those seeking a tranquil lifestyle. Known for its rich cultural heritage, breathtaking nature, and hot springs, Akita is characterized by its four distinct seasons, making it a perfect destination for nature lovers and outdoor enthusiasts. The region is famous for its rice production and local cuisine, such as Akita Kanto Matsuri’s rice dishes, which are highly rated for their freshness and quality. Finding affordable housing in Akita is relatively easier than in major urban centers like Tokyo or Osaka. The real estate market in Akita tends to offer more spacious properties at lower prices, making it attractive for families and individuals looking for budget-friendly options. Rural locations, in particular, feature lower living costs and housing prices, allowing individuals to enjoy a comfortable standard of living without the financial strain. In terms of quality of life, Akita excels with its low crime rate, strong community ties, and access to nature, promoting a relaxed lifestyle. The cost of living in Akita is significantly lower than in metropolitan areas. While job opportunities may be limited compared to urban regions, remote work options are becoming more prevalent, providing flexibility for relocation. Overall, Akita Ken offers a peaceful living environment with a balance of affordability and a welcoming community, making it an appealing destination for those seeking a lifestyle change in Japan.
AllAkiyas.com puts at your disposition thousands of Japanese real estate listings of properties available for sale or rent. Our extensive listings include detached houses, townhouses, apartments, commercial spaces, and vacant lots. We place a special focus on traditional vacant houses, known as akiya (or kominka in rural areas), and traditional townhouses, or machiya. You can easily search for properties across all of Japan's prefectures using your specific criteria.