




Add to lists:✕
No properties match your criteria.
Other properties:
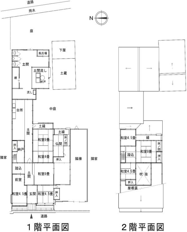
It is a low townhouse with a flat entrance, and the low eaves are lined with the neighboring buildings on the south side, showing the characteristics of the townscape of Kaneishi. The date of construction is around the middle of the Meiji era, and the newspaper sticker on the wall behind the Buddhist hall has the date of Meiji 24. The front exterior is a front with an eaves of an arm structure, plaster walls, and lattices, and the interior is a tooriniwa and a blowout, and the joist ceiling remains in its original style. In the back is a large earthen space where you can see the climbing beams, and there is a characteristic earthen sink with a well.平入りの低町家で、低い軒先は南側の隣棟と並び、金石の町並みの特徴が見られる。築年代は明治中期ころか、仏間裏の壁の新聞貼りには明治24年の日付があった。正面外観は腕木構造の軒先と漆喰壁や出格子の表構えで、内部はトオリニワと吹抜、根太天井が当初の風情で残っている。奥は登り梁が見える大きな土間空間で、井戸のある特徴的な土間流しがある。
Land:土地面積 | 417 m² |
---|---|
Building:建物面積 | 172 m² |
Scale:建物規模 | Wooden, 2-story building木造 2階建て |
Structure:構造 | Traditional construction method with earthen walls土壁による伝統的構法 |
Built in:建築年 | 1860 |
Located in front of a small Hiromi at a three-way intersection, it is a three-story townhouse with a characteristic location in mind. The floor plan of the store on the first floor has been partially renovated to residential specifications, but the characteristic roof and structure are almost the same as they were at that time, and the townhouse atmosphere can be seen everywhere, such as the soffit structure, the long press on the exterior walls, and the design of the Japanese-style room on the second floor. The living space and plumbing on the first floor have been newly renovated and maintained cleanly.三叉路の小さな広見の正面に位置し、立地を意識した特徴のある3階建て町家である。1階土間の店舗間取りは、住宅仕様に一部改修されているが、特徴ある屋根と構造はほぼ当時のままで、軒裏のせがい構造や外壁長押、2階和室の意匠など随所に町家の風情が見られる。1階の居住空間や水回りは、設備機器ともに新しく改修され、きれいに維持されている。
Land:土地面積 | 67 m² |
---|---|
Building:建物面積 | 140 m² |
Scale:建物規模 | Wooden two-story building (some 3 floors)木造2階建て(一部3階) |
Structure:構造 | Wooden木造 |
Built in:建築年 | 1926 |
This is a traditional Japanese restaurant that was renovated from a 150-year-old traditional Japanese house. We are considering relocating to another location, so we are looking for someone to buy it. The kitchen equipment is complete, and the restaurant also has tables, chairs, and other fixtures, so it can be used immediately as a restaurant. The renovated property has a good old atmosphere, with impressive beams visible from the atrium. The first floor is used as a store, and the second floor has a Japanese-style room with tatami mats and a Western-style room, so we recommend using it as a residence. There is a garden, which is well maintained with stones laid out and trees planted. There is no bath. There is a wood stove, but it is currently used for display. You will need to consult with the fire department before using it.築150年の古民家をリノベーションした、古民家レストランです。他の土地への移転を検討中のため、購入してくださる方を探しています。厨房機材は揃っており、店内のテーブル・椅子や備品なども揃っていて、飲食店としてすぐ使用できます。吹き抜けから立派な梁が見え、古き良き雰囲気を残したリノベーション済みの物件です。1階部分は店舗として、2階部分は畳の和室と洋室の部屋がありますので住居としての使用をお勧めします。お庭があり、石を敷いたり木を植えたりして、きれいに管理してあります。お風呂はありません。薪ストーブがついていますが、現在はディスプレイになっています。使用するには消防への相談が必要です。
Land:土地面積 | 383 m² |
---|---|
Building:建物面積 | 125 m² |
Scale:建物規模 | 2 stories2階建 |
Structure:構造 | Wooden木造 |
Built in:建築年 | 1873 |
Hiroshima Prefecture, known for its rich history and stunning natural landscapes, offers a unique lifestyle that combines urban convenience with picturesque rural surroundings. The prefecture boasts the vibrant city of Hiroshima, renowned for its peace memorials, diverse culinary scene, and cultural events, alongside charming smaller towns and scenic countryside areas like the famous Miyajima Island. Residents can enjoy a dynamic lifestyle that blends modern amenities with traditional Japanese culture. Finding affordable housing in Hiroshima Ken is relatively easier compared to major metropolitan areas like Tokyo and Osaka. The market offers a variety of options, from urban apartments to more spacious homes in rural settings, often at a fraction of the cost found in larger cities. Prices can vary, but one can typically secure a comfortable apartment for a modest budget, making it an attractive option for newcomers. In terms of quality of life, Hiroshima Ken excels with its low crime rates, access to healthcare, and the availability of outdoor activities such as hiking and cycling. The cost of living is generally lower than in other major regions of Japan, allowing for a more relaxed financial situation. Additionally, residents can take advantage of efficient public transportation, enabling easy exploration of the prefecture and beyond. Overall, Hiroshima Ken presents a balanced lifestyle that combines affordability, cultural richness, and a sense of community, making it an appealing choice for relocation.
AllAkiyas.com puts at your disposition thousands of Japanese real estate listings of properties available for sale or rent. Our extensive listings include detached houses, townhouses, apartments, commercial spaces, and vacant lots. We place a special focus on traditional vacant houses, known as akiya (or kominka in rural areas), and traditional townhouses, or machiya. You can easily search for properties across all of Japan's prefectures using your specific criteria.