
Verify availabilityAdd to lists:✕

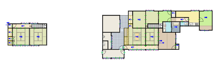
八日市の静かな道路に面した大きな古農家です。瓦ぶきの二階建てで、比較的状態も良く修繕しなくても住むことができます。上水道に加え井戸水も使用でき、下水道完備で水洗トイレです。車庫は広く、トラクターをはじめコンバイン、乾燥機、脱穀機など本格的な農機具も付属するため、すぐに農業をはじめられます。立派な蔵もあります。八日市の静かな道路に面した大きな古農家です。瓦ぶきの二階建てで、比較的状態も良く修繕しなくても住むことができます。上水道に加え井戸水も使用でき、下水道完備で水洗トイレです。車庫は広く、トラクターをはじめコンバイン、乾燥機、脱穀機など本格的な農機具も付属するため、すぐに農業をはじめられます。立派な蔵もあります。
| Land:土地面積 | 328 m² |
|---|---|
| Building:建物面積 | 197 m² |
| Structure:構造 | 木造瓦葺2階建て木造瓦葺2階建て |
| Built in:建築年 | 1950 |

There is a usable well, annex house (built in S54), storehouse (built in T10), garage (built in S61), tractor, dryer, combine, thresher, and a complete set of weighers. There are rice fields (1,947 square meters), fields (480 square meters), and mountain forests (32,735 square meters) nearby.使用可能な井戸、附属家(S54年築)土蔵(T10年築)車庫(S61年築)トラクター、乾燥機、コンバイン、脱穀機、計量器一式あります。近隣に田(1,947㎡)畑(480㎡)山林(32,735㎡)もあり
| Land:土地面積 | 328 m² |
|---|---|
| Building:建物面積 | 197 m² |
| Scale:建物規模 | 2 floors above ground地上2階 |
| Structure:構造 | Wooden木造 |
| Built in:建築年 | 1950 |

Vacant house bank [sale] 1.2 million yen Kamibuchi, Shichiso-cho, Kamo-gun, Gifu Prefecture Two-story old house with field, forest, storehouse, workshop, and parking lot with 2 cars Water supply and sewerage空き家バンク【売買】120万円 岐阜県加茂郡七宗町神渕 畑・山林・土蔵・作業場・駐車場2台付き2階建古民家 上下水道
| Land:土地面積 | 181 m² |
|---|---|
| Building:建物面積 | 78 m² |
| Structure:構造 | Two-story wooden structure木造2階建 |

A very beautiful house where you can start living without renovations!
It is a modern private house with an attractive garden stone.
It is an easy-to-use property with a modern two-story house with good sunlight and two warehouses that can be used as garages on a hill facing the main road.リフォームなしで住み始められるとても綺麗な家!
近代的な造りの民家で、庭の石も魅力です。
幹線道路に面した高台に建ち、隣までの距離もほどほど、陽当たりも良い近代的な造りの2階建て家屋とガレージにもなる倉庫が2つある使い勝手の良い物件です。
| Land:土地面積 | Please inquire |
|---|---|
| Building:建物面積 | 201 m² |
| Scale:建物規模 | 2-story / -2階建 / - |
| Structure:構造 | Wooden木造 |
| Built in:建築年 | 1998 |

リフォームなしで住み始められるとても綺麗な家!
近代的な造りの民家で、庭の石も魅力です。
幹線道路に面した高台に建ち、隣までの距離もほどほど、陽当たりも良い近代的な造りの2階建て家屋とガレージにもなる倉庫が2つある使い勝手の良い物件です。リフォームなしで住み始められるとても綺麗な家!
近代的な造りの民家で、庭の石も魅力です。
幹線道路に面した高台に建ち、隣までの距離もほどほど、陽当たりも良い近代的な造りの2階建て家屋とガレージにもなる倉庫が2つある使い勝手の良い物件です。
| Security deposit:敷金 | 不明不明 |
|---|---|
| Key money:礼金 | 不明不明 |
| Land:土地面積 | Please inquire |
| Building:建物面積 | 138 m² |
| Exclusive area:専有面積 | 138 m² |
| Structure:構造 | 木造木造 |
| Built in:建築年 | 1998 |

Gifu, centrally located in Japan, boasts a unique blend of natural beauty and cultural heritage, making it an attractive destination for those considering relocation. Nestled between the Japanese Alps, the prefecture features lush mountains, verdant valleys, and historical towns, such as Takayama and Gujo Hachiman, known for their traditional wooden architecture and seasonal festivals. When compared to more urbanized prefectures like Tokyo or Osaka, Gifu offers a significantly slower pace of life, contributing to a stronger sense of community and an enriching lifestyle. This tranquil environment is paired with affordable housing options; average property prices in Gifu Ken are generally lower than in bustling metropolitan areas, with opportunities for both urban apartments and countryside homes. For instance, you can find family homes for under ¥20 million in many parts of Gifu, whereas similar properties in Tokyo may easily double or triple that price. Moreover, Gifu's strategic location allows for convenient access to major cities, providing a perfect balance between serene rural living and urban amenities. The prefecture is also known for its delicious local cuisine and outdoor recreational activities, attracting nature enthusiasts and food lovers alike. In recent years, Gifu has seen an increase in foreign residents who appreciate the quality of life and affordability, making it an ideal choice for those looking to immigrate to Japan while maintaining a fulfilling, affordable lifestyle amidst stunning scenery and rich traditions.
AllAkiyas.com puts at your disposition thousands of Japanese real estate listings of properties available for sale or rent. Our extensive listings include detached houses, townhouses, apartments, commercial spaces, and vacant lots. We place a special focus on traditional vacant houses, known as akiya (or kominka in rural areas), and traditional townhouses, or machiya. You can easily search for properties across all of Japan's prefectures using your specific criteria.