
Verify availabilityAdd to lists:✕

Vacant house bank [sale] 4 million yen Shiga Prefecture Gamo-gun Hino Town Oji Nimoto Tree Large site 4 rooms one-story old private house with storehouse, detachment, storeroom, parking lot 8 cars Dirt floor, two-sided veranda, continuous room空き家バンク【売買】400万円 滋賀県蒲生郡日野町大字仁本木 広い敷地 土蔵・離れ・物置・駐車場8台付き4部屋平屋古民家 土間・二面縁側・続き間有
| Land:土地面積 | 872 m² |
|---|---|
| Building:建物面積 | 220 m² |
| Structure:構造 | Wooden one-story house木造平屋 |

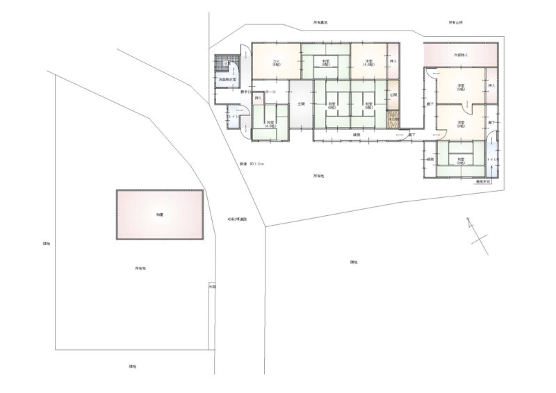
Vacant house bank [sale] 3.8 million yen Shiga Prefecture Gamo-gun, Hino-cho, Oji Sakura Large site 8DK one-story old house with storage and parking lot 2 cars Flush toilet空き家バンク【売買】380万円 滋賀県蒲生郡日野町大字佐久良 広い敷地 物置・駐車場2台付き8DK平屋古民家 水洗トイレ
| Land:土地面積 | 992 m² |
|---|---|
| Building:建物面積 | 107 m² |
| Structure:構造 | Wooden one-story house木造平屋 |

The main lighting is on the south side and the sun is good. There is also a field in front of the house, and you can fully enjoy the vegetable garden. It has a large two-story storey that is suitable for versatile use and does not cause any inconvenience in storage.主要採光が南面で日当たりが良好です。家の前には畑もあり家庭菜園が十分に楽しめます。多目的な用途活用に適した2階建ての広い物置があり収納には不便を感じさせません。
| Land:土地面積 | 297 m² |
|---|---|
| Building:建物面積 | 234 m² |
| Scale:建物規模 | 2-story / -2階建 / - |
| Structure:構造 | Wooden木造 |
| Built in:建築年 | 1947 |

Shiga Prefecture, located in the Kansai region on the shores of Lake Biwa, stands out as an attractive destination for those considering relocation to Japan. Known for its beautiful landscapes, rich cultural heritage, and a slower-paced lifestyle, Shiga offers a compelling alternative to larger, more bustling prefectures like Tokyo or Osaka. The prefecture boasts a perfect blend of urban convenience and stunning natural scenery, featuring historical sites, scenic parks, and traditional gardens that appeal to both nature lovers and history enthusiasts. Unlike the high costs associated with Tokyo and some parts of Osaka, Shiga presents a more affordable housing market. Towns like Otsu and Hikone provide a range of options, from modern apartments to traditional homes, often at significantly lower prices than metropolitan centers. The cost of living in Shiga is generally lower, with grocery prices and transportation being more favorable for residents. Additionally, Shiga’s commitment to promoting a safe and family-friendly environment, coupled with its strong community vibe, makes it a welcoming place for newcomers. Whether one is seeking the tranquility of rural living or the vibrancy of small city life, Shiga Ken offers a harmonious balance. This combination of affordable housing, vibrant culture, and accessible amenities makes it a highly attractive destination for those looking to immigrate to Japan and find a place they can truly call home.
AllAkiyas.com puts at your disposition thousands of Japanese real estate listings of properties available for sale or rent. Our extensive listings include detached houses, townhouses, apartments, commercial spaces, and vacant lots. We place a special focus on traditional vacant houses, known as akiya (or kominka in rural areas), and traditional townhouses, or machiya. You can easily search for properties across all of Japan's prefectures using your specific criteria.