Verify availabilityAdd to lists:✕

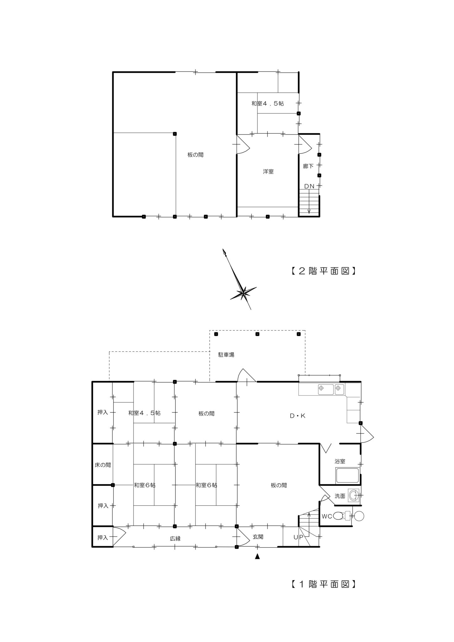
The house was built in 1954, but even after my grandmother passed away and it became vacant, it was repeatedly renovated several times a year as a place for the family to gather and many people stayed there. With the Reiwa era, my father has gotten older and it is no longer well maintained, so the family no longer uses it and we have decided to sell it. This is a relisted property. A buyer was found and the sale procedures were underway, but the buyer canceled the sale midway due to his circumstances. The buyer had planned to renovate the house and had cleaned it up, so most of the things that were in the house have been disposed of and organized. It is also possible to sell only the land, house, and fields, excluding the rice fields. The rice fields and fields are adjacent to the land.昭和29年築ですが、祖母が亡くなり空家となってからも、年に数回家族の集まる場所としてリフォームを繰り返し大勢が宿泊していました。令和となって父親が高齢になり管理が行き届かなくなり家族の利用もなくなり、手放すことにしました。再掲載物件です。買手が決まり売却の手続きを進めていましたが、その途中で買手の都合によりキャンセルになりました。買手さんがリフォームする計画で家の中を片付けていましたので、家にあったものはかなり処分、整理されています。田んぼを除く土地・家・畑のみの売却も可能です。田んぼ、畑は土地に隣接しています。
| Land:土地面積 | 399 m² |
|---|---|
| Building:建物面積 | 102 m² |
| Scale:建物規模 | House 102㎡, garage 32㎡, storage 16㎡家屋102㎡、車庫32㎡、物置16㎡ |
| Structure:構造 | Wooden construction, garage: light steel frame, storage: li木造、車庫:軽量鉄骨、物置:軽量鉄骨 |
| Built in:建築年 | 1954 |

A two-story property with good sunlight, located in the Tako area of Miyoshi City, Hiroshima Prefecture. The land area is 511 m2, and the total floor area is 181 m2. Renovation costs are subsidized. The area is well-equipped with an educational environment and is rich in nature.広島県三次市の田幸地区に立つ、日当たり良好な2階建て物件。土地面積は511㎡、延床面積は181㎡。改修費補助あり。教育環境も整っており、自然豊かな地域。
| Land:土地面積 | 511 m² |
|---|---|
| Building:建物面積 | 181 m² |
| Scale:建物規模 | 2 stories2階建て |
| Built in:建築年 | 1984 |

An old house-style second-hand detached house in Motomachi, Otake City. How about living in the garden loving seasonal flowers and plants?大竹市元町に古民家風中古戸建。お庭で季節の草花を愛でる暮らしはいかがですか?
| Land:土地面積 | 374 m² |
|---|---|
| Building:建物面積 | 114 m² |
| Scale:建物規模 | 2 stories2階建て |
| Structure:構造 | Wooden木造 |
| Built in:建築年 | 1960 |

This property is a two-story old wooden house built at the foot of a quiet mountain. It also has a field and a detached house, making it a recommended property for those who want to enjoy a slow life while working in the fields.この物件は、静かな山裾に建つ木造2階建ての古民家です。畑、離れ屋もあり畑をしながらスローライフを楽しみたい方にはお勧めの物件となっています。
| Land:土地面積 | 403 m² |
|---|---|
| Building:建物面積 | 180 m² |
| Structure:構造 | Wooden structure (2 stories)木造(2階建) |
| Built in:建築年 | 1900 |

Hiroshima Prefecture, known for its rich history and stunning natural landscapes, offers a unique lifestyle that combines urban convenience with picturesque rural surroundings. The prefecture boasts the vibrant city of Hiroshima, renowned for its peace memorials, diverse culinary scene, and cultural events, alongside charming smaller towns and scenic countryside areas like the famous Miyajima Island. Residents can enjoy a dynamic lifestyle that blends modern amenities with traditional Japanese culture. Finding affordable housing in Hiroshima Ken is relatively easier compared to major metropolitan areas like Tokyo and Osaka. The market offers a variety of options, from urban apartments to more spacious homes in rural settings, often at a fraction of the cost found in larger cities. Prices can vary, but one can typically secure a comfortable apartment for a modest budget, making it an attractive option for newcomers. In terms of quality of life, Hiroshima Ken excels with its low crime rates, access to healthcare, and the availability of outdoor activities such as hiking and cycling. The cost of living is generally lower than in other major regions of Japan, allowing for a more relaxed financial situation. Additionally, residents can take advantage of efficient public transportation, enabling easy exploration of the prefecture and beyond. Overall, Hiroshima Ken presents a balanced lifestyle that combines affordability, cultural richness, and a sense of community, making it an appealing choice for relocation.
AllAkiyas.com puts at your disposition thousands of Japanese real estate listings of properties available for sale or rent. Our extensive listings include detached houses, townhouses, apartments, commercial spaces, and vacant lots. We place a special focus on traditional vacant houses, known as akiya (or kominka in rural areas), and traditional townhouses, or machiya. You can easily search for properties across all of Japan's prefectures using your specific criteria.