





Add to lists:✕
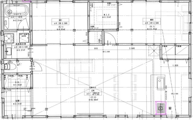
◇◆Higashinami Coast 2km Station, Sea walking distance Houses for rural living along the highway◆◇ Location that can be used for business purposes with space spread on the west side of the national highway The building is a wooden two-story building built in the early Showa era The rooms on the first and second floors are connected by a wide rim 9 tatami DK◇◆東浪見海岸2km 駅、海徒歩圏 街道沿いの田舎暮らし向け住宅◆◇ 西側国道側にスペース広がっており事業用途にも対応可能な立地 建物は昭和初期築の木造2階建 1、2階居室は広縁付続き間 9帖DK
Land:土地面積 | 587 m² |
---|---|
Building:建物面積 | 101 m² |
Scale:建物規模 | 2 floors above ground地上2階 |
Structure:構造 | Wooden木造 |
Built in:建築年 | 1955 |
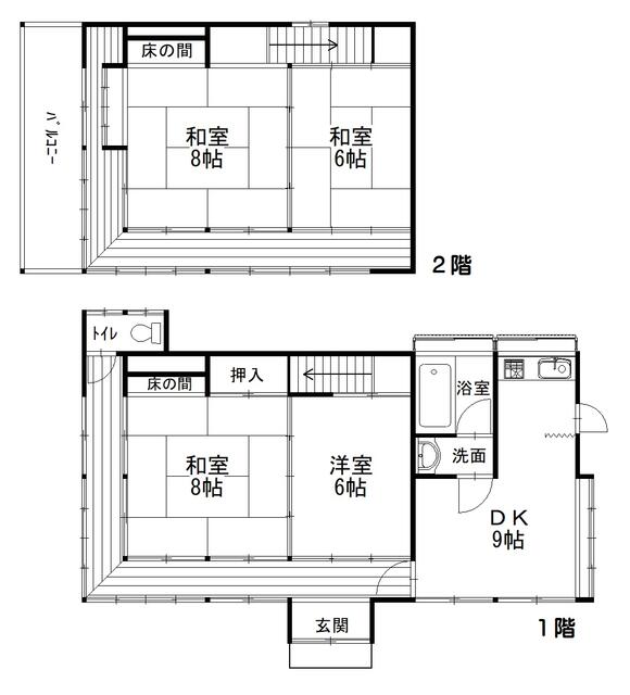
◇◆Higashinamimi Coast 400m Land near the sea 2-building house ◆◇ Quiet residential area near the sea Site 160 tsubo Spacious gravel open space on the south side The building is a 17 tsubo two-story building built in Showa 58 and a 17 tsubo one-story house built in Showa 55 There is a history of renovation◇◆東浪見海岸400m 海近の土地広2棟建住宅◆◇海近の閑静住宅地 敷地160坪 南側に広々した砂利敷のオープンスペース 建物は昭和58年築の17坪2階建と昭和55年築の17坪平屋 リフォーム履歴あり
Land:土地面積 | 532 m² |
---|---|
Building:建物面積 | 116 m² |
Scale:建物規模 | 2 floors above ground地上2階 |
Structure:構造 | Wooden木造 |
Built in:建築年 | 1984 |
◆Viewing is possible ♪ Saturdays, Sundays, holidays, and weekdays ◆900m in a straight line to the sea◆Large-scale renovation property◆Spacious 60 tsubo garden and wooden deck◆Outdoor hot shower installation ・Seawater and sand can be flushed before entering the room ◆Past private lodging experience Private lodging management possible◆内見可能です♪ 土日祝、平日 ◆海へ直線で900m◆大規模リフォーム物件◆広々60坪の庭・ウッドデッキあり◆屋外温水シャワー設置・海水や砂を入室前に流せます ◆過去に民泊実績あり 民泊経営可能
Land:土地面積 | 556 m² |
---|---|
Building:建物面積 | 115 m² |
Scale:建物規模 | 2 floors above ground地上2階 |
Structure:構造 | Wooden木造 |
Built in:建築年 | 1965 |
◇◆Ichinomiya Coast 1.2km 2-building house for rural living near the sea◆◇ Site on the southwest corner lot 450 tsubo Calm garden with many garden trees and lush greenery The main house was built in Heisei 15 All rooms are bright and south-facing Bright floor plan Spacious balcony There is a steel frame and wooden 4-story building◇◆一宮海岸1.2km 海近の田舎暮らし向け2棟建住宅◆◇南西角地の敷地450坪 庭木多く緑豊かな落ち着いた庭 母屋は平成15年築 全室南向きの明るい間取り 広々バルコニー 鉄骨・木造4階建の離れあり
Land:土地面積 | 1490 m² |
---|---|
Building:建物面積 | 111 m² |
Scale:建物規模 | 2 floors above ground地上2階 |
Structure:構造 | Wooden木造 |
Built in:建築年 | 2003 |
It is a two-story house in front of Higashinamimi Surf Point. Indoors, how about surfing life with your dog in all rooms with pet-friendly cushion floors and a large garden? There is also an outdoor shower and well water in the house.東浪見サーフポイントの目の前にある、2階建て住宅です。室内ペットに優しい全室クッションフロア、広いお庭でワンちゃんとサーフィンライフはいかがでしょうか。宅内には屋外シャワー、井戸水もあります。
Land:土地面積 | 268 m² |
---|---|
Building:建物面積 | 78 m² |
Scale:建物規模 | 2 floors above ground地上2階 |
Structure:構造 | Wooden木造 |
Built in:建築年 | 2024 |
◇◆Station walking distance One-story house with a spacious garden ◆◇ Old residential area in the west area of Tamamae Shrine Long terrain from east to west Lawn garden for parking on the east side Lushy garden from south to west Building built in Showa 48 One-story house for permanent residence◇◆駅徒歩圏 ゆとりの庭付平屋住宅◆◇ 玉前神社西側エリアの古くからの住宅地 東西に長めの地形 東側に駐車場兼用の芝生の庭 南側から西側にかえて緑豊かな庭 建物は昭和48年築 永住用平屋住宅
Land:土地面積 | 529 m² |
---|---|
Building:建物面積 | 93 m² |
Scale:建物規模 | 1 floor above ground地上1階平屋 |
Structure:構造 | Wooden木造 |
Built in:建築年 | 1973 |
From the east-facing balcony where the morning sun shines in, you can see the sea. The parking lot is spacious and can accommodate more than 3 cars. There are also outdoor showers and well water, so you can enjoy a comfortable surfing life.朝日が差し込む東向きバルコニーからは海が見えます。駐車場は広々3台以上停められます。屋外シャワー、井戸水もあり快適なサーフィンライフをお楽しみいただけます。
Land:土地面積 | 268 m² |
---|---|
Building:建物面積 | 78 m² |
Scale:建物規模 | 2 floors above ground地上2階 |
Structure:構造 | Wooden木造 |
Built in:建築年 | 2024 |
☆ Spacious detached house in Kamiso Ichinomiya ☆ Both the beach and the station are within walking distance. Convenient for leisure in real life ☆ Private surrounded by nature ☆ Invisibility and privacy, which are the unique advantages of property extension properties◎. It is a quiet and peaceful space where you can relax!☆上総一ノ宮の広々一戸建て☆ビーチも駅も徒歩圏。実生活にレジャーに便利☆自然に囲まれたプライベート性 ☆敷地延長物件の特有メリットである不可視性とプライバシー性◎。閑静でのどかのんびりできる空間です!
Land:土地面積 | 556 m² |
---|---|
Building:建物面積 | 115 m² |
Scale:建物規模 | 2 floors above ground地上2階 |
Structure:構造 | Wooden木造 |
Built in:建築年 | 1965 |
◇◆4 minutes walk from Higashinamimi Coast Permanent residence near the sea◆◇ Resort-style exterior with large roofs Many rooms Good sunlight 12 tatami rooms and 8 tatami Japanese-style rooms on the 1st floor Full balcony on the south side of the 2nd floor Overlooking the sea from the 2nd floor There is also a garage garage and multiple cars can be parked◇◆東浪見海岸徒歩4分 海近の永住用住宅◆◇ 大屋根のリゾート風外観 部屋数多く日当り良好 1階12帖洋室と8帖和室続き間 2階南側全面バルコニー 2階から海眺望します ガレージ車庫もあり複数台駐車可
Land:土地面積 | 266 m² |
---|---|
Building:建物面積 | 118 m² |
Scale:建物規模 | 2 floors above ground地上2階 |
Structure:構造 | Wooden木造 |
Built in:建築年 | 1978 |
8 minutes walk to Ichinomiya Beach! The spacious 27-mat living room has a sloping ceiling with a sense of openness! With dog run! High airtightness and high insulation! Parking is available for 4 cars! High-grade plumbing equipment such as Takara Standard Lemu! Please come and visit us一宮海水浴場まで徒歩8分!27畳の広々したリビングは開放感のある勾配天井!ドッグラン付き!高気密高断熱!駐車4台可!タカラスタンダードレミューなどハイグレードな水回り設備!是非内覧にお越しください
Land:土地面積 | 394 m² |
---|---|
Building:建物面積 | 86 m² |
Scale:建物規模 | 1 floor above ground地上1階平屋 |
Structure:構造 | Wooden木造 |
Built in:建築年 | 2025 |
Chiba, located just east of Tokyo, is a captivating prefecture that offers a unique blend of natural beauty, vibrant city life, and affordability, making it an ideal choice for those considering relocation to Japan. Unlike the bustling metropolis of Tokyo, Chiba provides a quieter lifestyle while still being easily accessible to the capital via the efficient train system, allowing for a seamless commute for work or leisure. Chiba boasts stunning coastal areas along the Pacific Ocean, perfect for water sports enthusiasts and beach lovers, with spots like Kujukuri Beach offering long sandy stretches for relaxation. Additionally, the prefecture is home to various cultural landmarks, including the historic Naritasan Shinshoji Temple and the famed Chiba Zoo, catering to families and individuals seeking a rich cultural experience. When it comes to real estate, Chiba stands out for its affordability, with property prices significantly lower than those found in Tokyo or Kanagawa. This allows prospective buyers to secure larger homes, often with gardens or more spacious layouts, all within a reasonable budget. The prefecture's diverse neighborhoods range from urban areas like Chiba City, which has a vibrant nightlife and shopping scene, to picturesque rural towns that provide a peaceful countryside lifestyle. Overall, Chiba Ken is an enticing option for anyone looking to buy affordable property while enjoying the benefits of both nature and proximity to Japan's bustling capital.
AllAkiyas.com puts at your disposition thousands of Japanese real estate listings of properties available for sale or rent. Our extensive listings include detached houses, townhouses, apartments, commercial spaces, and vacant lots. We place a special focus on traditional vacant houses, known as akiya (or kominka in rural areas), and traditional townhouses, or machiya. You can easily search for properties across all of Japan's prefectures using your specific criteria.