
Verify availabilityAdd to lists:✕

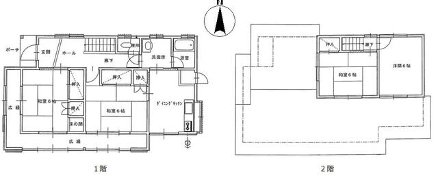
■ Seismic work (seismic standard compliance certificate) and roof tile repair are safe ■ Renovation is a comfortable design considered by the designer (see photo) ■ Floor plan that is easy to use for circulation lines■耐震工事(耐震基準適合証明書取得)と屋根瓦補修済みで安心です ■リフォームは設計士が考える居心地の良いデザイン(写真参照) ■回遊動線が使いやすい間取り
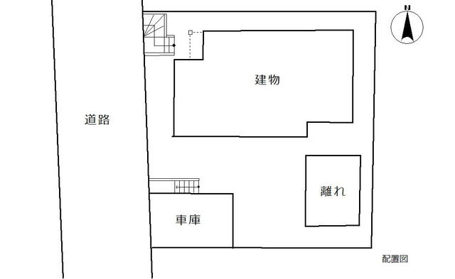
| Land:土地面積 | 209 m² |
|---|---|
| Building:建物面積 | 79 m² |
| Scale:建物規模 | 2 floors above ground地上2階 |
| Structure:構造 | Wooden木造 |
| Built in:建築年 | 1978 |

It is a solid building that does not give a sense of age. Renovate freely and realize your ideal life! Since there are two parking lots that support car-centered life, the range of activities of each family member is greatly expanded.築年数を感じさせないしっかりとした造りの建物です。自由にリノベーションして理想の暮らしを実現!車中心生活を支える駐車場2台分有だから、家族それぞれの行動範囲がグッと広がります。
| Land:土地面積 | 213 m² |
|---|---|
| Building:建物面積 | 131 m² |
| Scale:建物規模 | 2 floors above ground地上2階 |
| Structure:構造 | Other軽量鉄骨造 |
| Built in:建築年 | 1985 |

■Custom-built homes from Toyota Home! ■Earthquake-resistant lightweight steel construction!
■Facing south, so gets plenty of sunlight!
■Parking for 3 cars (depending on vehicle type)!
■Spacious 5LDK!
■Bright floor plan with wide south-facing entrance!
■All-electric home!■トヨタホームの注文住宅! ■地震に強い軽量鉄骨造!
■南向きにつき日当たり良好!
■駐車3台可能(車種による)!
■ゆとりの5LDK!
■南間口が広く明るい間取り!
■オール電化住宅!
| Land:土地面積 | 206 m² |
|---|---|
| Building:建物面積 | 69 m² |
| Scale:建物規模 | 2 floors above ground地上2階 |
| Structure:構造 | Other軽量鉄骨造 |
| Built in:建築年 | 2002 |

Aichi, located in the Chubu region of Japan, is an enticing destination for those contemplating relocation, offering a unique blend of modernity and rich cultural heritage. Known primarily for its capital, Nagoya, Aichi fosters a vibrant economy supported by the automotive industry, including major companies like Toyota. This industrial backbone translates to ample job opportunities, making it ideal for both expatriates and locals seeking sustainable employment. Beyond the economic benefits, Aichi boasts a lower cost of living compared to other major metropolitan areas such as Tokyo and Osaka. Property prices, particularly in suburban areas, remain relatively affordable, enabling prospective buyers to find spacious homes at reasonable prices while still enjoying the conveniences of urban living. Moreover, Aichi is renowned for its cultural attractions, including historical sites like Nagoya Castle and the Atsuta Shrine. The prefecture also offers easy access to stunning natural landscapes such as the beautiful Ise Bay and the picturesque mountains in the east, perfect for weekend getaways. With efficient public transport services, residents can seamlessly navigate the region. Aichi Ken's focus on community and quality of life, combined with its affordability and abundant amenities, presents an attractive opportunity for individuals and families looking for a welcoming and fulfilling environment to call home. Whether for work or leisure, Aichi has something to offer that sets it apart as a superb choice for relocation.
AllAkiyas.com puts at your disposition thousands of Japanese real estate listings of properties available for sale or rent. Our extensive listings include detached houses, townhouses, apartments, commercial spaces, and vacant lots. We place a special focus on traditional vacant houses, known as akiya (or kominka in rural areas), and traditional townhouses, or machiya. You can easily search for properties across all of Japan's prefectures using your specific criteria.