
Verify availabilityAdd to lists:✕

Publication page excerpt: No.1306 ... ݒn@ÎRs_304-1
Price notation: @i@1200~@[] (probably 12 million yen)
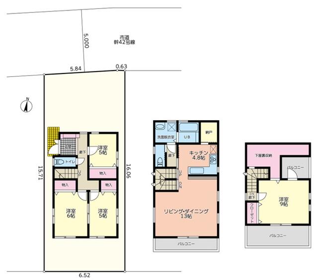
Land: 741.4u (about 224 pings)
Building: 155.36U (46.99 tsubo)
Other original fragments: n685.9u / 55.5u / i@w 1.36km / i@IC 960j掲載ページ抜粋: No.1306 ... ݒn@ÎRs_304-1
価格表記: @i@1200~@[](おそらく1,200万円)
土地: 741.4u(約224坪)
建物: 155.36u(46.99坪)
その他原文断片: n685.9u / 55.5u / i@w 1.36km / i@IC 960j
| Land:土地面積 | 741 m² |
|---|---|
| Building:建物面積 | 155 m² |

Spacious storage space, spacious balcony. It is on high ground and there are no buildings blocking the view. You can see Mt. Fuji and the fireworks all to yourself. There is also a pantry with plenty of storage space, so you are perfectly prepared for disasters.広々収納、広々バルコニー。高台にあり周りにさえぎる建物がありません。富士山や花火が独り占め。また、収納たっぷりのパントリーがあり、災害への備えもばっちり。
| Land:土地面積 | 103 m² |
|---|---|
| Building:建物面積 | 106 m² |
| Scale:建物規模 | 3 floors above ground地上3階 |
| Structure:構造 | Wooden木造 |
| Built in:建築年 | 2007 |

Saitama Prefecture, located just north of Tokyo, offers a unique blend of suburban tranquility and proximity to urban convenience. The lifestyle in Saitama is characterized by a strong sense of community, well-maintained parks, and access to nature, making it suitable for families and outdoor enthusiasts. The excellent public transportation system allows easy commutes to Tokyo, meaning you can enjoy the vibrancy of city life while residing in a quieter environment. Finding affordable housing in Saitama is relatively easier compared to Tokyo and other major metropolitan areas. While property prices have risen, particularly in popular districts like Kawaguchi and Saitama City, you can still find reasonably priced apartments and homes in more rural areas. Areas like Fukaya offer affordable options, often at about 20-30% lower than those in Tokyo. In terms of quality of life, Saitama is generally favorable. It boasts good healthcare facilities, quality educational institutions, and lower crime rates. The cost of living is also lower than in central Tokyo, with savings on groceries, dining, and entertainment. While some may feel that Saitama's cultural offerings are more limited compared to Tokyo, the local festivals, otaku culture, and easy access to exciting attractions make it a vibrant place to live. Overall, Saitama Ken presents an attractive option for those looking to balance affordability with a pleasant lifestyle in Japan.
AllAkiyas.com puts at your disposition thousands of Japanese real estate listings of properties available for sale or rent. Our extensive listings include detached houses, townhouses, apartments, commercial spaces, and vacant lots. We place a special focus on traditional vacant houses, known as akiya (or kominka in rural areas), and traditional townhouses, or machiya. You can easily search for properties across all of Japan's prefectures using your specific criteria.