
Verify availabilityAdd to lists:✕

Good access from National Route 116 and the main local road, Kujiranami-Miyagawa Line. Convenient transportation as it is close to the village shuttle bus stop.
Property Information
Related Links国道116号線、主要地方道鯨波・宮川線から好アクセス。村内巡回バスの停留所近くで移動も便利です。
物件情報
関連リンク
| Land:土地面積 | 735 m² |
|---|---|
| Building:建物面積 | 225 m² |
| Structure:構造 | Two-story wooden structure木造2階建 |
| Built in:建築年 | 1968 |

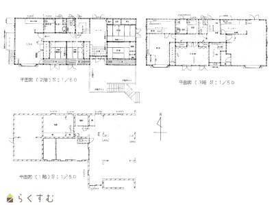
For those who live with two households and are looking for a corporate dormitory. It is a house with good confidentiality performance of the FP construction method2世帯同居、企業様の社員寮をお探しの方へ。FP工法の機密性能のよい家です
| Land:土地面積 | 670 m² |
|---|---|
| Building:建物面積 | 448 m² |
| Scale:建物規模 | 3 stories3階建 |
| Structure:構造 | Wooden reinforced concrete木造鉄筋コン |
| Built in:建築年 | 1998 |

I found a property with a large site and a convenient agricultural warehouse! The countryside scenery from the second floor is also recommended!広い敷地と便利な農業用倉庫がある物件がでました!二階からの田園風景もおススメポイント!
| Land:土地面積 | 1031 m² |
|---|---|
| Building:建物面積 | 201 m² |
| Scale:建物規模 | 2 floors above ground地上2階 |
| Structure:構造 | Wooden木造 |
| Built in:建築年 | 1978 |

This property is easily accessible from National Route 116 and the major regional roads Kujiranami-Miyagawa Line.
Property Information
Related Links国道116号線、主要地方道鯨波・宮川線から好アクセスの物件です
物件情報
関連リンク
| Land:土地面積 | 666 m² |
|---|---|
| Building:建物面積 | 219 m² |
| Structure:構造 | Two-story wooden structure木造2階建 |
| Built in:建築年 | 1968 |

Vacant House Bank [For Sale] 3 million yen. Terao, Kariwa Village, Kariwa District, Niigata Prefecture. Large site. Workshop, agricultural warehouse, garage with 2 cars. 10-room, 2-story old house. Flush toilet.空き家バンク【売買】300万円 新潟県刈羽郡刈羽村大字寺尾 広い敷地 作業場・農業倉庫・車庫2台付き10部屋2階建古民家 水洗トイレ
| Land:土地面積 | 735 m² |
|---|---|
| Building:建物面積 | 226 m² |
| Structure:構造 | Two-story wooden structure木造2階建 |

It is a house with good confidentiality performance of the FP construction method. For those who live with two households and are looking for a corporate dormitory.FP工法の機密性能のよい家です。2世帯同居、企業様の社員寮をお探しの方へ。
| Land:土地面積 | 670 m² |
|---|---|
| Building:建物面積 | 448 m² |
| Scale:建物規模 | 3 stories3階建 |
| Structure:構造 | Wooden reinforced concrete木造鉄筋コン |
| Built in:建築年 | 1998 |

Niigata Prefecture, located on the western coast of Honshu, offers a unique lifestyle characterized by its beautiful natural landscapes, rich cultural heritage, and strong agricultural traditions. Residents can enjoy outdoor activities such as skiing in the winter and hiking in the picturesque mountains during warmer months. The region is also famous for its high-quality rice, sake, and seafood, which contribute to a vibrant food culture. Finding affordable housing in Niigata can be less challenging compared to urban centers like Tokyo and Osaka. Traditional homes and apartments are available at reasonable prices, particularly in rural areas. While housing costs vary, you can often find spacious properties with gardens for a fraction of the price of equivalent homes in larger cities. In terms of quality of life, Niigata boasts a more relaxed pace, lower crime rates, and a strong sense of community. Those who appreciate a quieter lifestyle, away from the hustle of major metropolitan areas, will find Niigata appealing. Additionally, the cost of living is generally lower than in Tokyo or Kyoto, with more affordable public transportation options and everyday expenses. However, it’s worth noting that access to certain amenities and entertainment may be limited compared to larger cities. For those prioritizing a peaceful environment, affordability, and natural beauty, Niigata Prefecture can be an ideal choice for relocation.
AllAkiyas.com puts at your disposition thousands of Japanese real estate listings of properties available for sale or rent. Our extensive listings include detached houses, townhouses, apartments, commercial spaces, and vacant lots. We place a special focus on traditional vacant houses, known as akiya (or kominka in rural areas), and traditional townhouses, or machiya. You can easily search for properties across all of Japan's prefectures using your specific criteria.