
Verify availabilityAdd to lists:✕

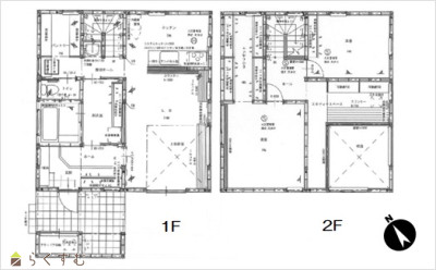
This house was built in the late Edo period, in Hanno, and is the property of a master brewer. At the time, the owner lived in the neighboring village, a 5-minute drive away. He was an office worker, his wife ran a store, and his grandmother lived in the house. It has not been vacant for 150 years.江戸末期築、半野、杜氏の家柄です。当時持主は車で5分の隣部落に住み、勤め人で妻は店経営、祖母が当家に暮らしていました。150年間空家無しです。
| Land:土地面積 | 825 m² |
|---|---|
| Building:建物面積 | 153 m² |
| Scale:建物規模 | 3 stories3階建 |
| Structure:構造 | Wooden thatched roof (covered with tin) traditional Japanes木造茅葺き(トタン被せ)古民家造り |
| Built in:建築年 | 2004 |

This house was built in the late Edo period, in Hanno, and is the property of a master brewer. At the time, the owner lived in the neighboring village, a 5-minute drive away. He was an office worker, his wife ran a store, and his grandmother lived in the house. It has not been vacant for 150 years.江戸末期築、半野、杜氏の家柄です。当時持主は車で5分の隣部落に住み、勤め人で妻は店経営、祖母が当家に暮らしていました。150年間空家無しです。
| Land:土地面積 | 825 m² |
|---|---|
| Building:建物面積 | 153 m² |
| Scale:建物規模 | 3 stories3階建 |
| Structure:構造 | Wooden thatched roof (covered with tin) traditional Japanes木造茅葺き(トタン被せ)古民家造り |
| Built in:建築年 | 2004 |

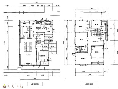
There is a garage and a workshop. A house built in a quiet residential area. The number of rooms is substantial and spacious, making it easy to use. The hallway and kitchen floor on the first floor have been repaired.車庫・作業小屋あり。閑静な住宅地に建つ家。部屋数充実な上広いので使い勝手抜群。1階の廊下とキッチンの床補修済みです。
| Land:土地面積 | 467 m² |
|---|---|
| Building:建物面積 | 193 m² |
| Structure:構造 | Two-story wooden building with tiled roof木造瓦葺2階建 |
| Built in:建築年 | 1972 |

About 3 minutes on foot from the subdivision (7 sections) to Osaki Beach (the property is on a hill), Izumozaki about 8 km, Kashiwazaki about 16 km, Nagaoka about 32 km, public register transaction, current situation, exemption from liability for non-conformity with contract, boundary not specified, Reiwa 6 year solid city tax 28,500 yen分譲地(7区画)より大崎海水浴場まで徒歩約3分(物件は高台にあります)、出雲崎約8km、柏崎約16km、長岡約32km、公簿取引、現況有姿、契約不適合責任免責、境界非明示、固都税年間28,500円
| Land:土地面積 | 306 m² |
|---|---|
| Building:建物面積 | 101 m² |
| Scale:建物規模 | 2 floors above ground地上2階 |
| Structure:構造 | Wooden木造 |
| Built in:建築年 | 1976 |

I inherited my parents' house, but I have no plans to use it at the moment, so I decided to sell it to someone who can make good use of it. Although it is inconvenient compared to the city, it is a property with a south-facing veranda that is perfect for those who want to relax in a quiet, natural, scenic environment. Ski resorts, hot springs, and the beach are also nearby. Although appropriate repairs have been carried out, the building is over 50 years old, so we will provide it with a contract non-compliance waiver (as is). After checking the current situation, we can negotiate the price separately. Please let us consult you separately about the delivery date. Snow automatically slides off the roof, so there is usually no need to climb on the roof to remove snow. Groundwater also flows naturally and can be used to melt snow. It is a flush toilet. The air conditioner seems to still be usable. The gas is propane gas. A car is probably necessary. There are also years when it snows heavily.この度実家を相続しましたが今のところ利用の予定がなく、有効に使っていただける方にご活用いただきたく手放すことといたしました。都会に比べると不便ではありますが、静かで自然豊かな景色の良い環境でゆったりと過ごしてみたい方にぴったりな、南向き縁側付きの物件です。スキー場や温泉、海水浴場も近いです。適宜修繕実施済みではありますが、築年数50年を超えており、契約不適合免責(現況有姿)で提供させていただきます。現状をご確認いただいた後に、別途価格の相談可能です。引渡し時期は、別途ご相談させてください。雪は屋根から自動的に滑り落ちてくるので、屋根に登って除雪する必要が通常ありません。地下水も自噴しており、融雪に使えます。水洗トイレです。エアコンは、まだまだ使えそうです。ガスはプロパンガスです。車が必須かと思われます。大雪が降る年もあります。
| Land:土地面積 | 184 m² |
|---|---|
| Building:建物面積 | 174 m² |
| Structure:構造 | Two-story wooden building木造2階建て |
| Built in:建築年 | 1970 |

Niigata Prefecture, located on the western coast of Honshu, offers a unique lifestyle characterized by its beautiful natural landscapes, rich cultural heritage, and strong agricultural traditions. Residents can enjoy outdoor activities such as skiing in the winter and hiking in the picturesque mountains during warmer months. The region is also famous for its high-quality rice, sake, and seafood, which contribute to a vibrant food culture. Finding affordable housing in Niigata can be less challenging compared to urban centers like Tokyo and Osaka. Traditional homes and apartments are available at reasonable prices, particularly in rural areas. While housing costs vary, you can often find spacious properties with gardens for a fraction of the price of equivalent homes in larger cities. In terms of quality of life, Niigata boasts a more relaxed pace, lower crime rates, and a strong sense of community. Those who appreciate a quieter lifestyle, away from the hustle of major metropolitan areas, will find Niigata appealing. Additionally, the cost of living is generally lower than in Tokyo or Kyoto, with more affordable public transportation options and everyday expenses. However, it’s worth noting that access to certain amenities and entertainment may be limited compared to larger cities. For those prioritizing a peaceful environment, affordability, and natural beauty, Niigata Prefecture can be an ideal choice for relocation.
AllAkiyas.com puts at your disposition thousands of Japanese real estate listings of properties available for sale or rent. Our extensive listings include detached houses, townhouses, apartments, commercial spaces, and vacant lots. We place a special focus on traditional vacant houses, known as akiya (or kominka in rural areas), and traditional townhouses, or machiya. You can easily search for properties across all of Japan's prefectures using your specific criteria.