
Verify availabilityAdd to lists:✕

This house was built in the late Edo period, in Hanno, and is the property of a master brewer. At the time, the owner lived in the neighboring village, a 5-minute drive away. He was an office worker, his wife ran a store, and his grandmother lived in the house. It has not been vacant for 150 years.江戸末期築、半野、杜氏の家柄です。当時持主は車で5分の隣部落に住み、勤め人で妻は店経営、祖母が当家に暮らしていました。150年間空家無しです。
| Land:土地面積 | 825 m² |
|---|---|
| Building:建物面積 | 153 m² |
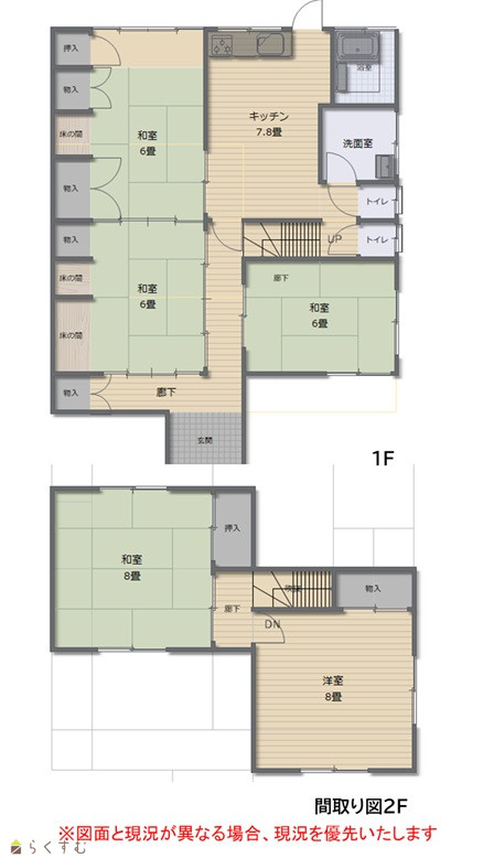
| Scale:建物規模 | 3 stories3階建 |
| Structure:構造 | Wooden thatched roof (covered with tin) traditional Japanes木造茅葺き(トタン被せ)古民家造り |
| Built in:建築年 | 2004 |

This house was built in the late Edo period, in Hanno, and is the property of a master brewer. At the time, the owner lived in the neighboring village, a 5-minute drive away. He was an office worker, his wife ran a store, and his grandmother lived in the house. It has not been vacant for 150 years.江戸末期築、半野、杜氏の家柄です。当時持主は車で5分の隣部落に住み、勤め人で妻は店経営、祖母が当家に暮らしていました。150年間空家無しです。
| Land:土地面積 | 825 m² |
|---|---|
| Building:建物面積 | 153 m² |
| Scale:建物規模 | 3 stories3階建 |
| Structure:構造 | Wooden thatched roof (covered with tin) traditional Japanes木造茅葺き(トタン被せ)古民家造り |
| Built in:建築年 | 2004 |

An old house with a hearth and kettle. The number of rooms is substantial and easy to use. There is an amusement facility nearby.囲炉裏&釜戸付き古民家。部屋数が充実していて使い勝手抜群。近くにアミューズメント施設あり。
| Land:土地面積 | 1106 m² |
|---|---|
| Building:建物面積 | 131 m² |
| Scale:建物規模 | One-story building (currently available on the 2nd floor)平屋建(現状2階有) |
| Structure:構造 | One-story wooden thatched roof木造草葺平屋建 |

Built in 2017, 5LDK used house with a site of 80 tsubo. There is a spacious garden where children can play and have a vegetable garden.2017年築、敷地80坪の5LDK中古住宅。子供たちが遊んだり、家庭菜園ができるゆったりとした庭があります。
| Land:土地面積 | 266 m² |
|---|---|
| Building:建物面積 | 135 m² |
| Scale:建物規模 | 2 stories2階建 |
| Structure:構造 | Wooden木造 |
| Built in:建築年 | 2017 |

Built in 2017, 5LDK used house with a site of 80 tsubo. There is a spacious garden where children can play and have a vegetable garden.2017年築、敷地80坪の5LDK中古住宅。子供たちが遊んだり、家庭菜園ができるゆったりとした庭があります。
| Land:土地面積 | 265 m² |
|---|---|
| Building:建物面積 | 134 m² |
| Scale:建物規模 | 2 stories2階建 |
| Structure:構造 | Wooden木造 |
| Built in:建築年 | 2017 |

The popular Handa Residential Complex "Fir Tree House" was built shallowly, and it is an all-electric 2LDK for small households. The entrance storage, pantry, and closet are neatly tidied up with plenty of storage.人気の半田住宅団地内「もみの木の家」築浅、少人数世帯向けオール電化2LDK。玄関収納、パントリー、クローゼットは収納たっぷりですっきり片付きます。
| Land:土地面積 | 217 m² |
|---|---|
| Building:建物面積 | 100 m² |
| Scale:建物規模 | 2 stories2階建 |
| Structure:構造 | Wooden木造 |
| Built in:建築年 | 2021 |

A house in a quiet forest (about 900 tsubo). A house with a view of the trees at all times, such as the living room, bathroom, and veranda. Perfect for those who want to garden! The large grounds allow you to enjoy natural flowers and trees. The storehouse of about 15 tsubo was built in the Meiji era.静かな森の中(約900坪)の一軒家。リビング・浴室・ベランダなど、常に木々を眺める家。ガーデニングしたい方には最適!広い敷地は自然の草花や樹が楽しめます。約15坪の土蔵は明治築。
| Land:土地面積 | 2951 m² |
|---|---|
| Building:建物面積 | 98 m² |
| Scale:建物規模 | 2 stories2階建 |
| Structure:構造 | Wooden木造 |
| Built in:建築年 | 1967 |

The popular Handa Residential Complex "Fir Tree House" was built shallowly, and it is an all-electric 2LDK for small households. The entrance storage, pantry, and closet are neatly tidied up with plenty of storage.人気の半田住宅団地内「もみの木の家」築浅、少人数世帯向けオール電化2LDK。玄関収納、パントリー、クローゼットは収納たっぷりですっきり片付きます。
| Land:土地面積 | 217 m² |
|---|---|
| Building:建物面積 | 100 m² |
| Scale:建物規模 | 2 stories2階建 |
| Structure:構造 | Wooden木造 |
| Built in:建築年 | 2021 |

There is a garage and a workshop. A house built in a quiet residential area. The number of rooms is substantial and spacious, making it easy to use. The hallway and kitchen floor on the first floor have been repaired.車庫・作業小屋あり。閑静な住宅地に建つ家。部屋数充実な上広いので使い勝手抜群。1階の廊下とキッチンの床補修済みです。
| Land:土地面積 | 467 m² |
|---|---|
| Building:建物面積 | 193 m² |
| Structure:構造 | Two-story wooden building with tiled roof木造瓦葺2階建 |
| Built in:建築年 | 1972 |

Niigata Prefecture, located on the western coast of Honshu, offers a unique lifestyle characterized by its beautiful natural landscapes, rich cultural heritage, and strong agricultural traditions. Residents can enjoy outdoor activities such as skiing in the winter and hiking in the picturesque mountains during warmer months. The region is also famous for its high-quality rice, sake, and seafood, which contribute to a vibrant food culture. Finding affordable housing in Niigata can be less challenging compared to urban centers like Tokyo and Osaka. Traditional homes and apartments are available at reasonable prices, particularly in rural areas. While housing costs vary, you can often find spacious properties with gardens for a fraction of the price of equivalent homes in larger cities. In terms of quality of life, Niigata boasts a more relaxed pace, lower crime rates, and a strong sense of community. Those who appreciate a quieter lifestyle, away from the hustle of major metropolitan areas, will find Niigata appealing. Additionally, the cost of living is generally lower than in Tokyo or Kyoto, with more affordable public transportation options and everyday expenses. However, it’s worth noting that access to certain amenities and entertainment may be limited compared to larger cities. For those prioritizing a peaceful environment, affordability, and natural beauty, Niigata Prefecture can be an ideal choice for relocation.
AllAkiyas.com puts at your disposition thousands of Japanese real estate listings of properties available for sale or rent. Our extensive listings include detached houses, townhouses, apartments, commercial spaces, and vacant lots. We place a special focus on traditional vacant houses, known as akiya (or kominka in rural areas), and traditional townhouses, or machiya. You can easily search for properties across all of Japan's prefectures using your specific criteria.