
Verify availabilityAdd to lists:✕

Vacant house bank [sale] 700,000 yen Higashi-Nagashima, Kihoku-cho, Kitamuro-gun, Mie Prefecture 4DK compact one-story old house with garden, warehouse, and parking lot空き家バンク【売買】70万円 三重県北牟婁郡紀北町東長島 庭・倉庫・駐車場付き4DKコンパクト平屋古民家
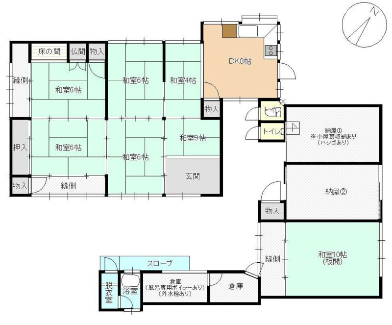
| Land:土地面積 | 205 m² |
|---|---|
| Building:建物面積 | 68 m² |
| Structure:構造 | Wooden one-story house木造平屋 |

There is no parking on the premises, but the property is close to the station.
Price has been changed!敷地内に駐車場はありませんが、駅に近い物件です。
価格変更しました!
| Land:土地面積 | 221 m² |
|---|---|
| Building:建物面積 | 165 m² |
| Scale:建物規模 | 2-story / -2階建 / - |
| Structure:構造 | Wooden木造 |
| Built in:建築年 | 1959 |

◆Good location near the sea! ◆If you are fishing, how about using it as an inn and workshop? ◆◆There is no parking lot, but there is a parking lot along the coast just a short walk away◆※The boundary is not confirmed. *There is a cross-border item on the roof on the west side of the building.◆海が近くロケーション良好!◆釣りをされる方、宿兼作業場としていかがですか?◆◆駐車場はありませんが歩いてすぐのところに海岸沿いに駐車場があります◆※境界確定は行いません。※建物西側の屋根に越境物があります。
| Land:土地面積 | 151 m² |
|---|---|
| Building:建物面積 | 55 m² |
| Scale:建物規模 | 1 floor above ground地上1階平屋 |
| Structure:構造 | Wooden木造 |
| Built in:建築年 | 1963 |

Mie Prefecture, located in the Kansai region of Japan, offers a unique blend of traditional and modern lifestyles. Nestled between the mountains and the coastline, Mie is renowned for its stunning natural beauty, particularly the Ise Shima National Park and the famous Ise Shrine. Residents enjoy a slower-paced life, with access to serene beaches, lush countryside, and local hot springs, fostering a strong sense of community and connection to nature. Finding affordable housing in Mie Ken can be easier compared to larger urban centers like Tokyo or Osaka. Average rent prices tend to be significantly lower, allowing for more spacious living arrangements. While the housing market is less dynamic than in metropolitan areas, opportunities for purchasing property exist, especially for those considering older homes in rural areas that come at lower costs. In terms of quality of life, Mie boasts excellent healthcare facilities, good public transportation options, and a variety of local markets showcasing fresh produce and seafood. The area is less crowded, offering a peaceful environment conducive to family life or retirement. The cost of living, while rising, remains relatively manageable compared to big cities. Overall, Mie Ken represents an attractive option for those seeking an affordable and fulfilling lifestyle in Japan, blending tranquility with cultural richness, while still being within reach of larger urban amenities.
AllAkiyas.com puts at your disposition thousands of Japanese real estate listings of properties available for sale or rent. Our extensive listings include detached houses, townhouses, apartments, commercial spaces, and vacant lots. We place a special focus on traditional vacant houses, known as akiya (or kominka in rural areas), and traditional townhouses, or machiya. You can easily search for properties across all of Japan's prefectures using your specific criteria.