
Verify availabilityAdd to lists:✕

Parking space is also available on the large land. For those who want a leisurely country life.広い土地で駐車スペースもとれます。のんびり田舎生活をご希望の方へ。
| Land:土地面積 | 1188 m² |
|---|---|
| Building:建物面積 | 111 m² |
| Scale:建物規模 | 1 story / -1階建 / - |
| Structure:構造 | Wooden木造 |
| Built in:建築年 | 1909 |

[Living information around the property]
・School
Kiwaki Elementary School (3,690m), Kiwaki Junior High School (3,998m)
・Shopping
Supermarket (5,272m), convenience store (4,412m), drugstore (4,272m)
・Other facilities
DiREX Kokutomi store (4,211m)
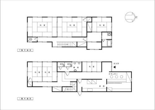
[Property code] 156101-22013, this is a bright detached house featuring a living room of over 20 tatami mats. One room has a loft, which is convenient for storing luggage that is not usually used. In the private garden, you can enjoy outdoor activities at home, such as grilled meat. 【Facilities and Special Notes】All rooms are stored【物件周辺の生活情報】
・学校
木脇小学校(3,690m)、木脇中学校(3,998m)
・買い物
スーパー(5,272m)、コンビニ(4,412m)、ドラッグストア(4,272m)
・その他施設
DiREX国富店(4,211m)
[物件コード]156101-22013、20帖超えリビングが特徴の明るい戸建てです。1部屋にはロフトがあり、普段使用しない荷物の収納にも便利です。専用庭では焼き肉などお家でアウトドアを楽しめそうです。 【設備・特記事項備考】全居室収納
| Land:土地面積 | 263 m² |
|---|---|
| Building:建物面積 | 89 m² |
| Structure:構造 | One-story wooden building木造平屋建て |
| Built in:建築年 | 2016 |

Vacant House Bank [For Sale] 1.5 million yen Miyazaki Prefecture Nishimorokata-gun Kunitomi-cho Oaza Fukanoshi, a place rich in nature, built in 1907, single-story old house with parking for several cars, septic tank空き家バンク【売買】150万円 宮崎県西諸県郡国富町大字深年 自然豊かな場所・明治40年築 駐車場数台付き平屋古民家 浄化槽
| Land:土地面積 | 638 m² |
|---|---|
| Building:建物面積 | 75 m² |
| Structure:構造 | Wooden one-story house木造平屋 |

\< Esthetics at home > MAEMURA-BATH, MAEMURA AND BLE included! /☆ About 500m to the elementary school! High school is also nearby, making it convenient ♪ for children to commute to and from school.\<おうちでエステ>MAEMURA-BATH、MAEMURA・BLE付き!/☆小学校まで約500m!高校も近く、お子様の登下校も便利♪
| Land:土地面積 | 143 m² |
|---|---|
| Building:建物面積 | 86 m² |
| Scale:建物規模 | Two-story wooden building木造2階建 |
| Structure:構造 | Wooden木造 |
| Built in:建築年 | 2023 |

[70,000 yen per month! ] No down payment, no bonus payment! Low-interest online bank partnership! 】
[Open House Information]
2025/05/04 (Sun) ~ 2026/01/16 (Fri) (10:00 to 17:00)
Parking lot for 3 cars or more, used public treasury available, all-electric, long-term excellent housing【月々7万円台!頭金、ボーナス支払いなし!低金利ネット銀行提携!】
【オープンハウス情報】
2025年05月04日(日)~2026年01月16日(金)(10:00から17:00まで)
駐車場3台分以上・中古公庫利用可・オール電化・長期優良住宅
| Land:土地面積 | 211 m² |
|---|---|
| Building:建物面積 | 102 m² |
| Scale:建物規模 | Two-story wooden building木造2階建 |
| Structure:構造 | Wooden木造 |
| Built in:建築年 | 2023 |

\3 parking spaces available & living room air conditioning / South road, corner lot, so the sun is good! It is a 4-minute walk to junior high school, so it is convenient for children to go to and from school.\駐車3台可&リビングエアコン付き/ 南道路、角地のため日当たり良好!中学校まで徒歩4分ですので、お子様の登下校も便利です。
| Land:土地面積 | 115 m² |
|---|---|
| Building:建物面積 | 81 m² |
| Scale:建物規模 | Two-story wooden building木造2階建 |
| Structure:構造 | Wooden木造 |
| Built in:建築年 | 2023 |

Miyazaki Prefecture, located on the eastern coast of Kyushu, offers a unique blend of natural beauty, a mild climate, and a vibrant local culture that makes it an appealing destination for those considering relocation. Known for its stunning coastal scenery, including the picturesque Takachiho Gorge and the serene beaches of Aoshima, Miyazaki provides a tranquil lifestyle with opportunities for outdoor activities such as hiking, surfing, and exploring lush landscapes. The prefecture is also renowned for its agriculture, particularly its high-quality fruits, which contribute to a rich local cuisine. One of the standout features of Miyazaki Ken is its affordability compared to more populous regions like Tokyo or Osaka. Real estate options range from charming traditional homes to modern properties, often at prices significantly lower than those found in urban centers, making it an ideal choice for budget-minded buyers. Additionally, Miyazaki's welcoming community and milder climate, coupled with a lower cost of living, further enhance its suitability as a long-term residence. The region has retained a traditional Japanese feel, often characterized by its warm hospitality and slower pace, making it perfect for those seeking a harmonious blend of modern amenities and cultural experiences. With excellent transport links, including the Miyazaki Airport servicing domestic and some international routes, the prefecture is well-connected while still offering an appealing escape from the hustle and bustle of city life.
AllAkiyas.com puts at your disposition thousands of Japanese real estate listings of properties available for sale or rent. Our extensive listings include detached houses, townhouses, apartments, commercial spaces, and vacant lots. We place a special focus on traditional vacant houses, known as akiya (or kominka in rural areas), and traditional townhouses, or machiya. You can easily search for properties across all of Japan's prefectures using your specific criteria.