
Verify availabilityAdd to lists:✕

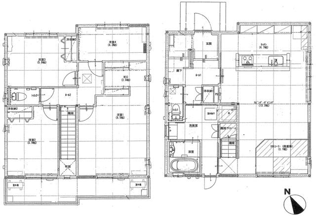
◇◆Design house built by Panahome◆◇ A corner of a quiet residential area There is room for cars to enter and exit because the front road is a corner Built in Heisei 27 Lightweight steel structure Katsu 4 rooms and WIC There is a tatami corner in the living room◇◆パナホーム施工のデザイン住宅◆◇ 閑静な分譲住宅街の一角 前面道路がコーナーになっているため車の出入りにゆとりがあります 平成27年築 軽量鉄骨造 嘉津4部屋とWIC リビングには畳コーナーあり
| Land:土地面積 | 233 m² |
|---|---|
| Building:建物面積 | 115 m² |
| Scale:建物規模 | 2 floors above ground地上2階 |
| Structure:構造 | Other軽量鉄骨造 |
| Built in:建築年 | 2015 |

◇◆Affordable single-story house near shopping facilities◆◇ An enclave in Mutsuzawa-cho adjacent to Mobara City Formed lot facing the northwest road One parking space Small garden on the south side The building was built in 1975 15 tsubo 3DK single-story house 6.5 tatami Western-style room is an extension◇◆買い物施設が近い手ごろな平屋住宅◆◇ 茂原市隣接の睦沢町飛地 北西側道路に面した整形地 駐車場1台 南側に若干庭 建物は昭和50年築 15坪3DK 平屋住宅 6.5帖洋室は増築部分
| Land:土地面積 | 169 m² |
|---|---|
| Building:建物面積 | 41 m² |
| Scale:建物規模 | 1 floor above ground地上1階平屋 |
| Structure:構造 | Wooden木造 |
| Built in:建築年 | 1975 |

Mortgage to JTM Shoji! Reservation for the tour completed without interaction ◎ 24-hour guidance available ◎住宅ローンはJTM商事へ!やりとりなしで見学予約完了◎24時間案内可◎
| Land:土地面積 | 339 m² |
|---|---|
| Building:建物面積 | 82 m² |
| Structure:構造 | Lightweight steel frame iron plate roofed two-story buildin軽量鉄骨造鉄板葺2階建 |
| Built in:建築年 | 1974 |

Chiba, located just east of Tokyo, is a captivating prefecture that offers a unique blend of natural beauty, vibrant city life, and affordability, making it an ideal choice for those considering relocation to Japan. Unlike the bustling metropolis of Tokyo, Chiba provides a quieter lifestyle while still being easily accessible to the capital via the efficient train system, allowing for a seamless commute for work or leisure. Chiba boasts stunning coastal areas along the Pacific Ocean, perfect for water sports enthusiasts and beach lovers, with spots like Kujukuri Beach offering long sandy stretches for relaxation. Additionally, the prefecture is home to various cultural landmarks, including the historic Naritasan Shinshoji Temple and the famed Chiba Zoo, catering to families and individuals seeking a rich cultural experience. When it comes to real estate, Chiba stands out for its affordability, with property prices significantly lower than those found in Tokyo or Kanagawa. This allows prospective buyers to secure larger homes, often with gardens or more spacious layouts, all within a reasonable budget. The prefecture's diverse neighborhoods range from urban areas like Chiba City, which has a vibrant nightlife and shopping scene, to picturesque rural towns that provide a peaceful countryside lifestyle. Overall, Chiba Ken is an enticing option for anyone looking to buy affordable property while enjoying the benefits of both nature and proximity to Japan's bustling capital.
AllAkiyas.com puts at your disposition thousands of Japanese real estate listings of properties available for sale or rent. Our extensive listings include detached houses, townhouses, apartments, commercial spaces, and vacant lots. We place a special focus on traditional vacant houses, known as akiya (or kominka in rural areas), and traditional townhouses, or machiya. You can easily search for properties across all of Japan's prefectures using your specific criteria.