
Verify availabilityAdd to lists:✕

Myoko-san is one of Japan's 100 most famous mountains. Myoko-shi, which spreads out at the foot of the mountain, is a mountain town known as a summer resort and a ski resort in the winter. A property with a large plot of land is now available in the vacant house bank. We recommend enjoying agricultural life, such as growing shiitake mushrooms, which is hard to experience in urban areas.日本百名山に数えられる妙高山。その麓に広がる妙高市は、夏は避暑地、冬はスキーリゾートとして知られる山岳都市だ。広い敷地を有する空き家バンクの物件が登場。シイタケ栽培など、市街地ではなかなか体験できない農的生活を楽しむのもオススメだ。
| Land:土地面積 | 1570 m² |
|---|---|
| Building:建物面積 | 257 m² |
| Built in:建築年 | 1978 |

Myoko is known as a summer resort and a skiing spot in winter. The interior of this vacant house has been renovated. A lot of wood has been used to create a warm interior. New furniture and equipment have also been installed.
After purchasing, you are free to renovate it to make it into a villa of your choice. The interior is in good condition because it is managed by the owner of a cafe that is a hangout spot for the local residents. The price is kept low because it was purchased from a vacant house and renovated. You can negotiate the price. Please feel free to contact us. We will consult with you about the timing. We would be happy if you could join us in making the Myoko area more lively.夏は避暑地として、冬はスキーの名所として知られる妙高です。元々空き家だったものの内装をリノベーションしました。木材を多く利用して、暖かみのある内装となっております。造作の家具や設備も新たに取り付けております。
購入後も自由にリノベーションしていただき、より好みの別荘に仕上げて欲しいです。ご近所に住民の皆さんが溜まり場にしているカフェのオーナーさんが管理しているため、中は綺麗な状態になっております。空き家から仕入れてリノベーションしているので、価格を抑えられています。価格交渉できます。自由にご相談ください。時期は相談に乗ります。妙高の地域を一緒に活気あるものにしてくれると嬉しいです。
| Land:土地面積 | 200 m² |
|---|---|
| Building:建物面積 | 120 m² |
| Scale:建物規模 | 1 story1階建て |
| Structure:構造 | Wooden木造 |

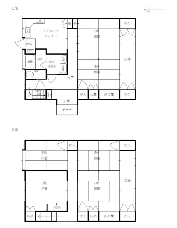
Vacant House Bank [For Sale] 3 million yen Niigata Prefecture, Myoko City, Niigata Prefecture, Niijima, along the national highway, naturally falling snow, Western-style roof, suitable for a shared house, sunroom, wide veranda, parking lot, 10DK, 2-story house空き家バンク【売買】300万円 新潟県妙高市楡島 国道沿い・自然落雪洋風屋根・シェアハウス向き サンルーム・広縁・駐車場付き10DK2階建
| Land:土地面積 | 395 m² |
|---|---|
| Building:建物面積 | 177 m² |
| Structure:構造 | Two-story wooden structure木造2階建 |

★Affordable 5 bedroom detached house♪★Take a look inside♪★Located on the south side of the road, it gets plenty of sunlight♪★お手頃価格の5SDK戸建♪★室内を見てみて下さい♪★南側道路で日当たりバッチリ♪
| Land:土地面積 | 198 m² |
|---|---|
| Building:建物面積 | 121 m² |
| Scale:建物規模 | 2 floors above ground地上2階 |
| Structure:構造 | Wooden木造 |
| Built in:建築年 | 1960 |

(Under negotiation) Vacant house bank [Sale] 1.8 million yen Kyozuka-cho, Myoko City, Niigata Prefecture Quiet residential area, convenient for commuting to school 6DK 2-story building with 5 parking lots Wide edge on each floor, continuous room(交渉中)空き家バンク【売買】180万円 新潟県妙高市経塚町 閑静住宅地・通学便利 駐車場5台付き6DK2階建 各階広縁・続き間有
| Land:土地面積 | 291 m² |
|---|---|
| Building:建物面積 | 137 m² |
| Structure:構造 | Two-story wooden structure木造2階建 |

Niigata Prefecture, located on the western coast of Honshu, offers a unique lifestyle characterized by its beautiful natural landscapes, rich cultural heritage, and strong agricultural traditions. Residents can enjoy outdoor activities such as skiing in the winter and hiking in the picturesque mountains during warmer months. The region is also famous for its high-quality rice, sake, and seafood, which contribute to a vibrant food culture. Finding affordable housing in Niigata can be less challenging compared to urban centers like Tokyo and Osaka. Traditional homes and apartments are available at reasonable prices, particularly in rural areas. While housing costs vary, you can often find spacious properties with gardens for a fraction of the price of equivalent homes in larger cities. In terms of quality of life, Niigata boasts a more relaxed pace, lower crime rates, and a strong sense of community. Those who appreciate a quieter lifestyle, away from the hustle of major metropolitan areas, will find Niigata appealing. Additionally, the cost of living is generally lower than in Tokyo or Kyoto, with more affordable public transportation options and everyday expenses. However, it’s worth noting that access to certain amenities and entertainment may be limited compared to larger cities. For those prioritizing a peaceful environment, affordability, and natural beauty, Niigata Prefecture can be an ideal choice for relocation.
AllAkiyas.com puts at your disposition thousands of Japanese real estate listings of properties available for sale or rent. Our extensive listings include detached houses, townhouses, apartments, commercial spaces, and vacant lots. We place a special focus on traditional vacant houses, known as akiya (or kominka in rural areas), and traditional townhouses, or machiya. You can easily search for properties across all of Japan's prefectures using your specific criteria.