





Add to lists:✕
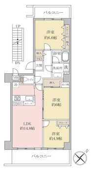
Located 3 minutes walk from Nagareyama Otakanomori Station! 1st floor of 11-story reinforced concrete building! 3LDK layout facing southwest with good sunlight! Vacant! Please feel free to contact us first!流山おおたかの森駅徒歩3分の立地!RC造の地上11階建ての1階部分!3LDKの間取りで南西向きで陽当り良好です!空き家になっています!まずはお気軽にお問い合わせください!
Building:建物面積 | 70 m² |
---|---|
Scale:建物規模 | 1st floor/RC 11-story building1階/RC11階建 |
Structure:構造 | RC 11-story buildingRC11階建 |
Built in:建築年 | 2015 |
Chiba, located just east of Tokyo, is a captivating prefecture that offers a unique blend of natural beauty, vibrant city life, and affordability, making it an ideal choice for those considering relocation to Japan. Unlike the bustling metropolis of Tokyo, Chiba provides a quieter lifestyle while still being easily accessible to the capital via the efficient train system, allowing for a seamless commute for work or leisure. Chiba boasts stunning coastal areas along the Pacific Ocean, perfect for water sports enthusiasts and beach lovers, with spots like Kujukuri Beach offering long sandy stretches for relaxation. Additionally, the prefecture is home to various cultural landmarks, including the historic Naritasan Shinshoji Temple and the famed Chiba Zoo, catering to families and individuals seeking a rich cultural experience. When it comes to real estate, Chiba stands out for its affordability, with property prices significantly lower than those found in Tokyo or Kanagawa. This allows prospective buyers to secure larger homes, often with gardens or more spacious layouts, all within a reasonable budget. The prefecture's diverse neighborhoods range from urban areas like Chiba City, which has a vibrant nightlife and shopping scene, to picturesque rural towns that provide a peaceful countryside lifestyle. Overall, Chiba Ken is an enticing option for anyone looking to buy affordable property while enjoying the benefits of both nature and proximity to Japan's bustling capital.
AllAkiyas.com puts at your disposition thousands of Japanese real estate listings of properties available for sale or rent. Our extensive listings include detached houses, townhouses, apartments, commercial spaces, and vacant lots. We place a special focus on traditional vacant houses, known as akiya (or kominka in rural areas), and traditional townhouses, or machiya. You can easily search for properties across all of Japan's prefectures using your specific criteria.