
No longer available
Please also visit the town homepage. https://www.town.otaki.chiba.jp/soshiki/kikaku/3/1/2/2/822.html
Otaki Town Vacant House Bank Properties. If you are interested, please register as a user
https://www.town.otaki.chiba.jp/kanko_iju_bunka/kanko_iju/ijyu/2/1146.html町ホームページもご覧ください。https://www.town.otaki.chiba.jp/soshiki/kikaku/3/1/2/2/822.html
大多喜町空き家バンク物件。希望の方は利用者登録を
https://www.town.otaki.chiba.jp/kanko_iju_bunka/kanko_iju/ijyu/2/1146.html
| Land:土地面積 | 1903 m² |
|---|---|
| Building:建物面積 | 170 m² |
| Scale:建物規模 | 2-story / -2階建 / - |
| Structure:構造 | Wooden木造 |
| Built in:建築年 | 1970 |

Otaki, 20 million yen. Tatami mats and sliding doors need to be replaced. The parking lot has been sold, but ownership has not been transferred. Public water is drawn in using a third party's land.
Otaki Town Vacant House Bank property. If you are interested, please register as a user.
https://www.town.otaki.chiba.jp/kanko_iju_bunka/kanko_iju/ijyu/2/1146.html大多喜 2800万円 畳替え、襖替えが必要です。駐車場は売買が完了していますが、所有権移転を行っていません。公営水道が第三者土地を利用して引き込まれています。
大多喜町空き家バンク物件。希望の方は利用者登録を
https://www.town.otaki.chiba.jp/kanko_iju_bunka/kanko_iju/ijyu/2/1146.html
| Land:土地面積 | 285 m² |
|---|---|
| Building:建物面積 | 169 m² |
| Structure:構造 | Wooden木造 |
| Built in:建築年 | 1972 |

町ホームページもご覧ください。https://www.town.otaki.chiba.jp/soshiki/kikaku/3/1/2/2/822.html
大多喜町空き家バンク物件。希望の方は利用者登録をhttps://www.town.otaki.chiba.jp/kanko_iju_bunka/kanko_iju/ijyu/2/1146.html町ホームページもご覧ください。https://www.town.otaki.chiba.jp/soshiki/kikaku/3/1/2/2/822.html
大多喜町空き家バンク物件。希望の方は利用者登録をhttps://www.town.otaki.chiba.jp/kanko_iju_bunka/kanko_iju/ijyu/2/1146.html
| Land:土地面積 | 3221 m² |
|---|---|
| Building:建物面積 | 143 m² |
| Scale:建物規模 | 2階建 / -2階建 / - |
| Structure:構造 | 木造木造 |
| Built in:建築年 | 1990 |

A high-quality environment surrounded by the colors of the four seasons. All-electric with new eco-friendly water heater, toilet, and washbasin.四季折々の彩りに包まれる良質な環境。オール電化でエコキュート・トイレ・洗面新品に交換。
| Land:土地面積 | 200 m² |
|---|---|
| Building:建物面積 | 101 m² |
| Scale:建物規模 | 2 floors above ground地上2階 |
| Structure:構造 | Wooden木造 |
| Built in:建築年 | 2005 |

町ホームページもご覧ください。https://www.town.otaki.chiba.jp/soshiki/kikaku/3/1/2/2/822.html
大多喜町空き家バンク物件。希望の方は利用者登録を
https://www.town.otaki.chiba.jp/kanko_iju_bunka/kanko_iju/ijyu/2/1146.html町ホームページもご覧ください。https://www.town.otaki.chiba.jp/soshiki/kikaku/3/1/2/2/822.html
大多喜町空き家バンク物件。希望の方は利用者登録を
https://www.town.otaki.chiba.jp/kanko_iju_bunka/kanko_iju/ijyu/2/1146.html
| Land:土地面積 | 833 m² |
|---|---|
| Building:建物面積 | 125 m² |
| Scale:建物規模 | 1階建 / -1階建 / - |
| Structure:構造 | 木造木造 |
| Built in:建築年 | 2003 |

Please also visit the town homepage. https://www.town.otaki.chiba.jp/soshiki/kikaku/3/1/2/2/822.html
Otaki Town Vacant House Bank Properties. If you are interested, please register as a user
https://www.town.otaki.chiba.jp/kanko_iju_bunka/kanko_iju/ijyu/2/1146.html町ホームページもご覧ください。https://www.town.otaki.chiba.jp/soshiki/kikaku/3/1/2/2/822.html
大多喜町空き家バンク物件。希望の方は利用者登録を
https://www.town.otaki.chiba.jp/kanko_iju_bunka/kanko_iju/ijyu/2/1146.html
| Land:土地面積 | 228 m² |
|---|---|
| Building:建物面積 | 104 m² |
| Scale:建物規模 | 1 story / -1階建 / - |
| Structure:構造 | Steel frame鉄骨 |
| Built in:建築年 | 2003 |

Built in 1966, extended in 1976. Floors etc. need repair. Toilet flushing.
For more information or to view the property, please register with the Otaki Vacant House Bank. We will connect you to the real estate agency in charge of this property.
Otaki Town Vacant House Bank property. If you are interested, please register.
https://www.town.otaki.chiba.jp/kanko_iju_bunka/kanko_iju/ijyu/2/1146.html昭和41年築・昭和51年増築。床等要修繕。トイレ汲取り。
詳細・見学希望の方は大多喜空き家バンクに利用登録をお願いします。本件担当の仲介会社におつなぎします。
大多喜町空き家バンク物件。希望の方は利用者登録を
https://www.town.otaki.chiba.jp/kanko_iju_bunka/kanko_iju/ijyu/2/1146.html
| Land:土地面積 | 294 m² |
|---|---|
| Building:建物面積 | 129 m² |
| Structure:構造 | Wooden木造 |
| Built in:建築年 | 1966 |

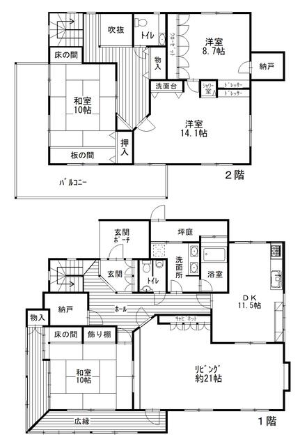
200m from Isumi Railway Otaki Station. A corner of Castle Town Street. You can see Otaki Castle from the second floor. Half of the site is a former private parking lot.
As this is a landscape formation district, prior notification is required for changes to the exterior.
Otaki town vacant house bank property. If you would like to take a tour inside, please register as a bank user. https://www.town.otaki.chiba.jp/index.cfm/9,363,56,htmlいすみ鉄道大多喜駅200m。城下町通りの一角。2階からは大多喜城が見えます。敷地の半分は元専用駐車場。
景観形成地区のため、外観変更には事前の届出が必要です。
大多喜町空き家バンク物件。希望の方は利用者登録を
https://www.town.otaki.chiba.jp/kanko_iju_bunka/kanko_iju/ijyu/2/1146.html
| Land:土地面積 | 536 m² |
|---|---|
| Building:建物面積 | 128 m² |
| Structure:構造 | Wooden木造 |
| Built in:建築年 | 1972 |

Chiba, located just east of Tokyo, is a captivating prefecture that offers a unique blend of natural beauty, vibrant city life, and affordability, making it an ideal choice for those considering relocation to Japan. Unlike the bustling metropolis of Tokyo, Chiba provides a quieter lifestyle while still being easily accessible to the capital via the efficient train system, allowing for a seamless commute for work or leisure. Chiba boasts stunning coastal areas along the Pacific Ocean, perfect for water sports enthusiasts and beach lovers, with spots like Kujukuri Beach offering long sandy stretches for relaxation. Additionally, the prefecture is home to various cultural landmarks, including the historic Naritasan Shinshoji Temple and the famed Chiba Zoo, catering to families and individuals seeking a rich cultural experience. When it comes to real estate, Chiba stands out for its affordability, with property prices significantly lower than those found in Tokyo or Kanagawa. This allows prospective buyers to secure larger homes, often with gardens or more spacious layouts, all within a reasonable budget. The prefecture's diverse neighborhoods range from urban areas like Chiba City, which has a vibrant nightlife and shopping scene, to picturesque rural towns that provide a peaceful countryside lifestyle. Overall, Chiba Ken is an enticing option for anyone looking to buy affordable property while enjoying the benefits of both nature and proximity to Japan's bustling capital.
AllAkiyas.com puts at your disposition thousands of Japanese real estate listings of properties available for sale or rent. Our extensive listings include detached houses, townhouses, apartments, commercial spaces, and vacant lots. We place a special focus on traditional vacant houses, known as akiya (or kominka in rural areas), and traditional townhouses, or machiya. You can easily search for properties across all of Japan's prefectures using your specific criteria.