
Verify availabilityAdd to lists:✕

Vacant House Bank [For Sale] 2 million yen [For Rent] 30,000 yen Yoshino-cho, Seki City, Gifu Prefecture City Center, convenient to school Compact one-story old house with two rooms and a garden Water and sewerage Wide veranda, adjacent rooms空き家バンク【売買】200万円【賃貸】3万円 岐阜県関市吉野町 市中心部・通学便利 庭付き2部屋コンパクト平屋古民家 上下水道 広縁・続き間有
| Land:土地面積 | 159 m² |
|---|---|
| Building:建物面積 | 56 m² |
| Structure:構造 | Wooden one-story house木造平屋 |

It is a one-story property in the center of Seki City, and is generally the size suitable for 1~2 people.
Both can be purchased or rented, and repairs and renovations are free.
Although it is an old building, it has been occupied until about a year and a half ago, and it seems that some equipment can be used.
There is no parking lot on the premises of the house, so you will have to use a nearby paid parking lot.
There is a floor, no parking関市の中心地にある平屋建ての物件で、大体1~2人暮らしに適した大きさです。
購入・賃貸どちらも可能で補修やリフォームも自由です。
古い建物になりますが、約1年半前まで居住しており、ある程度の設備は使用できると思われます。
家の敷地内には駐車場がないため、近所の有料駐車場を利用することになります。
床不陸あり、駐車場なし
| Land:土地面積 | 159 m² |
|---|---|
| Building:建物面積 | 56 m² |
| Structure:構造 | Wooden木造 |
| Built in:建築年 | 1972 |

A renovated old house built in a quiet place surrounded by mountains and rivers. Since the current owner renovated it for a restaurant, the stylish interior retains the taste of an old folk house (some are in the process of being renovated). Including 151.55 tsubo of mountain forest behind the building.山と川に囲まれた静かな場所に建つ古民家をリフォームした物件。現所有者が料理店向けにリフォームしたため、古民家としての味わいを残したお洒落な内装(一部リフォーム途中)。建物裏の山林151.55坪を含む。
| Land:土地面積 | 1114 m² |
|---|---|
| Building:建物面積 | 125 m² |
| Scale:建物規模 | 2 floors above ground地上2階 |
| Structure:構造 | Wooden木造 |
| Built in:建築年 | 1960 |

It is a one-story property in the center of Seki City, and is generally the size suitable for 1~2 people.
Both can be purchased or rented, and repairs and renovations are free.
Although it is an old building, it has been occupied until about a year and a half ago, and it seems that some equipment can be used.
There is no parking lot on the premises of the house, so you will have to use a nearby paid parking lot.
There is a floor, no parking関市の中心地にある平屋建ての物件で、大体1~2人暮らしに適した大きさです。
購入・賃貸どちらも可能で補修やリフォームも自由です。
古い建物になりますが、約1年半前まで居住しており、ある程度の設備は使用できると思われます。
家の敷地内には駐車場がないため、近所の有料駐車場を利用することになります。
床不陸あり、駐車場なし
| Security deposit:敷金 | Not clear不明 |
|---|---|
| Key money:礼金 | Not clear不明 |
| Land:土地面積 | Please inquire |
| Building:建物面積 | 56 m² |
| Exclusive area:専有面積 | 56 m² |
| Structure:構造 | Wooden木造 |
| Built in:建築年 | 1972 |

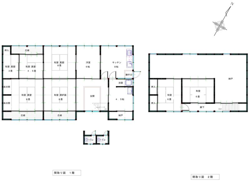
Vacant house bank [sale] 2 million yen Kaminoho, Seki City, Gifu Prefecture Large site 8 rooms 2-story old house with fields, mountains, forests, gardens, and storehouses Water supply and sewerage空き家バンク【売買】200万円 岐阜県関市上之保 広い敷地 畑・山林・庭・蔵付き8部屋2階建古民家 上下水道
| Land:土地面積 | 1168 m² |
|---|---|
| Building:建物面積 | 127 m² |
| Structure:構造 | Two-story wooden structure木造2階建 |

Gifu, centrally located in Japan, boasts a unique blend of natural beauty and cultural heritage, making it an attractive destination for those considering relocation. Nestled between the Japanese Alps, the prefecture features lush mountains, verdant valleys, and historical towns, such as Takayama and Gujo Hachiman, known for their traditional wooden architecture and seasonal festivals. When compared to more urbanized prefectures like Tokyo or Osaka, Gifu offers a significantly slower pace of life, contributing to a stronger sense of community and an enriching lifestyle. This tranquil environment is paired with affordable housing options; average property prices in Gifu Ken are generally lower than in bustling metropolitan areas, with opportunities for both urban apartments and countryside homes. For instance, you can find family homes for under ¥20 million in many parts of Gifu, whereas similar properties in Tokyo may easily double or triple that price. Moreover, Gifu's strategic location allows for convenient access to major cities, providing a perfect balance between serene rural living and urban amenities. The prefecture is also known for its delicious local cuisine and outdoor recreational activities, attracting nature enthusiasts and food lovers alike. In recent years, Gifu has seen an increase in foreign residents who appreciate the quality of life and affordability, making it an ideal choice for those looking to immigrate to Japan while maintaining a fulfilling, affordable lifestyle amidst stunning scenery and rich traditions.
AllAkiyas.com puts at your disposition thousands of Japanese real estate listings of properties available for sale or rent. Our extensive listings include detached houses, townhouses, apartments, commercial spaces, and vacant lots. We place a special focus on traditional vacant houses, known as akiya (or kominka in rural areas), and traditional townhouses, or machiya. You can easily search for properties across all of Japan's prefectures using your specific criteria.