




Add to lists:✕
Nara Prefecture, the historic heartland of Japan, offers a unique blend of cultural heritage and affordable living, making it an ideal choice for those considering relocation. Known as the birthplace of Japanese civilization, Nara is home to significant World Heritage Sites, including Todai-ji Temple, housing the Great Buddha, and the scenic Nara Park, where free-roaming deer add a touch of charm to the surroundings. This prefecture boasts a slower pace of life compared to urban areas like Tokyo or Osaka, providing a serene environment that appeals to individuals seeking tranquility while still having access to city amenities. Nara's real estate market is notably more affordable than its neighboring prefectures, with quaint traditional homes and modern residences available at reasonable prices. Buyers can typically find properties in Nara for a fraction of the cost of similar homes in more metropolitan areas, making it an attractive proposition for first-time buyers or those looking to invest in vacation rentals. Additionally, Nara’s well-connected public transport system facilitates easy access to major cities, providing a perfect balance between rural tranquility and urban convenience. The rich cultural landscape, community-focused lifestyle, and economic affordability make Nara Ken an exceptional option for anyone looking to embrace Japanese living while enjoying the country’s profound history and natural beauty. Whether you seek a cozy house surrounded by ancient temples or a charming apartment near local markets, Nara has something to offer every prospective resident.
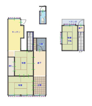
AllAkiyas.com puts at your disposition thousands of Japanese real estate listings of properties available for sale or rent. Our extensive listings include detached houses, townhouses, apartments, commercial spaces, and vacant lots. We place a special focus on traditional vacant houses, known as akiya (or kominka in rural areas), and traditional townhouses, or machiya. You can easily search for properties across all of Japan's prefectures using your specific criteria.