
Verify availabilityAdd to lists:✕

Kagawa Prefecture, located on Shikoku Island, offers a unique blend of traditional Japanese culture and picturesque landscapes, making it an appealing place for relocation. Known for its famous udon noodles, stunning coastal views, and many shrines, Kagawa boasts a slower-paced lifestyle that is ideal for those seeking tranquility. The prefecture provides numerous opportunities for outdoor activities, including hiking in the Setonaikai National Park and enjoying beautiful beaches along the Seto Inland Sea. When it comes to housing, Kagawa is generally more affordable compared to major urban centers like Tokyo or Osaka. Finding a modest home or an apartment within a reasonable budget is relatively straightforward, with average monthly rents significantly lower than those in larger cities. For instance, you might expect to pay around 40,000 to 70,000 yen ($360 to $630) for a comfortable one-bedroom apartment. In terms of quality of life, Kagawa excels with its low crime rate, excellent healthcare, and a strong sense of community. Public transportation is efficient, making it easy to navigate the region. The cost of living here is generally lower than in urban areas, allowing for a more relaxed lifestyle without the financial strain. Overall, Kagawa Ken offers a captivating lifestyle that balances modern conveniences with the charm of rural Japan, making it an excellent choice for those looking to relocate affordably while enjoying a high quality of life.
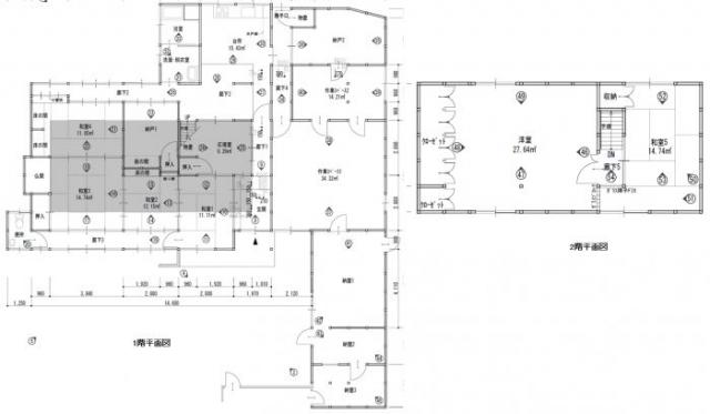
AllAkiyas.com puts at your disposition thousands of Japanese real estate listings of properties available for sale or rent. Our extensive listings include detached houses, townhouses, apartments, commercial spaces, and vacant lots. We place a special focus on traditional vacant houses, known as akiya (or kominka in rural areas), and traditional townhouses, or machiya. You can easily search for properties across all of Japan's prefectures using your specific criteria.