





Add to lists:✕
Since this property is located in an urbanization control area, depending on the intended use, it may be subject to restrictions under the City Planning Act. Please be sure to check in advance when entering into a contract transaction.本物件は市街化調整区域に存するため、利用目的によっては都市計画法上の制限を受ける場合がありますので、契約取引にあたっては必ず事前に確認を行ってください。
Land:土地面積 | 261 m² |
---|---|
Building:建物面積 | 163 m² |
Structure:構造 | Wooden木造 |
Built in:建築年 | 1977 |
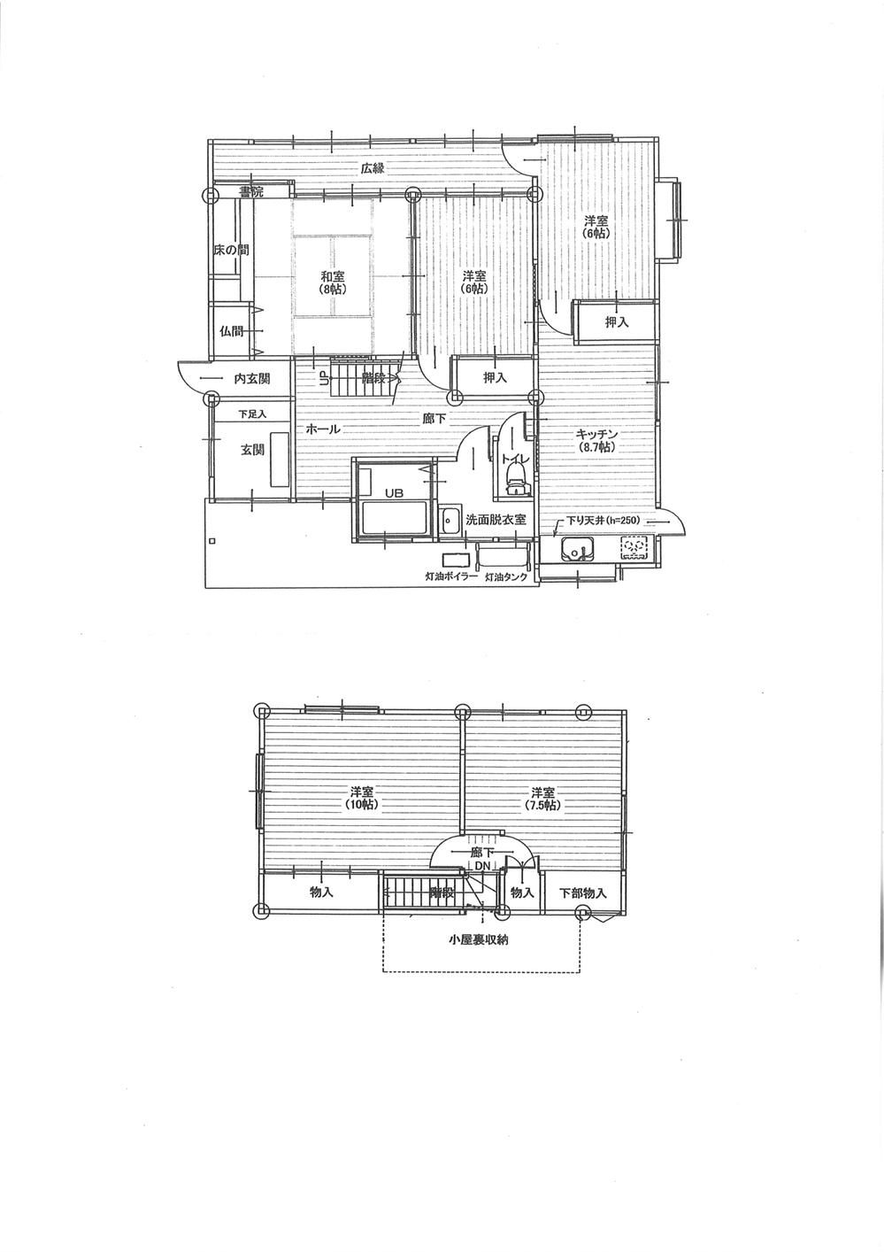
This is the house where my mother, who passed away four years ago, was born and raised. The third memorial service is over, and I have no plans to live in it in the future, so I decided to let it go. It is a house that my mother cherished and that we also had a love for when we spent our summer vacations as children. I would like to pass it on to someone who can take care of me. I would like someone who can interact with the neighborhood well. From the road along the Jinzu River, which is close to Toyama Bay and about a 5-minute walk, you can see the Tateyama mountain range on a clear day. It is about 7 km to Toyama Station, or about 16 minutes by car. The nearby supermarket is about a 10-minute drive away. The floor plan consists of a large entrance and 5 rooms on the first floor, a kitchen, a washroom, a toilet, a washing machine storage, and 4 rooms on the second floor. There is a garden planted with pines and maples. The winter garden viewed from the snow viewing screen was my mother's favorite. The pillars and beams are thick, and the snow viewing shoji and retro glass doors have a good old-fashioned Showa atmosphere, making it a comforting and comfortable place. The roof was4年前に亡くなった母が生まれ育った家です。3回忌も終わり、今後住む予定がないので、手放すことにしました。母が大切にし、私たちも子供の頃は夏休みを過ごした愛着のある家です。大切にしていただける方にお譲りしたいです。近隣と仲良く交流できる方を希望します。富山湾に近く、5分程歩いた神通川沿いの道からは、晴れていると立山連峰を望むことができます。富山駅までは約7km、車で16分ほど。近くのスーパーは車で10分程です。間取りは1階に広い玄関と5部屋、キッチン、洗面所、トイレ、洗濯機置き場、2階に4部屋。松や楓が植えられた庭があります。雪見障子から眺める冬の庭は母のお気に入りでした。柱や梁も太く、雪見障子、レトロなガラス戸などに、古き良き昭和の雰囲気があり、ほっとする居心地です。屋根は母が亡くなる前に瓦を葺き替えています。家財道具はそのままになっています。現状での不具合としては上水道が出なくなっており、修理が必用です。井戸水も引いていますが錆が混じります。下水は本下水で問題なく機能しています。水洗トイレです。ガスはプロパン。風呂は石油ボイラー。車は2~3台駐車できます。納屋があり、家庭菜園が作れる裏庭もあります。母が亡くなったあとは、叔母が風を通したり、年に数回娘ふたりが滞在したりしていました。水道を手入れすれば居住できますが、古い家ですので、古家付き土地としてお譲りします。引き渡し時期は相談させてください。民泊など営利目的は不可とさせていただきます。
Land:土地面積 | 611 m² |
---|---|
Building:建物面積 | 215 m² |
Structure:構造 | Wooden木造 |
Built in:建築年 | 2015 |
A 6LDK Japanese-style one-story house built on a spacious site! On a clear day, you can ♪ see the majestic Tateyama mountain range広々とした敷地に建つ6LDKの和風平家住宅!晴れた日には雄大な立山連峰を眺めることができます♪
Land:土地面積 | 780 m² |
---|---|
Building:建物面積 | 221 m² |
Scale:建物規模 | 1 floor above ground地上1階平屋 |
Structure:構造 | Wooden木造 |
Built in:建築年 | 1976 |
Toyama Prefecture, located on the Sea of Japan, offers a unique blend of natural beauty, cultural richness, and affordability that makes it an appealing choice for relocation. Nestled between the majestic Northern Alps and the scenic coastline, Toyama is famous for its stunning landscapes, including the breathtaking Tateyama Kurobe Alpine Route, which draws nature enthusiasts and adventurers alike. The prefecture is known for its rich cultural heritage, featuring traditional crafts such as Toyama glass and local seafood cuisine, including the renowned Toyama Bay sushi. Importantly for those considering home ownership, Toyama boasts relatively affordable real estate prices compared to urban centers like Tokyo or Osaka, providing a golden opportunity for homebuyers seeking value. The combination of low-cost housing and a high quality of life, marked by excellent healthcare, educational facilities, and a welcoming local community, ensures that residents can enjoy a tranquil yet fulfilling lifestyle. Residents also benefit from reliable public transport and a close-knit atmosphere, allowing newcomers to assimilate easily into the fabric of daily life. Additionally, the city of Toyama is an emerging hub for technology and innovation, providing job opportunities amidst peaceful surroundings. In conclusion, Toyama Prefecture stands out for its affordable housing options, access to nature, rich culture, and strong community ties, making it a wise choice for anyone looking to relocate to Japan.
AllAkiyas.com puts at your disposition thousands of Japanese real estate listings of properties available for sale or rent. Our extensive listings include detached houses, townhouses, apartments, commercial spaces, and vacant lots. We place a special focus on traditional vacant houses, known as akiya (or kominka in rural areas), and traditional townhouses, or machiya. You can easily search for properties across all of Japan's prefectures using your specific criteria.