All Akiyas
Register
Register


View in full screen
Add to or remove from my list
detached 奈良県宇陀市大宇陀関戸
detached 奈良県宇陀市大宇陀関戸
detached 奈良県宇陀市大宇陀関戸
detached 奈良県宇陀市大宇陀関戸
detached 奈良県宇陀市大宇陀関戸
detached 奈良県宇陀市大宇陀関戸
Traditional houses for sale in Uda Shi : Nara Ken

LocationUda Shi, Nara Ken奈良県宇陀市

Open in a new tab
USD $43,556
(¥6,800,000)
680 万円

"Uda City Ouda Sekido"「宇陀市大宇陀関戸」

Description

It is about a 3-minute drive from Uda City's popular tourist spot "Roadside Station Udaji Ouda". This old house property is located about a 3-minute drive from a bustling area with convenience stores, footbaths, and direct sales of fresh local vegetables. Route 370 is also dotted with cafes and old-fashioned eateries, where you can see people visiting for sightseeing and leisure. The property is on the way to Yoshino, and there is also a golf course located 1 minute away by car. It is a passage for leisure tourists heading towards Lake Tsufuro, and it is an environment where a certain amount of traffic can be expected. The building is an old house with a retro atmosphere, and there is only one parking space, but it is possible to expand the parking lot if the garden is maintained. It is located in a location that does not fall under the sediment disaster warning area. It is recommended for those who are thinking of running a café or small store that takes advantage of the retro interior in a calm environment unique to the countryside. It is also located as a villa for weekend use.宇陀市で人気の観光スポット「道の駅 宇陀路大宇陀」から車で約3分。コンビニエンスストアや足湯、新鮮な地場野菜の直売所が揃う賑やかなエリアから車で約3分に位置する古家物件です。370号線にはカフェや昔ながらの飲食店も点在し、観光やレジャーで訪れる人々の姿が見られます。
物件は吉野方面へ向かう途中にあり、車で1分の距離にはゴルフ場も立地。津風呂湖方面へ向かうレジャー客の通り道となっており、一定の交通量が見込める環境です。 建物はレトロな雰囲気の古家で、駐車スペースは1台分のみですが、庭を整備すれば駐車場を拡張することも可能。土砂災害警戒区域には該当していない立地です。
田舎ならではの落ち着いた環境の中で、レトロな室内を活かしたカフェや小規模店舗の経営をお考えの方におすすめです。また、週末の拠点として過ごす別荘利用にも適した立地となっています。

  • Info
  • Map

Nearby facilitiesNearby facilities最寄り施設

Transportation: Approximately 16 minutes by car from Kintetsu Osaka Line "Haruhara Station" (10km)交通:近鉄大阪線「榛原駅」お車で約16分(10km)

Address
Nara Prefecture Uda City Dai Uda Sekido奈良県宇陀市大宇陀関戸
(Approximate location)
Land:土地面積366 m²
Building:建物面積127 m²
Built in:建築年1947
detached 宇陀市室生大野
View in full screen
Add to or remove from my list
detached 宇陀市室生大野
detached 宇陀市室生大野
detached 宇陀市室生大野
detached 宇陀市室生大野
detached 宇陀市室生大野
detached 宇陀市室生大野
Traditional houses for sale in Uda Shi : Nara Ken

LocationUda Shi, Nara Ken奈良県宇陀市

Open in a new tab
USD $64,053
(¥10,000,000)
1000 万円
Description

A property built in Heisei 9 on a hill高台にある平成9年築の物件

  • Info
  • Map

Floor planFloor plan間取り

9LDK
1st floor: Living room 10 / Japanese 12 / Japanese 8 / Japanese 8 / Japanese 6 / Western 8 / Kitchen / Toilet / Bath Closet
2nd floor: 10 / 8 / 8 / 6
9LDK
1階:リビング10/和12/和8/和8/和6/洋8/キッチン/トイレ/風呂 納戸
2階:洋10/洋8/洋8/洋6 納戸

Address
Muro Ono, Uda City宇陀市室生大野
(Approximate location)
Land:土地面積800 m²
Building:建物面積314 m²
Structure:構造Wooden木造
Built in:建築年1997
detached 室生上笠間
View in full screen
Add to or remove from my list
detached 室生上笠間
detached 室生上笠間
detached 室生上笠間
detached 室生上笠間
detached 室生上笠間
detached 室生上笠間
detached 室生上笠間
detached 室生上笠間
detached 室生上笠間
detached 室生上笠間
Traditional houses for sale in Uda Shi : Nara Ken

LocationUda Shi, Nara Ken奈良県宇陀市

Open in a new tab
USD $31,386
(¥4,900,000)
490 万円
Description

This is a villa property surrounded by nature. (There is a management fee (30,000 yen per year) for the villa site.)自然豊かな別荘物件です。(別荘地につき管理費(年額30,000円)が発生します。)

  • Info
  • Map

Floor planFloor plan間取り

1LDK1LDK

ParkingParking駐車場

Yes有り

Address
Kasama, Muro, Uda City宇陀市室生上笠間
(Approximate location)
Land:土地面積206 m²
Building:建物面積50 m²
Scale:建物規模2 stories above ground地上2階建て
Structure:構造Wooden木造
Built in:建築年1994
detached 宇陀市菟田野古市場
View in full screen
Add to or remove from my list
detached 宇陀市菟田野古市場
detached 宇陀市菟田野古市場
detached 宇陀市菟田野古市場
detached 宇陀市菟田野古市場
detached 宇陀市菟田野古市場
detached 宇陀市菟田野古市場
Traditional houses for sale in Uda Shi : Nara Ken

LocationUda Shi, Nara Ken奈良県宇陀市

Open in a new tab
USD $51,242
(¥8,000,000)
800 万円
Description

There is a garage with an electric shutter. The interior is kept very clean.電動シャッター付ガレージあり。室内大変綺麗に使用されております。

  • Info
  • Map

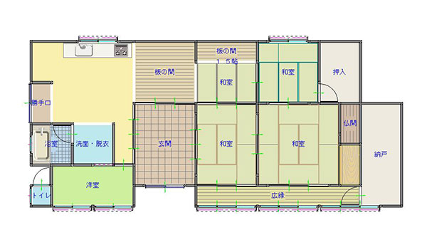
Floor planFloor plan間取り

7DK+3S
1st floor:
Japanese-style rooms (6, 6, 4.5 tatami mats), DK (10.5 tatami mats), bathroom, toilet, (dirt floor, parking space, work space 25.0 tatami mats)
2nd floor:
Japanese-style rooms (8, 8, 8, 6 tatami mats)
S (service rooms: 1st floor parking space approximately 25 tatami mats, storage space with shelves approximately 3 tatami mats, 2nd floor study space approximately 4 tatami mats)
7DK+3S
1階:
和室(6・6・4.5帖)、DK(10.5帖)、浴室、トイレ、(土間・駐車場・作業スペース 25.0帖)
2階:
和室(8・8・8・6帖)
S(サービスルームとしているものは、1階駐車場スペース約25帖、棚付き収納スペース約3帖、2階書斎スペース約4帖)としております。

Address
Uda City Udanoko Market宇陀市菟田野古市場
Land:土地面積170 m²
Building:建物面積116 m²
Structure:構造Wooden木造
Built in:建築年1941
detached 宇陀市大宇陀本郷
View in full screen
Add to or remove from my list
detached 宇陀市大宇陀本郷
detached 宇陀市大宇陀本郷
detached 宇陀市大宇陀本郷
detached 宇陀市大宇陀本郷
detached 宇陀市大宇陀本郷
detached 宇陀市大宇陀本郷
Traditional houses for sale in Uda Shi : Nara Ken

LocationUda Shi, Nara Ken奈良県宇陀市

Open in a new tab
USD $7,046
(¥1,100,000)
110 万円
Description

Property with farmland surrounded by rich nature, for those willing to carry out major renovations豊かな自然に恵まれた農地付き物件、大規模修繕意欲のある方へ

  • Info
  • Map

Floor planFloor plan間取り

8DK8DK

Address
Ouda Hongo, Uda City宇陀市大宇陀本郷
Land:土地面積251 m²
Building:建物面積154 m²
Structure:構造Two-story wooden building木造2階建て
Built in:建築年1934
detached 奈良県宇陀市菟田野駒帰 周辺情報を調べる
View in full screen
Add to or remove from my list
detached 奈良県宇陀市菟田野駒帰 周辺情報を調べる
detached 奈良県宇陀市菟田野駒帰 周辺情報を調べる
detached 奈良県宇陀市菟田野駒帰 周辺情報を調べる
detached 奈良県宇陀市菟田野駒帰 周辺情報を調べる
detached 奈良県宇陀市菟田野駒帰 周辺情報を調べる
detached 奈良県宇陀市菟田野駒帰 周辺情報を調べる
Traditional houses for sale in Uda Shi : Nara Ken

LocationUda Shi, Nara Ken奈良県宇陀市

Open in a new tab
USD $44,837
(¥7,000,000)
700 万円

「UD85 宇陀市菟田野駒帰」「UD85 宇陀市菟田野駒帰」

Description

バス停まで徒歩1分!緑が多く宅前では川が流れ 自然あふれる環境の物件バス停まで徒歩1分!緑が多く宅前では川が流れ 自然あふれる環境の物件

  • Info
  • Map

Floor planFloor plan間取り

13DK
13DK
13DK
13DK

Address
奈良県宇陀市菟田野駒帰 周辺情報を調べる奈良県宇陀市菟田野駒帰 周辺情報を調べる
(Approximate location)
Land:土地面積1583 m²
Building:建物面積335 m²
Structure:構造木造木造
Built in:建築年1965
detached 宇陀市室生下笠間
View in full screen
Add to or remove from my list
detached 宇陀市室生下笠間
detached 宇陀市室生下笠間
detached 宇陀市室生下笠間
detached 宇陀市室生下笠間
Traditional houses for sale in Uda Shi : Nara Ken

LocationUda Shi, Nara Ken奈良県宇陀市

Open in a new tab
USD $24,340
(¥3,800,000)
380 万円
  • Info
  • Map

Floor planFloor plan間取り

6K6K

Address
Shimokasama, Muro, Uda City宇陀市室生下笠間
(Approximate location)
Land:土地面積499 m²
Building:建物面積155 m²
Built in:建築年1965
detached 宇陀市室生
View in full screen
Add to or remove from my list
detached 宇陀市室生
detached 宇陀市室生
detached 宇陀市室生
detached 宇陀市室生
detached 宇陀市室生
detached 宇陀市室生
Traditional houses for sale in Uda Shi : Nara Ken

LocationUda Shi, Nara Ken奈良県宇陀市

Open in a new tab
USD $9,608
(¥1,500,000)
150 万円
Description

Would you like to live in the countryside in a traditional one-story house?古民家平屋で田舎暮らししませんか?

  • Info
  • Map

Floor planFloor plan間取り

4K
First floor:
Western 4.5/Western 4.5/Japanese 8/Japanese 6/kitchen/bathroom/toilet
4K
1階:
洋4.5/洋4.5/和8/和6/台所/風呂/トイレ

Address
Murao, Uda City宇陀市室生
(Approximate location)
Land:土地面積221 m²
Building:建物面積92 m²
Structure:構造Wooden木造
detached 宇陀市榛原下井足
View in full screen
Add to or remove from my list
detached 宇陀市榛原下井足
detached 宇陀市榛原下井足
detached 宇陀市榛原下井足
detached 宇陀市榛原下井足
detached 宇陀市榛原下井足
detached 宇陀市榛原下井足
Traditional houses for sale in Uda Shi : Nara Ken

LocationUda Shi, Nara Ken奈良県宇陀市

Open in a new tab
USD $38,432
(¥6,000,000)
600 万円
Description

A one-story house nestled in an idyllic countrysideのどかな田園にたたずむ平屋家屋

  • Info
  • Map

Floor planFloor plan間取り

8LDK
1st floor: Japanese-style room (8, 6, 6, 6 tatami mats), Western-style room (6, 6, 4 tatami mats) LDK, bath, toilet
8LDK
1階:和室(8・6・6・6帖)、洋室(6・6・4帖)LDK、風呂 トイレ

Address
Uda City, Shimoiashi宇陀市榛原下井足
(Approximate location)
Land:土地面積725 m²
Building:建物面積166 m²
Structure:構造Wooden木造
detached 宇陀市室生下田口
View in full screen
Add to or remove from my list
detached 宇陀市室生下田口
detached 宇陀市室生下田口
detached 宇陀市室生下田口
detached 宇陀市室生下田口
detached 宇陀市室生下田口
detached 宇陀市室生下田口
Traditional houses for sale in Uda Shi : Nara Ken

LocationUda Shi, Nara Ken奈良県宇陀市

Open in a new tab
USD $320,264
(¥50,000,000)
5000 万円
Description

Please consider a beautiful old house property for business use綺麗な古民家物件、事業用にもご検討ください

  • Info
  • Map

Floor planFloor plan間取り

6DK
1st floor: Western 6, Japanese 6, 6, 6, 6, 6
Away: Sum 6, 8
6DK
1階:洋6、和6・6・6・6・6
離れ:和6・8

Address
Uda City Muro Shimotaguchi宇陀市室生下田口
Land:土地面積742 m²
Building:建物面積150 m²
Structure:構造Wooden木造

All akiyas in one place

Find the perfect vacant home in Japan!

  • All of Japan's prefectures in one website
  • Detailed listings with contact information
  • Conveniently translated into your language
  • Search properties by your own criteria
  • Get our personalized alerts in your mailbox

Login  Register
Nara Ken

Settling in Nara

Nara Prefecture, the historic heartland of Japan, offers a unique blend of cultural heritage and affordable living, making it an ideal choice for those considering relocation. Known as the birthplace of Japanese civilization, Nara is home to significant World Heritage Sites, including Todai-ji Temple, housing the Great Buddha, and the scenic Nara Park, where free-roaming deer add a touch of charm to the surroundings. This prefecture boasts a slower pace of life compared to urban areas like Tokyo or Osaka, providing a serene environment that appeals to individuals seeking tranquility while still having access to city amenities. Nara's real estate market is notably more affordable than its neighboring prefectures, with quaint traditional homes and modern residences available at reasonable prices. Buyers can typically find properties in Nara for a fraction of the cost of similar homes in more metropolitan areas, making it an attractive proposition for first-time buyers or those looking to invest in vacation rentals. Additionally, Nara’s well-connected public transport system facilitates easy access to major cities, providing a perfect balance between rural tranquility and urban convenience. The rich cultural landscape, community-focused lifestyle, and economic affordability make Nara Ken an exceptional option for anyone looking to embrace Japanese living while enjoying the country’s profound history and natural beauty. Whether you seek a cozy house surrounded by ancient temples or a charming apartment near local markets, Nara has something to offer every prospective resident.


Find a property with AllAkiyas.com

AllAkiyas.com puts at your disposition thousands of Japanese real estate listings of properties available for sale or rent. Our extensive listings include detached houses, townhouses, apartments, commercial spaces, and vacant lots. We place a special focus on traditional vacant houses, known as akiya (or kominka in rural areas), and traditional townhouses, or machiya. You can easily search for properties across all of Japan's prefectures using your specific criteria.