
Verify availabilityAdd to lists:✕

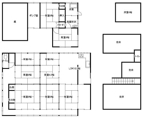
Vacant house bank [sale] 1.2 million yen Yamaguchi Prefecture Yanai City, Iriku Field, hybrid land, warehouse, warehouse, detachment, parking lot with 3 or more cars 7LDK 2-story old private house flush toilet veranda, continuous room, well, wood-burning bath available空き家バンク【売買】120万円 山口県柳井市伊陸 畑・雑種地・蔵・倉庫・離れ・駐車場3台以上つき7LDK2階建古民家 水洗トイレ 縁側・続き間・井戸・薪風呂有
| Land:土地面積 | 226 m² |
|---|---|
| Building:建物面積 | 159 m² |
| Structure:構造 | Two-story wooden structure木造2階建 |

Along the main road, with good access to the center of Yanai and Tabuse
There is an old folk house, so it is recommended to use it as a store幹線道路沿いで、柳井中心部や田布施方面にアクセス良好
古民家がありますので、店舗として利用されるのもおススメです
| Land:土地面積 | 484 m² |
|---|---|
| Building:建物面積 | 320 m² |
| Scale:建物規模 | 2 floors above ground地上2階 |
| Structure:構造 | Wooden木造 |
| Built in:建築年 | 1869 |

A property with farmland where you can live in a quiet environment. The view overlooking the city is also attractive.
Attached properties: 32 square meters of mixed land, 1293 square meters of rice fields, 93.18 square meters of storage in a detached house, warehouse.
Enjoy country life!
Properties under 1 million yen静かな環境で生活できる農地付きの物件。市街地が見下ろせる眺望も魅力です。
附帯物件:雑種地32平米、田1293平米、離れ居宅物置93.18平米、倉庫。
田舎暮らしを満喫!
100万円以下物件
| Land:土地面積 | 588 m² |
|---|---|
| Building:建物面積 | 99 m² |
| Scale:建物規模 | 1 story / -1階建 / - |
| Structure:構造 | Wooden木造 |
| Built in:建築年 | 1986 |

There are many rooms and you can enjoy a vegetable garden. This property is convenient for shopping as it is close to the city center and nursery school.
Expanded in 1955. Vacant since 2001. The farm (183 square meters) can also be sold for 6.3 million yen in the case of a lump sum. The purchase and sale of fields requires permission under Article 3 of the Agricultural Land Act.部屋数が多く菜園が楽しめます。市街地・保育園に近く買い物に便利な物件です。
昭和32年増築。平成13年から空き。畑(183平米)も売却可で、一括の場合630万円。畑の売買は、農地法第3条による許可が必要です。
| Land:土地面積 | 210 m² |
|---|---|
| Building:建物面積 | 117 m² |
| Scale:建物規模 | 1 story / -1階建 / - |
| Structure:構造 | Wooden木造 |
| Built in:建築年 | 1944 |

It is a property with farmland and mountains and forests where you can live in the countryside in a quiet environment.
Ancillary properties: 2,627 square meters of rice fields, 2,112 square meters of fields, 325 square meters of mountain forests.
Enjoy country life!
Properties with farmland静かな環境で田舎暮らしができる、農地、山林付きの物件です。
附帯物件:田2627平方メートル,畑2112平方メートル,山林325平方メートル。
田舎暮らしを満喫!
農地付き物件
| Land:土地面積 | 1031 m² |
|---|---|
| Building:建物面積 | 124 m² |
| Scale:建物規模 | 1 story / -1階建 / - |
| Structure:構造 | Wooden木造 |
| Built in:建築年 | 1947 |

Sunny and quiet environment. This property has farmland with a wonderful garden.
Enjoy country life! Life with farming
As ancillary properties, there are 5,557 square meters of rice fields, 208 square meters of fields, 144 square meters of mixed land, 2 warehouses, and agricultural machinery.日当たりのよい静かな環境。すばらしい庭がある農地付きの物件です。
田舎暮らしを満喫! 農のある暮らし
附帯物件として、田5557平米、畑208平米、雑種地等144平米、倉庫2棟、農業用機械があります。
| Land:土地面積 | 1223 m² |
|---|---|
| Building:建物面積 | 278 m² |
| Scale:建物規模 | 2-story / -2階建 / - |
| Structure:構造 | Wooden木造 |
| Built in:建築年 | 1977 |

A one-story property on a hill. It is located within walking distance of convenience stores and nursery schools.
Enjoy country life!高台にある平屋の物件。コンビニや保育園が徒歩圏内の立地です。
田舎暮らしを満喫!
| Land:土地面積 | 472 m² |
|---|---|
| Building:建物面積 | 98 m² |
| Scale:建物規模 | 1 story / -1階建 / - |
| Structure:構造 | Wooden木造 |
| Built in:建築年 | 1974 |

It is located in a quiet district surrounded by nature.
Attached property: 9162 square meters of mountain forest.
Enjoy country life!自然に囲まれた静かな地区に立地しています。
附帯物件:山林9162平方メートル。
田舎暮らしを満喫!
| Land:土地面積 | 272 m² |
|---|---|
| Building:建物面積 | 155 m² |
| Scale:建物規模 | 2-story / -2階建 / - |
| Structure:構造 | Wooden木造 |
| Built in:建築年 | 1961 |

Yamaguchi Prefecture, located on the western tip of Honshu, is a hidden gem for those considering relocating to Japan. This picturesque prefecture is known for its stunning natural landscapes, including the iconic Seto Inland Sea, lush mountains, and serene coastlines, providing a haven for outdoor enthusiasts. Unlike more populous areas like Tokyo or Osaka, Yamaguchi offers a more relaxed lifestyle with a close-knit community vibe, making it ideal for individuals or families seeking a slower, more fulfilling pace of life. The cost of living here is notably lower than in major metropolitan areas, which translates to more affordable property options. Buyers can find charming traditional homes, modern houses, and even quaint properties with rich historical backgrounds at prices that often fall within their budget. Furthermore, Yamaguchi boasts excellent transport links, including the Shinkansen (bullet train), allowing for easy access to larger cities for work or leisure, enhancing your ability to balance rural tranquility with urban convenience. Rich in cultural heritage, the region is also celebrated for its delicious local cuisine, particularly its seafood and sake. With a mix of natural beauty, historical significance, and economic viability, Yamaguchi Ken is an attractive option for those looking to invest in affordable property while enjoying a uniquely Japanese lifestyle that other prefectures may not offer.
AllAkiyas.com puts at your disposition thousands of Japanese real estate listings of properties available for sale or rent. Our extensive listings include detached houses, townhouses, apartments, commercial spaces, and vacant lots. We place a special focus on traditional vacant houses, known as akiya (or kominka in rural areas), and traditional townhouses, or machiya. You can easily search for properties across all of Japan's prefectures using your specific criteria.