





Añadir a listas:✕
Edificio de madera de una sola planta con techo de tejas. La casa quedó vacía alrededor de 2014.木造瓦葺き平屋建て。空き家になった時期は平成26年頃。
Terreno:土地面積 | 378 m² |
---|---|
Edificio:建物面積 | 108 m² |
Escala:建物規模 | Aproximadamente 108,06 metros cuadrados約108.06平方メートル |
Estructura:構造 | Techo de tejas de madera de un piso木造瓦葺き平屋建て |
Construido en:建築年 | 1967 |
Edificio de madera de una sola planta con techo de tejas. El agua potable proviene del suministro de agua comunitario, la electricidad proviene de Chugoku Electric Power, la cocina usa propano, los inodoros tienen cisterna (bombeo) y los baños pueden funcionar con queroseno o leña. Las propiedades auxiliares incluyen campos de arroz (aproximadamente 1.524 metros cuadrados) y campos (aproximadamente 1.473 metros cuadrados), así como un bosque, garaje, almacén, granero, campos y vías públicas.木造瓦葺き平屋建て。飲用水は集落水道、電気は中国電力、キッチンはプロパンガス、トイレは簡易水洗(汲み取り)、お風呂は灯油、薪のどちらでも可能。付帯物件には田(約1,524平方メートル)・畑(約1,473平方メートル)が含まれ、山林・車庫・蔵・納屋・原野・公衆用道路もあります。
Terreno:土地面積 | 92 m² |
---|---|
Edificio:建物面積 | 418 m² |
Escala:建物規模 | Aproximadamente 418,33 metros cuadrados約418.33平方メートル |
Estructura:構造 | Techo de tejas de madera de un piso木造瓦葺き平屋建て |
Construido en:建築年 | 1893 |
空き家の所在地: 安芸太田町大字上筒賀小原
用途: 住宅
構造: 木造瓦葺き平屋建て
敷地面積: 約73.55平方メートル
延べ床面積: 約192.8平方メートル
建築時期: 昭和58年
売買・賃貸の別: 売りたい(土地建物、付帯含む)
価格の希望条件: 売買価格 230万円
施設の整備状況: 飲用水 町営水道, 電気 中国電力, ガス プロパンガス, トイレ 公共下水, お風呂 電気給湯器(使用できるか不明)
付帯物件: 雑種地
その他利用条件等: 家財撤去済, 売買契約後建物登記(所有者負担)
土砂災害区域: なし空き家の所在地: 安芸太田町大字上筒賀小原
用途: 住宅
構造: 木造瓦葺き平屋建て
敷地面積: 約73.55平方メートル
延べ床面積: 約192.8平方メートル
建築時期: 昭和58年
売買・賃貸の別: 売りたい(土地建物、付帯含む)
価格の希望条件: 売買価格 230万円
施設の整備状況: 飲用水 町営水道, 電気 中国電力, ガス プロパンガス, トイレ 公共下水, お風呂 電気給湯器(使用できるか不明)
付帯物件: 雑種地
その他利用条件等: 家財撤去済, 売買契約後建物登記(所有者負担)
土砂災害区域: なし
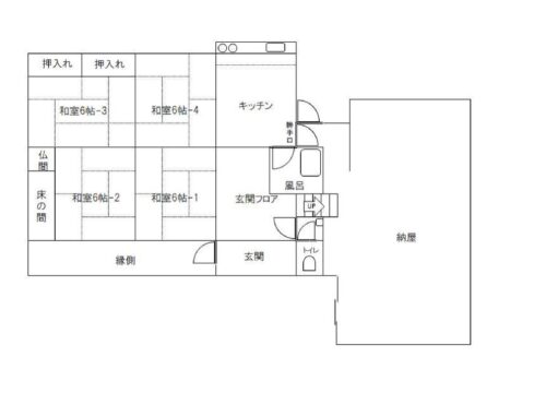
Terreno:土地面積 | 73 m² |
---|---|
Edificio:建物面積 | 192 m² |
Escala:建物規模 | 約192.8平方メートル約192.8平方メートル |
Estructura:構造 | 木造瓦葺き平屋建て木造瓦葺き平屋建て |
Construido en:建築年 | 1983 |
Todas las akiya en un solo lugar
¡Encuentre la casa vacante perfecta en Japón!
Hiroshima, conocida por su historia y su resiliencia, ofrece un estilo de vida equilibrado y dinámico. A diferencia de las grandes metrópolis como Tokio o Osaka, Hiroshima tiene un ambiente más relajado, ideal para familias que buscan una calidad de vida tranquila. La prefectura cuenta con un acceso significativo a la naturaleza, destacándose sus hermosos paisajes, como la Isla de Miyajima y el Parque Memorial de la Paz.
En términos de vivienda, encontrar opciones asequibles en Hiroshima es relativamente más fácil que en ciudades grandes. El costo medio de los alquileres es menor, lo que permite a las familias disfrutar de espacios más amplios sin el estrés financiero que implican las grandes urbes. Además, la infraestructura de transporte es excelente, facilitando el acceso al centro de la ciudad y a otras regiones.
Comparando con otras áreas, Hiroshima proporciona un balance atractivo entre costo y calidad de vida. Mientras que las ciudades más grandes ofrecen más opciones laborales y de entretenimiento, Hiroshima destaca por su ritmo de vida tranquilo y su rico patrimonio cultural. Este entorno amigable, junto con un costo de vida razonable, hace de Hiroshima una excelente opción para quienes desean mudarse a Japón.
AllAkiyas.com pone a su disposición miles de anuncios inmobiliarios japoneses de propiedades en venta o en alquiler. Nuestra vasto catálogo incluye casas unifamiliares, casas adosadas, apartamentos, locales comerciales y terrenos baldíos. Nos centramos especialmente en las casas tradicionales vacías, conocidas como akiya (o kominka en zonas rurales), y las casas adosadas tradicionales, o machiya. Puede buscar fácilmente propiedades en todas las prefecturas de Japón utilizando sus criterios específicos.