
Verifique disponibilidadAñadir a listas:✕

\ Visita inmediata disponible / 3LDK renovado
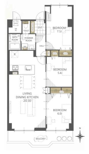
◆Sala de estar con 12 tatamis y cocina recién instalada\即日内覧OK/リフォーム済の3LDK
◆リビング12帖・対面キッチン新設
| Edificio:建物面積 | 66 m² |
|---|---|
| Area exclusiva:専有面積 | 66 m² |
| Construido en:建築年 | 1975 |

Renovación completa prevista para finalizar a principios de mayo de 2020
A 6 minutos a pie de la estación Minamiibaraki de la línea Hankyu Kyoto令和7年5月上旬全面改装完了予定
阪急京都線「南茨木」駅徒歩6分
| Edificio:建物面積 | 66 m² |
|---|---|
| Area exclusiva:専有面積 | 66 m² |
| Construido en:建築年 | 1975 |
Todas las akiya en un solo lugar
¡Encuentre la casa vacante perfecta en Japón!

La prefectura de Osaka se destaca como un destino atractivo para aquellos que desean emigrar a Japón, gracias a su vibrante estilo de vida, rica cultura y un ambiente urbano dinámico. Osaka es la segunda ciudad más grande del país, conocida por su deliciosa gastronomía, animados distritos comerciales y una oferta cultural diversa que incluye museos, teatros y festivales. En comparación con otras prefecturas como Tokio, Osaka ofrece una calidad de vida comparable, pero a menudo con un costo de vida más accesible. La asequibilidad de la vivienda en Osaka es un factor clave que la convierte en una opción preferida; los precios de los alquileres y las propiedades tienden a ser más razonables en comparación con la capital, lo que permite a las familias establecerse sin la presión financiera que a menudo se experimenta en Tokio. Además, la prefectura cuenta con excelentes redes de transporte público, facilitando el desplazamiento entre la ciudad y sus alrededores. En resumen, Osaka Fu ofrece un equilibrio atractivo entre calidad de vida, asequibilidad y acceso a servicios, convirtiéndola en una opción privilegiada para quienes buscan un nuevo hogar en Japón.
AllAkiyas.com pone a su disposición miles de anuncios inmobiliarios japoneses de propiedades en venta o en alquiler. Nuestra vasto catálogo incluye casas unifamiliares, casas adosadas, apartamentos, locales comerciales y terrenos baldíos. Nos centramos especialmente en las casas tradicionales vacías, conocidas como akiya (o kominka en zonas rurales), y las casas adosadas tradicionales, o machiya. Puede buscar fácilmente propiedades en todas las prefecturas de Japón utilizando sus criterios específicos.