





Añadir a listas:✕
■ ¡Amplia habitación de estilo japonés! ! Incluso si sus familiares y amigos vienen de visita, ¡todos podrán pasar un rato relajante! !■広々和室の続き間!!親戚やご友人が来訪されても皆でゆったり過ごせます!!
Terreno:土地面積 | 645 m² |
---|---|
Edificio:建物面積 | 190 m² |
Estructura:構造 | Edificio de madera de un piso木造1階建 |
Construido en:建築年 | 1868 |
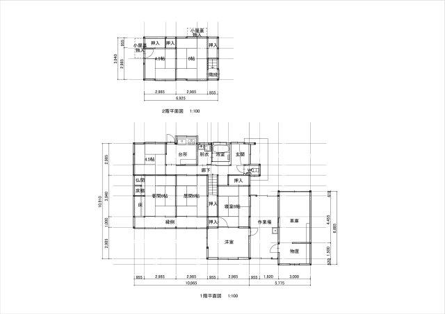
Debido a que era una casa de madera de un piso y un ex granjero de sericultura, el techo era alto y las vigas gruesas estaban expuestas, y el humo de la estufa de la cocina humeaba las vigas. Después de que dejé de criar gusanos de seda, hice un techo nuevo, por lo que las vigas están ocultas. Es una antigua casa construida en Taisho de 3 y 110 años de antigüedad, con 7 habitaciones japonesas-occidentales, una cocina, un baño, un baño y un aseo. Parece que se puede vivir tal como está, pero el piso está dañado en varios lugares y necesita ser retapizado. También hay fugas que necesitan ser reparadas. También hay rastros de termitas. La valoración del activo fijo de la superficie del terreno residencial de 380 tsubo en Reiwa 6 es de 6,175 millones de yenes, pero el edificio es una propiedad antigua con terreno, (el estado actual incluye las sobras) Me gustaría pedir el precio de venta con una exención de responsabilidad por no conformidad del contrato.木造平屋、元養蚕農家である為、天井は高く太い梁がむき出しの状態で台所の竈の煙が梁を燻しておりました。蚕をやめてから天井を新たに作りましたので梁は隠れております。築大正3年、築110年の古屋で和洋室数7室と、台所、浴室、洗面所、トイレの構成です。見た目はそのまま住めそうですが床が複数個所傷んでおり、張替の必要があります。雨漏り個所もあり修繕が必要です。また白蟻の痕跡があります。令和6年度 宅地面積380坪の固定資産評価額は617.5万円ですが、建物は土地付き築古物件、(残置物含む現状有姿、)契約不適合責任免責での売り出し価格でお願いできればと存じます。
Terreno:土地面積 | 602 m² |
---|---|
Edificio:建物面積 | 139 m² |
Estructura:構造 | Casa de madera de un piso木造平屋 |
Construido en:建築年 | 1914 |
Todas las akiya en un solo lugar
¡Encuentre la casa vacante perfecta en Japón!
La prefectura de Shimane, ubicada en la región de Chūgoku, es un destino atractivo para quienes buscan un estilo de vida más tranquilo y autentico en Japón. A menudo subestimada, Shimane destaca por su rica herencia cultural, que incluye antiguos santuarios como el Santuario Izumo Taisha, famoso por ser uno de los más importantes en la religión sintoísta. La belleza natural de la prefectura, con su costa vista panorámica hacia el mar de Japón y las montañas que la rodean, ofrece a los residentes un entorno sereno y pintoresco. En comparación con las grandes ciudades como Tokio o Osaka, el costo de vida en Shimane es considerablemente más bajo, lo que incluye precios de vivienda más accesibles. Las oportunidades de compra de casas, tanto en áreas rurales como en pequeños núcleos urbanos, son abundantes y ofrecen una buena relación calidad-precio. La comunidad es acogedora, ideal para familias que buscan un ambiente más familiar y seguro. Sin embargo, es importante considerar que, aunque Shimane ofrece una calidad de vida excepcional, las opciones de empleo pueden ser limitadas en comparación con metrópolis más grandes, por lo que es aconsejable planificar adecuadamente antes de la mudanza.
AllAkiyas.com pone a su disposición miles de anuncios inmobiliarios japoneses de propiedades en venta o en alquiler. Nuestra vasto catálogo incluye casas unifamiliares, casas adosadas, apartamentos, locales comerciales y terrenos baldíos. Nos centramos especialmente en las casas tradicionales vacías, conocidas como akiya (o kominka en zonas rurales), y las casas adosadas tradicionales, o machiya. Puede buscar fácilmente propiedades en todas las prefecturas de Japón utilizando sus criterios específicos.