
Verifique disponibilidadAñadir a listas:✕

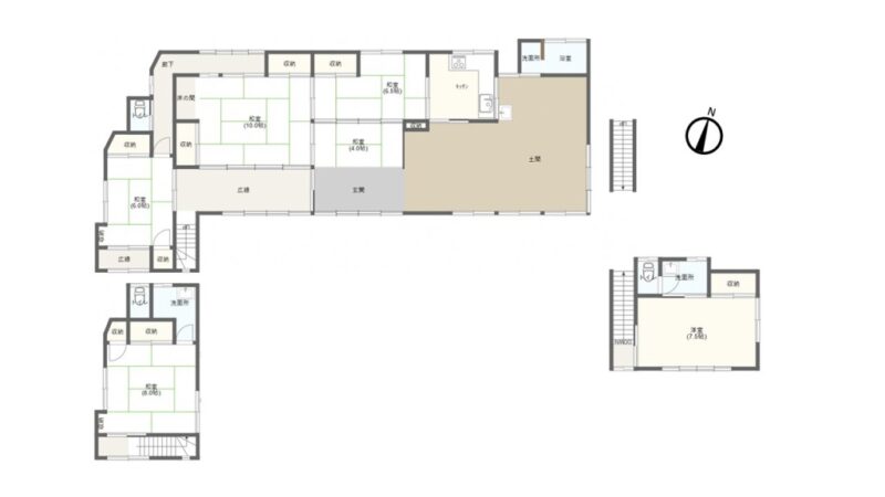
Esta casa fue construida en un terreno idílico rodeado de campos de mandarina cuando mis padres se mudaron a Izu, que tiene un clima templado y una rica naturaleza, no lejos de Tokio, y querían comenzar una pensión.この家は、私の両親が東京からあまり遠くない穏やかな気候と自然豊な伊豆に移り、ペンションを始めたいと計画をたて、地震があっても津波や崖崩れに安全な土地を探し、ミカン畑に囲まれたのどかな土地に建てました。
| Terreno:土地面積 | 571 m² |
|---|---|
| Edificio:建物面積 | 243 m² |
| Escala:建物規模 | 1er piso 243.55㎡, 2do piso 53.82㎡1階243.55㎡、2階53.82㎡ |
| Estructura:構造 | Techo de placa de cobre chapado en aleación de madera Edifi木造合金メッキ銅板葺2階建 |
| Construido en:建築年 | 1971 |

Casa banco vacante [venta] 5,8 millones de yenes Prefectura de Shizuoka Kamo-gun Kawazu Raft Yard Heisei 19 años No se requiere reparación Edificio de madera RC de 3LDK de 2 pisos con balcón, garaje, 4 estacionamientos, taller, sala de AV Inodoro con cisterna空き家バンク【売買】580万円 静岡県賀茂郡河津町川津筏場 平成19年築 補修不要 バルコニー・ガレージ・駐車場4台・作業場・AVルーム付き3LDK木造RC2階建 水洗トイレ
| Terreno:土地面積 | 398 m² |
|---|---|
| Edificio:建物面積 | 84 m² |
| Estructura:構造 | Estructura de madera, edificio RC de 2 pisos.木造, RC2階建 |

Casa vacante banco [venta] 3,8 millones de yenes Prefectura de Shizuoka Campo minero Kamo-gun Kawazu-cho, edificio anexo de 2 pisos, casa compacta de un piso 3DK con estacionamiento Se pueden atraer aguas termales con inodoro空き家バンク【売買】380万円 静岡県賀茂郡河津町峰 田畑・別棟2階建・駐車場付き3DKコンパクト平屋 水洗トイレ 温泉引込可
| Terreno:土地面積 | 254 m² |
|---|---|
| Edificio:建物面積 | 90 m² |
| Estructura:構造 | Casa de madera de un piso木造平屋 |
Todas las akiya en un solo lugar
¡Encuentre la casa vacante perfecta en Japón!

La prefectura de Shizuoka, ubicada entre Tokio y Nagoya, ofrece un estilo de vida atractivo para quienes buscan un equilibrio entre la vida urbana y la naturaleza. Conocida por su hermoso paisaje, que incluye el Monte Fuji y numerosas playas, Shizuoka brinda oportunidades para disfrutar de actividades al aire libre. Las ciudades principales, como Shizuoka y Hamamatsu, ofrecen una buena infraestructura, acceso a servicios de salud, educación y transporte.
En cuanto a la vivienda, Shizuoka presenta opciones más asequibles comparadas con las grandes metrópolis como Tokio y Osaka. Los precios de alquiler y compra de propiedades son generalmente más bajos, lo que resulta favorable para las familias. Sin embargo, la disponibilidad puede ser limitada en algunas áreas, por lo que es recomendable comenzar la búsqueda con anticipación.
En términos de calidad de vida, Shizuoka se destaca por su ambiente relajado, la amabilidad de sus habitantes y una rica cultura, además de un costo de vida más bajo. Esto la convierte en una opción ideal para familias en busca de un estilo de vida equilibrado, sin renunciar a la accesibilidad y la comodidad de las ciudades japonesas.
AllAkiyas.com pone a su disposición miles de anuncios inmobiliarios japoneses de propiedades en venta o en alquiler. Nuestra vasto catálogo incluye casas unifamiliares, casas adosadas, apartamentos, locales comerciales y terrenos baldíos. Nos centramos especialmente en las casas tradicionales vacías, conocidas como akiya (o kominka en zonas rurales), y las casas adosadas tradicionales, o machiya. Puede buscar fácilmente propiedades en todas las prefecturas de Japón utilizando sus criterios específicos.