





Añadir a listas:✕
Es una propiedad adosada certificada por Komatsu Machiya. Hay una cervecería
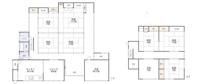
El atrio, el almacén, las vigas, la sala de estilo japonés y la terraza tienen un buen ambiente. El interior y la plomería han sido renovados para adaptarse a las formas modernas de vida. También hay una abertura en la parte trasera, para que puedas entrar y salir tanto por la parte delantera como por la trasera.こまつ町家認定の町家物件です。蔵あり
吹き抜け、蔵、梁、和室や縁側の趣きは良い雰囲気です 。内装や水回りはリフォームされており、現代の住まい方にも対応しております。裏勝手 口もあって、正面・裏どちらも出入り可能です。
Terreno:土地面積 | 203 m² |
---|---|
Edificio:建物面積 | 150 m² |
Escala:建物規模 | 2 plantas sobre rasante地上2階 |
Estructura:構造 | De madera木造 |
Construido en:建築年 | 1930 |
Todas las akiya en un solo lugar
¡Encuentre la casa vacante perfecta en Japón!
La prefectura de Ishikawa, ubicada en la región de Hokuriku en Japón, ofrece un estilo de vida atractivo para aquellos que consideran emigrar. Conocida por su rica historia cultural, Ishikawa alberga la famosa ciudad de Kanazawa, que combina la modernidad con tradiciones ancestrales. La calidad de vida aquí es alta, con un entorno natural impresionante, incluyendo montañas y la costa del Mar de Japón, lo que permite disfrutar de actividades al aire libre durante todo el año. En comparación con otras prefecturas más urbanizadas, como Tokio o Osaka, Ishikawa presenta un ambiente más tranquilo y menos congestionado, lo que la convierte en una opción atractiva para familias que buscan un equilibrio entre la vida urbana y rural. En términos de vivienda, Ishikawa es notablemente más asequible en comparación con las grandes ciudades. Los precios de las propiedades y alquileres son considerablemente más bajos, permitiendo a las familias disfrutar de viviendas más espaciosas y accesibles. Esta combinación de calidad de vida, rica herencia cultural y precios de vivienda razonables hace de Ishikawa un destino ideal para quienes buscan establecerse en Japón, especialmente para aquellos que valoran un entorno familiar y educativo acogedor.
AllAkiyas.com pone a su disposición miles de anuncios inmobiliarios japoneses de propiedades en venta o en alquiler. Nuestra vasto catálogo incluye casas unifamiliares, casas adosadas, apartamentos, locales comerciales y terrenos baldíos. Nos centramos especialmente en las casas tradicionales vacías, conocidas como akiya (o kominka en zonas rurales), y las casas adosadas tradicionales, o machiya. Puede buscar fácilmente propiedades en todas las prefecturas de Japón utilizando sus criterios específicos.