
Verifique disponibilidadAñadir a listas:✕

Hay almacenes y cobertizos no registrados, y hay restos dentro y fuera del edificio.
Se entregará tal cual y no se especificará el límite.
Para obtener más información, póngase en contacto directamente con los siguientes miembros del banco de casas vacantes. Por favor, informe a la persona encargada de "Mire el banco de la casa vacante".
Nombre de empresa: Maple Housing Co., Ltd.
Dirección 郡山市大槻町字太田北5-1
Tel: 024-973-7605
Vacaciones ordinarias Vacaciones irregulares緑の原風景に囲まれた田舎暮らしに適した物件です。市街地へのアクセスも良く人も暖かく、程よい里山でホタル里としても知られ、野菜等の自給を楽しみたい方、暑さを避けたい方に最適です。随時ご案内いたします。
詳細は、下記の空家バンク会員に直接お尋ねください。「空家バンクを見て」と担当者にお知らせください。
商号 メイプルハウジング株式会社
住所 郡山市大槻町字太田北5-1
電話 024-973-7605
定休日 不定休
| Terreno:土地面積 | 5381 m² |
|---|---|
| Edificio:建物面積 | 200 m² |
| Estructura:構造 | Edificio de madera de dos pisos木造2階建 |
| Construido en:建築年 | 1998 |

Vida conveniente, transporte conveniente, buen ambiente.
Muy cerca del área de rezonificación de Yayamada. Aunque es una zona de control de urbanización, existen edificios anteriores a la Ley de Urbanismo y es posible reconstruirlos con certificación según el artículo 60 del Reglamento de Aplicación de la Ley de Urbanismo. Se aplican condiciones, así que contáctenos para obtener más detalles.
Para consultas, comuníquese con los miembros de nuestro banco a continuación.
Información del amigo del sol Co., Ltd.
2-39 Nakano, ciudad de Koriyama TEL 024-952-7794生活便利 交通便利 環境良好
八山田区画整理区域のすぐ近く。市街化調整区域ですが都市計画法以前の建物が建っており都市計画法施行規制第60条証明により建て替えが可能です。条件がありますので詳細はお問い合わせ下さい。
お問い合わせは下記の当バンク会員の
株式会社サン・フレンド情報
郡山市中野2丁目39 TEL 024-952-7794 まで
| Terreno:土地面積 | 325 m² |
|---|---|
| Edificio:建物面積 | 64 m² |
| Estructura:構造 | Casa de madera de un piso木造平屋建て |
| Construido en:建築年 | 1943 |

Esta es una casa de campo.
Para obtener más información, comuníquese directamente con los miembros del NPO Kooriyama Vacant House Bank que aparecen a continuación.
Nombre comercial: A Thomas Home Co., Ltd. (transacción exclusiva exclusiva)
Thomas Home Co., Ltd.
Dirección: 213-1 Kaisei 6-chome, ciudad de Koriyama
Teléfono: 024 (931) 5705農家住宅です。
詳細は、下記のNPO法人こおりやま空家バンク会員に直接お問合せください。
商号:(株)トーマスホームへ(専属専任取引)
株式会社トーマスホーム
住所:郡山市開成6丁目213番1
電話:024(931)5705
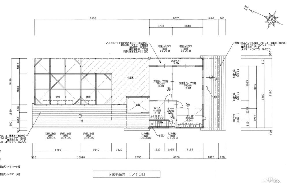
| Terreno:土地面積 | 5007 m² |
|---|---|
| Edificio:建物面積 | 405 m² |
| Estructura:構造 | Edificio de madera de dos pisos木造2階建て |
| Construido en:建築年 | 1928 |

El mapa de peligro de inundaciones supone inundaciones en áreas de 0,5 ma menos de 3,0 m, pero durante el tifón de 2019, no hubo inundaciones sobre el suelo. (Encuesta entre vecinos) El edificio existente fue construido recientemente en 1960 y ampliado en diciembre de 1971. Durante la reconstrucción, será necesario retroceder ambas carreteras en los lados norte y este y cortar la esquina noreste, lo que resultará en una reducción de aproximadamente 30 metros cuadrados.
Para obtener más información, comuníquese directamente con los miembros del NPO Kooriyama Vacant House Bank que aparecen a continuación.
Miembro del banco de vivienda vacante: Endou Real Estate Co., Ltd. Gobernador de la prefectura de Fukushima (1) No. 3525
Dirección: 3-189-2 Hideyama, Asaka-cho, ciudad de Koriyama
☎:024-973-7987洪水ハザードマップ浸水想定は0.5m~3.0m未満の区域ですが、令和元年の台風時には床上浸水になりませんでした。(近隣聞き取り調査)既存建物は昭和34年に新築し、昭和46年12月に増築しています。再建築時には北側、東側いずれの道路もセットバック、北東角の隅切りが必要で30平方メートル程度減少することになります。
詳細は、下記のNPO法人こおりやま空家バンク会員に直接お問合せください。
空き家バンク会員:えんどう不動産株式会社 福島県知事(1)第3525号
住所:郡山市安積町日出山3丁目189-2
☎:024-973-7987
| Terreno:土地面積 | 179 m² |
|---|---|
| Edificio:建物面積 | 85 m² |
| Area exclusiva:専有面積 | 85 m² |
| Estructura:構造 | Heike de madera木造 平家 |
| Construido en:建築年 | 1959 |

Es una casa grande vacía.
Comuníquese con los miembros de nuestro banco para realizar visitas y obtener más detalles.
Nombre de la empresa: Tokai Home Co., Ltd.
Dirección: 1-21-12 Kuwano, ciudad de Koriyama
Teléfono: 024-939-4788大きな間取りの空家です。
内見や詳細に関しては当バンク会員までお問合せください。
商号 東海ホーム株式会社
住所 郡山市桑野1-21-12
電話 024-939-4788
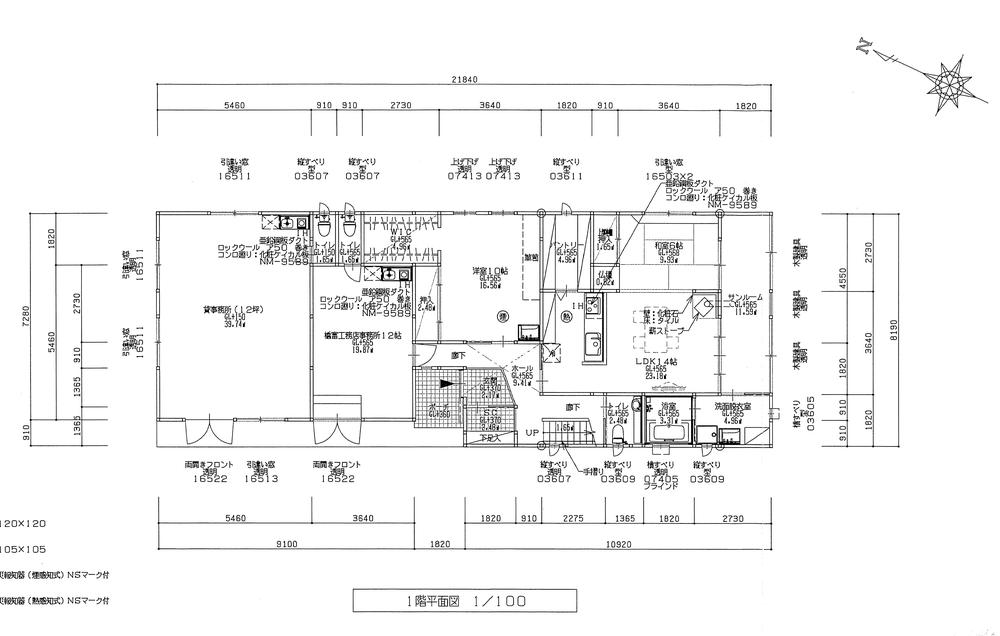
| Terreno:土地面積 | 320 m² |
|---|---|
| Edificio:建物面積 | 155 m² |
| Estructura:構造 | Edificio de madera de dos pisos木造2階建て |
| Construido en:建築年 | 1969 |

Aunque la zona circundante está llena de instalaciones comerciales y restaurantes, esta propiedad se encuentra en una zona residencial tranquila y tranquila, justo al lado de la carretera principal.周辺は商業施設や飲食店も充実していながら、幹線道路から一本入った落ち着きのある閑静な住宅街に本物件はあります。
| Terreno:土地面積 | 364 m² |
|---|---|
| Edificio:建物面積 | 157 m² |
| Estructura:構造 | De madera木造 |
| Construido en:建築年 | 1984 |
Todas las akiya en un solo lugar
¡Encuentre la casa vacante perfecta en Japón!

Fukushima, ubicada en la región de Tōhoku, ofrece un estilo de vida que combina la tranquilidad del campo con la cercanía a la naturaleza. Con paisajes montañosos y hermosos santuarios, es ideal para quienes buscan un entorno más relajado. La prefectura ha hecho grandes esfuerzos por recuperarse de los eventos de 2011, fomentando un ambiente seguro y acogedor.
En términos de vivienda, Fukushima suele ofrecer costos más asequibles en comparación con ciudades grandes, como Tokio o Osaka. Aquí, es posible encontrar apartamentos y casas a precios razonables, lo que permite a las familias disfrutar de más espacio y calidad de vida. Sin embargo, el acceso a ciertos servicios y comodidades podría ser limitado en áreas rurales, aunque las ciudades principales, como la ciudad de Fukushima, cuentan con buena infraestructura.
La calidad de vida en Fukushima es alta, con un entorno natural limpio, menos congestionamiento y una comunidad unida. Mientras que el costo de vida es generalmente más bajo que en las grandes metrópolis, es importante considerar las oportunidades laborales, que pueden ser menos diversas en áreas rurales. En resumen, Fukushima es una buena opción para familias que valoran la paz y la naturaleza sin sacrificar completamente las comodidades urbanas.
AllAkiyas.com pone a su disposición miles de anuncios inmobiliarios japoneses de propiedades en venta o en alquiler. Nuestra vasto catálogo incluye casas unifamiliares, casas adosadas, apartamentos, locales comerciales y terrenos baldíos. Nos centramos especialmente en las casas tradicionales vacías, conocidas como akiya (o kominka en zonas rurales), y las casas adosadas tradicionales, o machiya. Puede buscar fácilmente propiedades en todas las prefecturas de Japón utilizando sus criterios específicos.