
Verifique disponibilidadAñadir a listas:✕

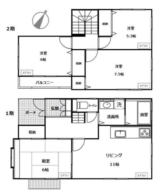
Propiedad de subasta (puja de época). Precio de venta 6.150.000 yenes. Periodo de subasta del 19 al 26 de noviembre de 2025. Superficie total 147,39 m², superficie de terreno 370,24 m², planta 5LDK + granero. Área de uso: Zona residencial de Clase 1. Fecha de construcción: septiembre de 1997. Edificio anexo: almacén (casa de pisos de tablones de vinilo de madera no registrada, estado actual de unos 5 m²).競売(期間入札)物件。売却価額 6,150,000円。入札期間 2025年11月19日〜11月26日。延床面積 147.39m²、土地面積 370.24m²、間取り 5LDK+納戸。用途地域:第一種住居地域。築年月:平成9年9月(1997年)。附属建物:物置(未登記、木造ビニール板ぶき平家建、現況約5m²)。
| Terreno:土地面積 | 370 m² |
|---|---|
| Edificio:建物面積 | 147 m² |
| Escala:建物規模 | 2 historias2階建 |
| Estructura:構造 | Edificio de madera de dos pisos con techo de tejas木造瓦葺2階建 |
| Construido en:建築年 | 1997 |

[Información viva alrededor de la propiedad]
・Escuela
Escuela Primaria Toyomi (2.000 m), Escuela Secundaria Kujukuri (4.500 m)
Family Mart 280 m, Playa Fudodo 350 m, Escuela Primaria Toyomi 2000 m, Landloam 3500 m, Escuela Secundaria Kujukuri 4500 m
Notificación de la Ley de Tierras: No Requerido【物件周辺の生活情報】
・学校
豊海小学校(2,000m)、九十九里中学校(4,500m)
ファミリーマート280m、不動堂海水浴場350m、豊海小学校2000m、ランドローム3500m、九十九里中学校4500m
国土法届出:不要
| Terreno:土地面積 | 290 m² |
|---|---|
| Edificio:建物面積 | 107 m² |
| Escala:建物規模 | Edificio de madera de 2 pisos木造2階建 |
| Estructura:構造 | De madera木造 |
| Construido en:建築年 | 2008 |

Asa casa contenedor como segunda casa ◎ ¡Es posible una plaza de aparcamiento de 3 o más a 4 minutos en coche de la playa! Almacenamiento amueblado 2LDK 3 aires acondicionados 3 cámaras de seguridad築浅コンテナハウス セカンドハウスに◎ 駐車3台以上可 海水浴場まで車4分!2LDK 家具付 物置有 エアコン3台 防犯カメラ3台
| Terreno:土地面積 | 357 m² |
|---|---|
| Edificio:建物面積 | 59 m² |
| Escala:建物規模 | 1 piso sobre rasante地上1階平屋 |
| Estructura:構造 | RCRC |
| Construido en:建築年 | 2024 |

El revestimiento de la pared exterior, el techo y el balcón están en buenas condiciones mediante pintura impermeable.外壁サイディング・屋根・バルコニーの防水塗装を実施して綺麗な状態です。
| Terreno:土地面積 | 164 m² |
|---|---|
| Edificio:建物面積 | 86 m² |
| Escala:建物規模 | 2 plantas sobre rasante地上2階 |
| Estructura:構造 | De madera木造 |
| Construido en:建築年 | 1998 |

◇◆Playa de Katakai Casa RC de 1 km con un amplio jardín cerca del mar◆◇ Entorno natural adecuado para la base de un resort marino Casa RC construida por Taisei Construction 2do piso 16 colchonetas LDK con balcón en el techo para 2 plazas de aparcamiento Amplio jardín en el lado sureste◇◆片貝海水浴場1km 海近のゆとりの庭付RC造住宅◆◇ マリンリゾートの基地に適した自然環境 大成建設施工のRC造住宅 2階16帖LDK ルーフバルコニー付 駐車場2台分 東南側に広々した庭
| Terreno:土地面積 | 378 m² |
|---|---|
| Edificio:建物面積 | 73 m² |
| Escala:建物規模 | 2 plantas sobre rasante地上2階 |
| Estructura:構造 | RCRC |
| Construido en:建築年 | 2003 |
Todas las akiya en un solo lugar
¡Encuentre la casa vacante perfecta en Japón!

La prefectura de Chiba es una excelente opción para quienes buscan mudarse a Japón, especialmente para familias que valoran un equilibrio entre la vida urbana y la tranquilidad suburbana. Situada justo al este de Tokio, Chiba ofrece un fácil acceso a la capital, con múltiples opciones de transporte público, incluyendo trenes que conectan a las principales estaciones de Tokio en aproximadamente 30 minutos. Esto la convierte en una opción ideal para quienes trabajan en la ciudad pero prefieren vivir en un entorno más relajado y menos congestionado. Además, Chiba es conocida por sus espacios naturales, como las playas de la costa de Boso y el Parque Nacional de Narita, ofreciendo oportunidades recreativas al aire libre que son menos comunes en áreas metropolitanas densas. En cuanto a la vivienda, Chiba tiene una amplia variedad de opciones asequibles en comparación con las tarifas más elevadas que se encuentran en Tokio; muchas áreas ofrecen casas unifamiliares y apartamentos a precios razonables. Esto la convierte en una opción atractiva para las familias que buscan asentarse y construir un nidito sin comprometer su presupuesto. Así, Chiba combina accesibilidad, calidad de vida y entorno natural, posicionándose como un lugar destacado para establecerse en Japón.
AllAkiyas.com pone a su disposición miles de anuncios inmobiliarios japoneses de propiedades en venta o en alquiler. Nuestra vasto catálogo incluye casas unifamiliares, casas adosadas, apartamentos, locales comerciales y terrenos baldíos. Nos centramos especialmente en las casas tradicionales vacías, conocidas como akiya (o kominka en zonas rurales), y las casas adosadas tradicionales, o machiya. Puede buscar fácilmente propiedades en todas las prefecturas de Japón utilizando sus criterios específicos.