
Verifique disponibilidadAñadir a listas:✕

Está muy limpio porque es cuidadosamente reparado y administrado por el propietario ancestral. El estacionamiento está bajo contrato con un estacionamiento cercano. Además de las tierras objetivo, se transfirieron gratuitamente un total de 33 lotes de 27.058 tsubo (89.448 metros cuadrados) de bosques de montaña. Sin embargo, los límites no son explícitos.先祖代々のオーナー様が丁寧に修理、管理していますので大変綺麗です。駐車場は近隣の駐車場契約中。対象地のほかに山林27058坪(89448㎡)計33筆を無償譲渡。但し、境界非明示。
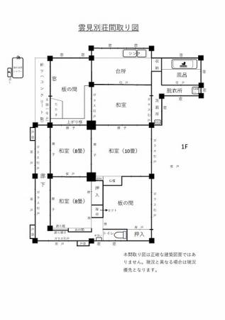
| Terreno:土地面積 | 651 m² |
|---|---|
| Edificio:建物面積 | 125 m² |
| Estructura:構造 | De madera木造 |
| Construido en:建築年 | 1903 |

Se encuentra en el distrito de Kosugihara, a unos 11 minutos en coche desde el centro de la ciudad (alrededor del ayuntamiento) hacia Shimoda. Esta zona está a aproximadamente 30 minutos en coche desde la estación Izukyu Shimoda, lo que la hace conveniente para viajar a la ciudad de Shimoda. Como esta propiedad requiere reparaciones extensas, comuníquese directamente con el agente de bienes raíces para obtener más detalles utilizando el formulario de consulta de propiedad al final de esta página.町の中心部(町役場辺り)から下田方面へ車で約11分の小杉原地区にあります。この地区は、伊豆急下田駅まで車で約30分程度の場所にあるため、下田市への通勤にも便利です。大幅な補修が必要な物件ですので、詳細は本ページ下部の物件問合せフォームより直接不動産業者へご連絡ください。
| Terreno:土地面積 | 317 m² |
|---|---|
| Edificio:建物面積 | 151 m² |
| Estructura:構造 | Edificio de madera de 2 pisos, techo de tejas.木造2階建て・瓦葺き |
Todas las akiya en un solo lugar
¡Encuentre la casa vacante perfecta en Japón!

La prefectura de Shizuoka, ubicada entre Tokio y Nagoya, ofrece un estilo de vida atractivo para quienes buscan un equilibrio entre la vida urbana y la naturaleza. Conocida por su hermoso paisaje, que incluye el Monte Fuji y numerosas playas, Shizuoka brinda oportunidades para disfrutar de actividades al aire libre. Las ciudades principales, como Shizuoka y Hamamatsu, ofrecen una buena infraestructura, acceso a servicios de salud, educación y transporte.
En cuanto a la vivienda, Shizuoka presenta opciones más asequibles comparadas con las grandes metrópolis como Tokio y Osaka. Los precios de alquiler y compra de propiedades son generalmente más bajos, lo que resulta favorable para las familias. Sin embargo, la disponibilidad puede ser limitada en algunas áreas, por lo que es recomendable comenzar la búsqueda con anticipación.
En términos de calidad de vida, Shizuoka se destaca por su ambiente relajado, la amabilidad de sus habitantes y una rica cultura, además de un costo de vida más bajo. Esto la convierte en una opción ideal para familias en busca de un estilo de vida equilibrado, sin renunciar a la accesibilidad y la comodidad de las ciudades japonesas.
AllAkiyas.com pone a su disposición miles de anuncios inmobiliarios japoneses de propiedades en venta o en alquiler. Nuestra vasto catálogo incluye casas unifamiliares, casas adosadas, apartamentos, locales comerciales y terrenos baldíos. Nos centramos especialmente en las casas tradicionales vacías, conocidas como akiya (o kominka en zonas rurales), y las casas adosadas tradicionales, o machiya. Puede buscar fácilmente propiedades en todas las prefecturas de Japón utilizando sus criterios específicos.