
Verifique disponibilidadAñadir a listas:✕

Propiedad de subasta (residencia). La superficie total es de 133,06 m² y la superficie de terreno es de 329,99 m². Fecha de construcción: 3 de octubre, Reiwa (2021). Periodo de subasta: 18 - 25 de noviembre de 2025. Precio de venta: 12.355.000 yenes (oferta, número de postores 1, fecha de apertura de puja: 27 de noviembre de 2025).競売物件(居宅)。延床面積133.06m²、土地面積329.99m²。築年月:令和3年10月(2021年)。入札期間:2025年11月18日〜11月25日。売却価額:12,355,000円(売却、入札者数1人、開札日2025年11月27日)。
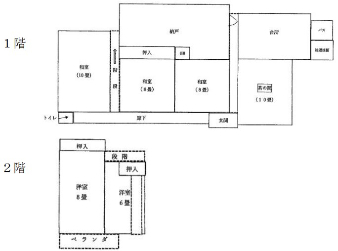
| Terreno:土地面積 | 330 m² |
|---|---|
| Edificio:建物面積 | 133 m² |
| Escala:建物規模 | 2 historias2階建 |
| Estructura:構造 | Cubierta plana de hormigón armado鉄筋コンクリート造陸屋根 |
| Construido en:建築年 | 2021 |
Todas las akiya en un solo lugar
¡Encuentre la casa vacante perfecta en Japón!

La prefectura de Miyagi, ubicada en la región de Tōhoku, ofrece un estilo de vida encantador y accesible que la convierte en una opción atractiva para familias que desean emigrar a Japón. Con su capital, Sendai, conocida como la "Ciudad de los Árboles", cuenta con una mezcla de modernidad y naturaleza, donde la vida urbana se entrelaza con espacios verdes y parques extensos. A diferencia de las áreas metropolitanas más congestionadas como Tokio o Osaka, Miyagi ofrece una calidad de vida más tranquila y asequible. La vivienda en esta prefectura suele ser menos costosa, con precios que rondan entre un 30% y un 50% más bajos que en las grandes ciudades, permitiendo a las familias obtener más espacio y comodidad por su dinero. Además, Miyagi es conocida por su rica cultura, festivales vibrantes y una gastronomía excepcional, lo que proporciona una experiencia cultural enriquecedora. La población local es acogedora, y el entorno comunitario es fuerte, lo que ayuda a los inmigrantes a adaptarse rápidamente. En resumen, Miyagi combina una infraestructura moderna con una atmósfera relajada y un costo de vida razonable, posicionándose como una opción excelente para quienes deseen establecerse en Japón.
AllAkiyas.com pone a su disposición miles de anuncios inmobiliarios japoneses de propiedades en venta o en alquiler. Nuestra vasto catálogo incluye casas unifamiliares, casas adosadas, apartamentos, locales comerciales y terrenos baldíos. Nos centramos especialmente en las casas tradicionales vacías, conocidas como akiya (o kominka en zonas rurales), y las casas adosadas tradicionales, o machiya. Puede buscar fácilmente propiedades en todas las prefecturas de Japón utilizando sus criterios específicos.