
Verifique disponibilidadAñadir a listas:✕

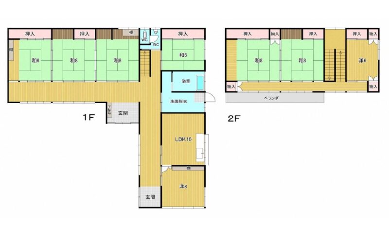
Vivienda vacía banco [venta de caballos] 500.000 yenes Prefectura de Akita Yamamoto-gun Miyoshi-cho Mori Gakuji Kaido Este Gran terreno 8LDK edificio de 2 plantas con jardín, veranda, almacén y aparcamiento空き家バンク【売買】50万円 秋田県山本郡三種町森岳字街道東 広い敷地 庭・ベランダ・物置・駐車場付き8LDK2階建
| Terreno:土地面積 | 1272 m² |
|---|---|
| Edificio:建物面積 | 161 m² |
| Estructura:構造 | Estructura de madera de dos pisos木造2階建 |

Casa vacía banco [venta] 500.000 yenes Prefectura de Akita Yamamoto-gun Ciudad de Miyoshi Shikatojiji Detrás de 8SDK 2do piso antigua casa privada con jardín, trastero, cobertizo de nieve y garaje 2 ~ 3 autos空き家バンク【売買】50万円 秋田県山本郡三種町鹿渡字寺後 庭・物置・雪捨場・車庫2~3台付き8SDK2階建古民家
| Terreno:土地面積 | 934 m² |
|---|---|
| Edificio:建物面積 | Por favor pregunte |
| Estructura:構造 | Estructura de madera de dos pisos木造2階建 |

Casa vacía banco [venta de caballos] 500.000 yenes Prefectura de Akita Yamamoto-gun Miyoshi-cho Shimoiwakawa carácter largo de cara larga 7DK edificio de 2 plantas con jardín, veranda, cobertizo para nieve, aparcamiento 2~3 coches Suministro de agua y alcantarillado空き家バンク【売買】50万円 秋田県山本郡三種町下岩川字長面 庭・ベランダ・雪捨場・駐車場2~3台付き7DK2階建 上下水道
| Terreno:土地面積 | 354 m² |
|---|---|
| Edificio:建物面積 | 130 m² |

Casa vacía banco [venta] 500.000 yenes Prefectura de Akita Yamamoto-gun Miyoshi-cho Shikato personaje Estación de Aisono a poca distancia 9DK Edificio de 2 pisos con garaje Suministro de agua y alcantarillado空き家バンク【売買】50万円 秋田県山本郡三種町鹿渡字相染野 駅徒歩圏内 車庫付き9DK2階建 上下水道
| Terreno:土地面積 | 176 m² |
|---|---|
| Edificio:建物面積 | 84 m² |
| Estructura:構造 | Estructura de madera de dos pisos木造2階建 |
Todas las akiya en un solo lugar
¡Encuentre la casa vacante perfecta en Japón!

Mudarse a la prefectura de Akita ofrece una experiencia de vida única, caracterizada por un ambiente rural tranquilo rodeado de naturaleza. Akita es conocida por sus paisajes hermosos, incluyendo montañas y lagos, lo que permite disfrutar de actividades al aire libre como senderismo y esquí. La cultura local es rica en festividades y tradiciones, destacando eventos como el famoso Festival Kanto.
En términos de vivienda, Akita se presenta como una opción más asequible en comparación con las grandes ciudades, como Tokio o Osaka. Aunque la disponibilidad de viviendas puede variar, generalmente se pueden encontrar apartamentos y casas a precios razonables, especialmente en áreas más rurales.
En cuanto a calidad de vida, Akita cuenta con comunidades unidas y un ritmo de vida más relajado. Sin embargo, el acceso a servicios culturales y de entretenimiento puede ser limitado en comparación con las grandes urbes. A pesar de esto, muchos residentes valoran la tranquilidad y la calidad del aire que se disfruta en Akita. En resumen, es una excelente opción para quienes buscan un estilo de vida más tranquilo y asequible en Japón.
AllAkiyas.com pone a su disposición miles de anuncios inmobiliarios japoneses de propiedades en venta o en alquiler. Nuestra vasto catálogo incluye casas unifamiliares, casas adosadas, apartamentos, locales comerciales y terrenos baldíos. Nos centramos especialmente en las casas tradicionales vacías, conocidas como akiya (o kominka en zonas rurales), y las casas adosadas tradicionales, o machiya. Puede buscar fácilmente propiedades en todas las prefecturas de Japón utilizando sus criterios específicos.