Verifique disponibilidadAñadir a listas:✕

Es una casa grande de estilo japonés (12 DK) con vigas y pilares gruesos. Está convenientemente ubicado cerca de la estación y del intercambiador. El terreno incluye 226 m2 de campos (distribuidos en tres ubicaciones), 1.633 m2 de áreas silvestres y 3.302 m2 de bosque de conservación. Se necesitan reparaciones importantes en el baño, inodoro, cocina, pisos, ventanas, etc. Se puede conectar al sistema de alcantarillado público (se requiere una tarifa de 375.000 yenes más los costes de construcción). Esta en el pueblo.太い梁や柱を使用した大きな和風住宅(12DK)です。駅やインターに近く生活便利です。畑226㎡(3か所に点在)、原野1633㎡、保安林3302㎡が付いています。風呂、トイレ、台所、床、窓ガラスなど大修繕が必要です。公共下水道引き込み可能(負担金37.5万円と工事代が必要)。集落の中です。
| Terreno:土地面積 | 5706 m² |
|---|---|
| Edificio:建物面積 | 188 m² |
| Estructura:構造 | Techo de tejas de madera木造 瓦葺 |
| Construido en:建築年 | 1975 |

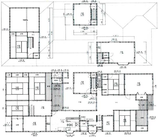
La ciudad de Katsuo está ubicada en la parte noreste de la prefectura de Okayama. Ubicada al sur del monte Nagi, el pico principal de las montañas Chugoku, la ciudad es rica en naturaleza, con colinas de suave pendiente en la parte norte y partes abiertas, central y sur a lo largo del río Takigawa que corre de norte a sur a través de la ciudad. La propiedad que presentamos en esta ocasión está ubicada en una parcela espaciosa e incluye una casa principal, un edificio independiente y un almacén/galpón de almacenamiento. También hay tierras de cultivo adyacentes. La casa principal tiene un diseño de 7DK y la casa unifamiliar tiene dos habitaciones. Al entrar por la entrada, hay una habitación de estilo japonés con habitaciones adyacentes dispuestas en forma rectangular. También hay una terraza orientada al sur que da al jardín. Si vas hacia el norte desde la entrada, encontrarás una habitación de estilo occidental con 6 tatamis que es perfecta como sala de estar, cocina comedor y baño. En el segundo piso, hay una habitación de estilo japonés con 6 tatamis en el lado sur, y una habitación de madera con 10,5 tatamis en el lado norte, al otro lado de la escalera. El espacio de almacena勝央町は岡山県の北東部に位置します。中国山脈の主峰那岐山の南にあり、北部は緩やかに傾斜する丘陵が起伏し、中南部は町を南北に貫流する滝川に沿って開けた自然豊かな町です。今回ご紹介する物件は、広々とした敷地に、母屋、離れ、倉庫物置が建っています。地続きの農地もついていますよ♪母屋の間取りは7DK、離れにはお部屋が2間あります。玄関をあがり正面には、田の字型の続き間の和室があります。お庭に面した南向きの縁側もついていますよ。玄関から北へ進むと居間にぴったりな洋室6畳とダイニングキッチン、水回りがあります。2階には南側に和室6畳、階段を挟んで北側には10.5畳の板の間があります。間にある収納はどちらのお部屋からも使えますよ。離れへは、縁側を東に進みます。広い廊下にはお手洗いと洗面台がついています。1階と2階にそれぞれ1部屋ずつ、ともに12畳の広々としたお部屋があります♪母屋の西側には、倉庫物置があります。2階建ての建物で8部屋に分かれています。季節の家具家電や、お庭道具や農具など種類をわけて保管が出来ますよ♪また、北側にはお手洗いもついていますので屋外での作業時に便利ですね。敷地は、道路から宅地、宅地から農地へと高低差がある地形です。宅地が約353坪です。お車は5台以上の駐車が可能です!北側と東側には地続きの農地が約255坪ついています♪日当たりも良く管理もしやすいですよ。敷地内には桜や柿などの樹木もあり四季の移り変わりを楽しめます♪勝央町でのんびり田舎暮らしを楽しみませんか?ご案内のご希望やご質問がございましたら、お気軽にお問い合わせくださいませ。
| Terreno:土地面積 | 2011 m² |
|---|---|
| Edificio:建物面積 | 153 m² |
| Escala:建物規模 | 2 historias2階建て |
| Estructura:構造 | Techo de tejas de madera木造 瓦葺 |
| Construido en:建築年 | 1947 |

Ubicación: Setouchi Nagafune-cho Fukuoka ● Estructura: Edificio de madera de dos plantas ● Fecha de construcción: marzo de 63 ● Transporte: Aproximadamente 800 m de la estación Nagafune en la línea JR Ako ● Instalaciones: Electricidad, suministro de agua, alcantarillado, gas propano, canaletas ● Estado actual / Casa vacía ● Entrega / Consulta ● Patrón de transacción / Corretaje所在/瀬戸内市長船町福岡●構造/木造2階建●築年月/昭和63年3月●交通/JR赤穂線長船駅より約800m●設備/電気、上水道、下水道、プロパンガス、側溝●現況/空家●引渡/相談●取引態様/仲介
| Terreno:土地面積 | 406 m² |
|---|---|
| Edificio:建物面積 | 318 m² |
| Escala:建物規模 | 2 historias2階建 |
| Estructura:構造 | De madera木造 |
| Construido en:建築年 | 1988 |

Una villa en el norte de la prefectura. Una gran extensión de terreno llano. Está bordeada por el río Kurami. La gran altitud permite mantenerse fresco y cómodo en el "verano extremadamente caluroso". Puede disfrutar de la vida en la villa sin preocuparse por las mascotas y el entorno. En el 3º año de Reiwa se renovaron el aseo, el baño, la cocina, la fosa séptica, etc. El agua potable es agua de arroyo. Está a unos 6 km detrás del campamento Kuroki. Están las "Cien Aguas Termales" y las "Aguas Termales de Awa".県北の奥にある別荘。平坦なまとまった広い土地。倉見川に接している。標高が高いので「酷暑の夏」を涼しく快適に過ごせる。ペットなどと周囲を気にしないで別荘生活が楽しめる。令和3年にトイレ、浴室、台所、浄化槽などリフォーム済。飲用水は沢水。「黒木キャンプ場」より約6㎞奥にある。「百々温泉」「阿波温泉」がある。
| Terreno:土地面積 | 3287 m² |
|---|---|
| Edificio:建物面積 | 138 m² |
| Estructura:構造 | Techo de tejas de madera木造 瓦葺 |
| Construido en:建築年 | 2001 |

Por casualidad conseguí una casa vieja. Está rodeado de campos y un entorno muy tranquilo. El edificio tiene más de 100 años, pero ha sido renovado en algunos lugares y, en general, está construido de forma muy sólida. El vecindario inmediato está vacío, por lo que no hay problema incluso si se vuelve ruidoso. Creo que sería un buen lugar para montar una casa de huéspedes, una fábrica de carpintería, una herrería u otro negocio. Pienso que también se podría utilizar como casa de vacaciones. Actualmente vivo en la propiedad, pero la entrega será posible en aproximadamente 1-2 semanas. Está lleno de naturalidad, y aunque haga ruido no es un problema en absoluto. La gente local también es muy agradable. Se encuentra alejado del pueblo (unos 20 minutos en coche), por lo que puede resultar incómodo para quienes van de compras todos los días. No es agua de pozo, pero hay agua de montaña cerca. También estamos considerando vender el campo de 339m2. Esta no es una zona de alerta de deslizamientos de tierra. También estamos agradecidos por el acceso a Internet de la ciudad. Los baños son fosas sépticas, por lo que si esto te molesta, es posible que necesites renovarlos. La ciudad proporcio縁あって古民家を手に入れました。周りは田畑ばかりでとてものどかな環境です。築100年以上の建物ですが、所々リフォームしており、全体的にとてもしっかりとした造りです。すぐ近所は空き家になっているので、騒がしくなっても全く問題はありません。ゲストハウス、木の工場、鉄工所など事業をするのにちょうど良いと思います。別荘にも使えると思います。現在居住中ですが、引き渡しは1~2週間ほどで出来ます。自然豊かで、音が出ても全く問題になりません。地域の方もとても良い方々です。町から離れているところにあるため(車で20分程)、毎日買い物に行く方にとっては不便かもしれません。井戸水ではありませんが、近くに山水が出ている所があります。339㎡の畑も一緒にお売りしたいと考えています。土砂災害警戒区域ではありません。また、市のインターネットがありますので助かっています。トイレは汲み取りになるので、気になる方はリフォームが必要になるかもしれません。浄化槽を設置するには市からの補助金が出るようです。外にもトイレがあり、そちらは簡易水洗になっています。1部屋には薪ストーブを設置しています。薪ストーブはぜひそのままお使いください。都会を離れて田舎でスローライフを楽しみたい方にはピッタリの物件だと思います。価格は相談に応じますし、「ここをこうしてほしい」などリフォームの相談にものります。詳しい住所については、実際に下見に来られる方にのみお知らせいたします。
| Terreno:土地面積 | 559 m² |
|---|---|
| Edificio:建物面積 | 143 m² |
| Escala:建物規模 | 2 historias2階建て |
| Estructura:構造 | De madera木造 |
| Construido en:建築年 | 1923 |

La ciudad de Waki se encuentra en la parte sureste de la prefectura de Okayama. Somos bendecidos con abundante naturaleza, como montañas y hermosos ríos donde se puede disfrutar del paisaje de las cuatro estacionesEn ♪ la agricultura, que es la principal industria, se cultivan activamente árboles frutales como uvas, manzanas, ciruelas y cerezas. La propiedad introducida en esta ocasión es una casa japonesa construida en un entorno idílico rodeado de tierras de cultivo y sin casas privadas adyacentes. El plano de planta es 4SLDK. Si subes a la izquierda de la entrada, hay una sala de estilo japonés en la continuación del campo de arroz. ♪La sala de estilo japonés en el lado noreste entre el LDK y la continuación tiene una mesa Horiza en el centro, y es una sala donde se puede disfrutar de reuniones familiares como un kotatsu en invierno y una mesa de estar en verano. El LDK está equipado con una estufa de leña que lo calentará rápidamente incluso en un día frío ☆ El lado norte con una terraza de madera está abierto y puede pasar un momento relajante mientras contempla la rica naturaleza. El segundo piso es una planta de 28 tatamis. Se puede reformar y utilizar como habitación, o se和気郡和気町は岡山県の南東部に位置しています。四季折々の景観が楽しめる山やきれいな川など豊かな自然に恵まれています♪主な産業である農業では、ブドウやリンゴ、スモモ、サクランボなどの果樹が盛んに栽培されています!今回ご紹介する物件は、農地に囲まれ隣接する民家がないのどかな環境に建つ日本家屋です。間取りは4SLDK。玄関を左手に上がると田の字型の続き間の和室がございます。南側には暖かい日差しを取り込める縁側が付いていますよ♪LDKと続き間の北東側の和室は中央に堀座卓があり、冬にはこたつ、夏には座卓として家族団らんを楽しめるお部屋です。LDKには、薪ストーブが設置されており寒い日でもさっと暖かくなりますよ☆ウッドデッキのある北側は開けており、豊かな自然を眺めながらリラックスした時間を過ごせそうです。2階は28畳の板間です。改装してお部屋として使うこともできますし、収納部屋としても利用できますよ(^^)/母屋の東側には納屋も附属しています。12畳と8畳の土間スペースがありそれぞれ用途を分けて収納することが出来ますよ!納屋の南側にはピザ窯があり、ピザやパン作りも楽しめます。附属の農地は全て、お家を囲うように地続きになっています。物件には、トラクターや手押し耕運機、草刈機が附属していますので、お野菜作りからお米作りまで幅広く挑戦していただけますよ!和気郡和気町のこちらの物件で農業をしながら暮らしませんか?ご案内のご希望やご質問がございましたら、お気軽にお問い合わせくださいませ。
| Terreno:土地面積 | 4966 m² |
|---|---|
| Edificio:建物面積 | 119 m² |
| Escala:建物規模 | 2 historias2階建て |
| Estructura:構造 | Techo de tejas de madera木造 瓦葺 |
| Construido en:建築年 | 1915 |
Todas las akiya en un solo lugar
¡Encuentre la casa vacante perfecta en Japón!

Comprar una casa barata en Okayama ofrece la oportunidad de vivir en una región culturalmente rica, conocida por sus monumentos históricos, paisajes pintorescos y vibrantes comunidades locales.
Las casas más pequeñas de Okayama reflejan estilos arquitectónicos tradicionales japoneses que priorizan el uso eficiente del espacio. Esto puede ser atractivo para quienes buscan un ambiente de vida acogedor e íntimo. Los interesados deben considerar cuidadosamente sus preferencias de vida y sus necesidades de transporte, ya que las opciones más asequibles suelen estar ubicadas más lejos de los centros urbanos o de las zonas turísticas populares.
Con una investigación diligente y expectativas realistas, es posible encontrar una casa económica que se ajuste a sus necesidades y aspiraciones en esta pintoresca prefectura de Japón.
AllAkiyas.com pone a su disposición miles de anuncios inmobiliarios japoneses de propiedades en venta o en alquiler. Nuestra vasto catálogo incluye casas unifamiliares, casas adosadas, apartamentos, locales comerciales y terrenos baldíos. Nos centramos especialmente en las casas tradicionales vacías, conocidas como akiya (o kominka en zonas rurales), y las casas adosadas tradicionales, o machiya. Puede buscar fácilmente propiedades en todas las prefecturas de Japón utilizando sus criterios específicos.