





Añadir a listas:✕
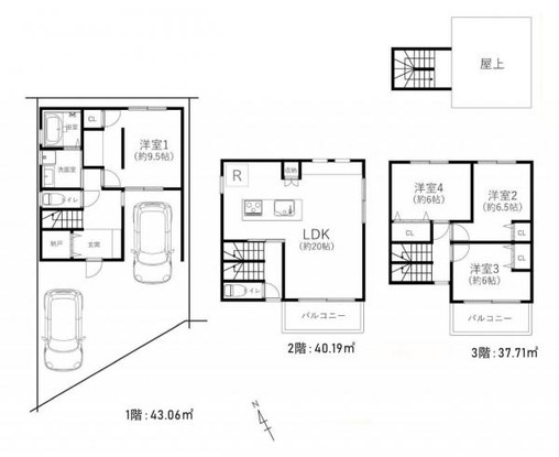
Se trata de una casa de segunda mano comprada como nueva construcción el 17 de diciembre. Está ubicado en un lote de esquina y tiene buena luz solar y viento. El plano de planta es de 3LDK y hay una cocina, comedor, sala de estar, baño, baño y aseo en el primer piso. La segunda planta se puede dividir en tres habitaciones, una buhardilla, y una habitación con aseo en dos. Creo que es un plano de planta fácil de usar con mucho espacio de almacenamiento. El estacionamiento es para 1 automóvil y tiene una cochera. Tanto la carretera delantera como la lateral son anchas y los coches entran y salen sin problemas. Hay un granero en la parte trasera del estacionamiento. Hay calefacción por suelo radiante en la sala de estar y una habitación en el segundo piso. Hay un kawak y una sauna de niebla en el baño, y un lavavajillas y un purificador de agua en la cocina, pero no sé cuánto durarán porque se han deteriorado con el tiempo. Hace seis años, se reemplazó el calentador de agua, hace tres años, se reemplazó el lavabo, se renovó el baño, se instalaron estantes y también se instaló el inodoro tanto en el primer como en el segundo piso. Estamos reparando tejas debido a un tifón anterior. Es平成17年12月に新築で購入した中古住宅です。角地に立地し、日当たり風通りが良いです。間取りは、3LDKで1階にキッチン、ダイニング、リビング、風呂洗面所、トイレがあります。2階は3部屋とロフト、トイレで1部屋は2つに分けることができます。収納も多めで使いやすい間取りではないかと思います。駐車場は普通車1台分で、カーポートが付いています。前面道路、側面道路ともに広めで車の出入りスムーズです。駐車場後方に納屋があります。リビングと2階の1室に床暖房が付いています。お風呂にはカワックとミストサウナ、キッチンは食洗機と浄水器がありますが、どれも経年劣化でいつまで使えるか分かりません。6年前に給湯器の交換、3年前に洗面台交換し洗面所のリフォーム、棚の設置とトイレも1、2階共に棚を設置しました。以前の台風により屋根の瓦を修理しています。愛着のある家なので、大切にしてくださる方、また現状のままで納得してくださる方、次の家が建って引っ越しできるまで待って頂ける方でお願い致します。引っ越しは2025年の春から夏の間くらいと考えています。環境が良く、便利で暮らしやすい地域だと思います。周囲はスーパー、コンビニ、ドラッグストア、コインランドリー、銀行、郵便局、クリニック数店、飲食店数店、商業施設が全て徒歩圏内で、小学校、保育園もすぐそばです。ららぽーとEXPOCITY、マイカル茨木、万博公園までは車で10分程、阪大病院までは車で15分程、国立循環器病センター、市民病院、徳洲会病院までは車で5~6分です。自転車でも行けます(実際自転車で行ってました)。駅まで平坦で徒歩約12分、そこから大阪駅まで15分、京都駅までは30分程です。JR阪急共に使えますので、通勤や通学に便利だと思います。駅周辺にも飲食店があります。駅周辺は再開発中で、この地域の土地の値段も上がってきているようで、特にこの周囲は人気でなかなか売り出しがないようです。しかし経年劣化による家の傷みもありますし、機材の不具合も多少出ています。
Terreno:土地面積 | 73 m² |
---|---|
Edificio:建物面積 | 84 m² |
Escala:建物規模 | Edificio de madera de dos pisos木造2階建て |
Estructura:構造 | De madera木造 |
Construido en:建築年 | 2005 |
Todas las akiya en un solo lugar
¡Encuentre la casa vacante perfecta en Japón!
La prefectura de Osaka se destaca como un destino atractivo para aquellos que desean emigrar a Japón, gracias a su vibrante estilo de vida, rica cultura y un ambiente urbano dinámico. Osaka es la segunda ciudad más grande del país, conocida por su deliciosa gastronomía, animados distritos comerciales y una oferta cultural diversa que incluye museos, teatros y festivales. En comparación con otras prefecturas como Tokio, Osaka ofrece una calidad de vida comparable, pero a menudo con un costo de vida más accesible. La asequibilidad de la vivienda en Osaka es un factor clave que la convierte en una opción preferida; los precios de los alquileres y las propiedades tienden a ser más razonables en comparación con la capital, lo que permite a las familias establecerse sin la presión financiera que a menudo se experimenta en Tokio. Además, la prefectura cuenta con excelentes redes de transporte público, facilitando el desplazamiento entre la ciudad y sus alrededores. En resumen, Osaka Fu ofrece un equilibrio atractivo entre calidad de vida, asequibilidad y acceso a servicios, convirtiéndola en una opción privilegiada para quienes buscan un nuevo hogar en Japón.
AllAkiyas.com pone a su disposición miles de anuncios inmobiliarios japoneses de propiedades en venta o en alquiler. Nuestra vasto catálogo incluye casas unifamiliares, casas adosadas, apartamentos, locales comerciales y terrenos baldíos. Nos centramos especialmente en las casas tradicionales vacías, conocidas como akiya (o kominka en zonas rurales), y las casas adosadas tradicionales, o machiya. Puede buscar fácilmente propiedades en todas las prefecturas de Japón utilizando sus criterios específicos.