All Akiyas
Inscripción
Inscripción


Ver en pantalla completa
Agregar o retirar de mi lista
detached 南部
detached 南部
detached 南部
detached 南部
detached 南部
detached 南部
Casas tradicionales en venta en Shimoichi Cho : Nara Ken

LugarShimoichi Cho, Nara Ken奈良県下市町

Abrir en una nueva pestaña
USD $12,020
(¥1,800,000)
180 万円
Descripción

Una casa de una antigua tienda en Shimoichi下市町下市にある元店舗の住宅

  • Información
  • Mapa

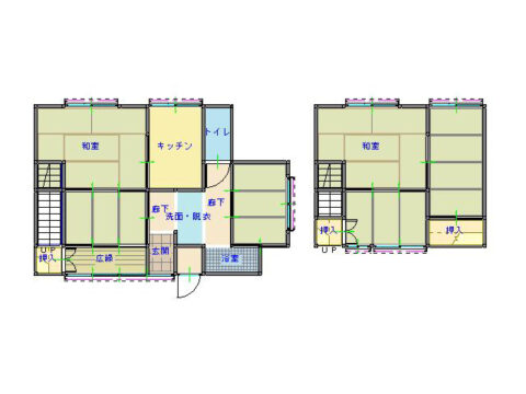
Plano de plantaPlano de planta間取り

7DK
1er piso: Habitación de estilo japonés (6 tatami) Habitación de estilo occidental (10 tatami) D (6 tatami) K (2,5 tatami) Baño WC
2ª planta: sala de estilo japonés (6, 6, 6, 6 tatami)
7DK
1階:和室(6帖)洋室(10・6帖)D(6帖)K(2.5帖)風呂 トイレ
2階:和室(6・6・6・6帖)

EstacionamientoEstacionamiento駐車場

Hay 3 o 4 unidades有 3, 4台

Correo electrónico
sur南部
(Ubicación aproximada)
Terreno:土地面積162 m²
Edificio:建物面積158 m²
Estructura:構造De madera木造
Construido en:建築年1945
detached 吉野郡下市町下市
Ver en pantalla completa
Agregar o retirar de mi lista
detached 吉野郡下市町下市
detached 吉野郡下市町下市
detached 吉野郡下市町下市
detached 吉野郡下市町下市
detached 吉野郡下市町下市
detached 吉野郡下市町下市
Casas tradicionales en venta en Shimoichi Cho : Nara Ken

LugarShimoichi Cho, Nara Ken奈良県下市町

Abrir en una nueva pestaña
USD $12,020
(¥1,800,000)
180 万円
Descripción

Una casa de una antigua tienda en Shimoichi下市町下市にある元店舗の住宅

  • Información
  • Mapa

Plano de plantaPlano de planta間取り

7DK 1er piso: habitación de estilo japonés (6 tatamis) Habitación de estilo occidental (10 tatami) D (6 tatami) K (2,5 tatami) Baño y WC
2ª planta: sala de estilo japonés (6, 6, 6, 6 tatami)
7DK 1階:和室(6帖)洋室(10・6帖)D(6帖)K(2.5帖)風呂 トイレ
2階:和室(6・6・6・6帖)

Correo electrónico
Shimoichi, Yoshino-gun Shimoichi吉野郡下市町下市
(Ubicación aproximada)
Terreno:土地面積162 m²
Edificio:建物面積158 m²
Estructura:構造De madera木造
Construido en:建築年1945
detached 吉野郡下市町善城
Ver en pantalla completa
Agregar o retirar de mi lista
detached 吉野郡下市町善城
detached 吉野郡下市町善城
detached 吉野郡下市町善城
detached 吉野郡下市町善城
detached 吉野郡下市町善城
detached 吉野郡下市町善城
Casas tradicionales en venta en Shimoichi Cho : Nara Ken

LugarShimoichi Cho, Nara Ken奈良県下市町

Abrir en una nueva pestaña
USD $23,372
(¥3,500,000)
350 万円
Descripción

Una antigua casa a lo largo del río con un campo y una separación川沿いにある、畑と離れ付きの古民家

  • Información
  • Mapa

Plano de plantaPlano de planta間取り

5DK
1er piso: Japonés 8, 6, 4, 4, Occidental 5, DK
5DK
1階:和8・6・4・4、洋5、DK

Correo electrónico
Yoshino Shimoichi Ciudad Yoshino吉野郡下市町善城
(Ubicación aproximada)
Terreno:土地面積311 m²
Edificio:建物面積82 m²
Estructura:構造De madera木造
Construido en:建築年1953
detached 奈良県吉野郡下市町大字下市 周辺情報を調べる
Ver en pantalla completa
Agregar o retirar de mi lista
detached 奈良県吉野郡下市町大字下市 周辺情報を調べる
detached 奈良県吉野郡下市町大字下市 周辺情報を調べる
detached 奈良県吉野郡下市町大字下市 周辺情報を調べる
detached 奈良県吉野郡下市町大字下市 周辺情報を調べる
detached 奈良県吉野郡下市町大字下市 周辺情報を調べる
detached 奈良県吉野郡下市町大字下市 周辺情報を調べる
Casas tradicionales en renta en Shimoichi Cho : Nara Ken

LugarShimoichi Cho, Nara Ken奈良県下市町

Abrir en una nueva pestaña
USD $467 / mes
(¥70,000 / mes)
7 万円 / 月
Descripción

Propiedades multifuncionales con almacenes, oficinas, almacenes, etc.蔵、事務所、倉庫などの付いた多機能な物件

  • Información
  • Mapa

Plano de plantaPlano de planta間取り

9DK
9DK
9DK
9DK

Correo electrónico
Shimoichi, Yoshino-gun, Prefectura de Nara奈良県吉野郡下市町大字下市 周辺情報を調べる
(Ubicación aproximada)
Depósito de seguridad:敷金No es claro不明
Key money:礼金No es claro不明
Edificio:建物面積542 m²
Area exclusiva:専有面積542 m²
Estructura:構造De madera木造
Construido en:建築年1955
Ver en pantalla completa
Agregar o retirar de mi lista
detached
detached
detached
detached
detached
detached
Casas tradicionales en renta en Shimoichi Cho : Nara Ken

LugarShimoichi Cho, Nara Ken奈良県下市町

Abrir en una nueva pestaña
USD $367 / mes
(¥55,000 / mes)
5 万 5000 円 / 月
Descripción

Aunque está ubicado en el centro de la ciudad de Shitaichi, se encuentra en un entorno tranquilo en Yamate.下市町中心部でありながら山手の静かな環境です。

  • Información
  • Mapa

Plano de plantaPlano de planta間取り

6DK 1er piso habitación de estilo japonés 8 6 4,5 4,5 Cocina Baño Aseo 2do piso habitación de estilo japonés 6 4,56DK
1階 和室8 6 4.5 4.5 台所 風呂 トイレ
2階 和室6 4.5

EstacionamientoEstacionamiento駐車場

Sí (1 coche con techo, espacio para 2 coches en el sitio)有(屋根付き1台・敷地内にもスペース2台分有)

Terreno:土地面積194 m²
Edificio:建物面積84 m²
Estructura:構造De madera de dos pisos木造二階建
Construido en:建築年1978
detached 奈良県吉野郡下市町大字下市 周辺情報を調べる
Ver en pantalla completa
Agregar o retirar de mi lista
detached 奈良県吉野郡下市町大字下市 周辺情報を調べる
detached 奈良県吉野郡下市町大字下市 周辺情報を調べる
detached 奈良県吉野郡下市町大字下市 周辺情報を調べる
detached 奈良県吉野郡下市町大字下市 周辺情報を調べる
detached 奈良県吉野郡下市町大字下市 周辺情報を調べる
detached 奈良県吉野郡下市町大字下市 周辺情報を調べる
Casas tradicionales en venta en Shimoichi Cho : Nara Ken

LugarShimoichi Cho, Nara Ken奈良県下市町

Abrir en una nueva pestaña
USD $26,711
(¥4,000,000)
400 万円

"Ciudad de Shimoichi Shimoichi (SI68)"「下市町下市(SI68)」

Descripción

Una propiedad con dos edificios consecutivos. ¡Para dos hogares o uso en tiendas!2棟が続いた物件。二世帯や店舗利用に!

  • Información
  • Mapa

Plano de plantaPlano de planta間取り

5DK 5DK5DK
5DK

Correo electrónico
Shimoichi, Yoshino-gun, Prefectura de Nara奈良県吉野郡下市町大字下市 周辺情報を調べる
(Ubicación aproximada)
Terreno:土地面積158 m²
Edificio:建物面積74 m²
Escala:建物規模2 pisos / -2階建 / -
Estructura:構造De madera木造
Construido en:建築年1953
detached 吉野郡下市町下市
Ver en pantalla completa
Agregar o retirar de mi lista
detached 吉野郡下市町下市
detached 吉野郡下市町下市
detached 吉野郡下市町下市
detached 吉野郡下市町下市
detached 吉野郡下市町下市
detached 吉野郡下市町下市
Casas tradicionales en venta en Shimoichi Cho : Nara Ken

LugarShimoichi Cho, Nara Ken奈良県下市町

Abrir en una nueva pestaña
USD $6,678
(¥1,000,000)
100 万円
Descripción

Propiedad asequible que se utilizó como antigua fábrica元工場として使われていたお手頃な物件

  • Información
  • Mapa

Plano de plantaPlano de planta間取り

3DK
1er piso: cocina japonesa (6, 6), baño, aseo
2º Orden: Suma (6)
3DK
1階:和(6・6)キッチン 風呂 トイレ
2階:和(6)

Correo electrónico
Shimoichi, Yoshino-gun Shimoichi吉野郡下市町下市
(Ubicación aproximada)
Terreno:土地面積173 m²
Edificio:建物面積Por favor pregunte
Estructura:構造De madera木造
Construido en:建築年1955
Ver en pantalla completa
Agregar o retirar de mi lista
detached 南部
detached 南部
detached 南部
detached 南部
detached 南部
detached 南部
Casas tradicionales en Shimoichi Cho : Nara Ken

LugarShimoichi Cho, Nara Ken奈良県下市町

Abrir en una nueva pestaña
Descripción

Propiedad asequible que se utilizó como antigua fábrica元工場として使われていたお手頃な物件

  • Información
  • Mapa

Plano de plantaPlano de planta間取り

3DK
1er piso: cocina japonesa (6, 6), baño, aseo
2º Orden: Suma (6)
3DK
1階:和(6・6)キッチン 風呂 トイレ
2階:和(6)

EstacionamientoEstacionamiento駐車場

Ningunoなし

Correo electrónico
sur南部
(Ubicación aproximada)
Terreno:土地面積173 m²
Edificio:建物面積Por favor pregunte
Estructura:構造De madera木造
Construido en:建築年1955
Ver en pantalla completa
Agregar o retirar de mi lista
detached 南部
detached 南部
detached 南部
detached 南部
detached 南部
Casas tradicionales en Shimoichi Cho : Nara Ken

LugarShimoichi Cho, Nara Ken奈良県下市町

Abrir en una nueva pestaña
Descripción

Propiedades multifuncionales con almacenes, oficinas, almacenes, etc.蔵、事務所、倉庫などの付いた多機能な物件

  • Información
  • Mapa

Plano de plantaPlano de planta間取り

9DK
1er piso: Japonesa (8, 6, 6) Occidental (6) Pasillo Cocina Baño Inodoro Granero
2ª planta: Japonesa (8, 8, 6, 4,5) Occidental (8) visitante
9DK
1階:和(8・6・6)洋(6) ホール キッチン 風呂 トイレ 納戸
2階:和(8・8・6・4.5)洋(8)離れ

EstacionamientoEstacionamiento駐車場

Correo electrónico
sur南部
(Ubicación aproximada)
Terreno:土地面積542 m²
Edificio:建物面積Por favor pregunte
Estructura:構造De madera木造
Construido en:建築年1955
detached 吉野郡下市町下市
Ver en pantalla completa
Agregar o retirar de mi lista
detached 吉野郡下市町下市
detached 吉野郡下市町下市
detached 吉野郡下市町下市
detached 吉野郡下市町下市
detached 吉野郡下市町下市
Casas tradicionales en venta en Shimoichi Cho : Nara Ken

LugarShimoichi Cho, Nara Ken奈良県下市町

Abrir en una nueva pestaña
USD $467 / mes
(¥70,000 / mes)
7 万円 / 月
Descripción

Propiedades multifuncionales con almacenes, oficinas, almacenes, etc.蔵、事務所、倉庫などの付いた多機能な物件

  • Información
  • Mapa

Plano de plantaPlano de planta間取り

9DK
1er piso: Japonesa (8, 6, 6) Occidental (6) Pasillo Cocina Baño Inodoro Granero
2ª planta: Japonesa (8, 8, 6, 4.5) Occidental(8) Visitante
9DK
1階:和(8・6・6)洋(6) ホール キッチン 風呂 トイレ 納戸
2階:和(8・8・6・4.5)洋(8) 離れ

Correo electrónico
Shimoichi, Yoshino-gun Shimoichi吉野郡下市町下市
(Ubicación aproximada)
Terreno:土地面積542 m²
Edificio:建物面積Por favor pregunte
Estructura:構造De madera木造
Construido en:建築年1955

Todas las akiya en un solo lugar

¡Encuentre la casa vacante perfecta en Japón!

  • Todas las prefecturas de Japón en un solo sitio web
  • Anuncios detallados con información de contacto
  • Convenientemente traducidos al español
  • Busque propiedades según sus propios criterios
  • Reciba nuestras alertas personalizadas por correo

Conexión  Inscripción
Nara Ken

Establecerse en Nara

La prefectura de Nara, situada en el corazón de Japón, es un destino encantador para aquellos que planean mudarse al país. Conocida por su rica herencia cultural, Nara fue la primera capital permanente de Japón y alberga varios sitios patrimoniales, como los templos Todai-ji y Horyu-ji, así como el Parque de Nara, famoso por sus ciervos en libertad. A diferencia de las bulliciosas metrópolis como Tokio o Osaka, Nara ofrece un estilo de vida más pausado y una conexión más profunda con la naturaleza, lo que resulta atractivo para familias que buscan un entorno más tranquilo y accesible. En cuanto a la vivienda, Nara es relativamente asequible en comparación con otras regiones urbanas; los precios de las casas y apartamentos suelen ser más bajos que en las grandes ciudades, lo que permite a los nuevos residentes encontrar opciones razonables y adecuadas para sus presupuestos. Además, la prefectura cuenta con un buen sistema de transporte que facilita el acceso a las grandes ciudades cercanas, equilibrando así la tranquilidad de la vida rural con la comodidad urbana, lo que la convierte en una opción ideal para quienes buscan un nuevo hogar en Japón.


Encuentre una propiedad con AllAkiyas.com

AllAkiyas.com pone a su disposición miles de anuncios inmobiliarios japoneses de propiedades en venta o en alquiler. Nuestra vasto catálogo incluye casas unifamiliares, casas adosadas, apartamentos, locales comerciales y terrenos baldíos. Nos centramos especialmente en las casas tradicionales vacías, conocidas como akiya (o kominka en zonas rurales), y las casas adosadas tradicionales, o machiya. Puede buscar fácilmente propiedades en todas las prefecturas de Japón utilizando sus criterios específicos.