


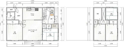
El amplio espacio habitable con una superficie total de 115,69 metros cuadrados y el baño tiene un tamaño de más de 1 tsubo donde puede bañarse libremente, por lo que incluso las personas grandes pueden estirarse y frotarse el cuerpo.広々とした延床面積115.69㎡の居室空間、更にのびのび入浴できる広さ1坪以上の浴室だから、洗い場が広くて大柄な方でも体を伸ばしてゴシゴシ洗えます。
Terreno:土地面積 | 592 m² |
---|---|
Edificio:建物面積 | 116 m² |
Escala:建物規模 | 2 plantas sobre rasante地上2階 |
Estructura:構造 | De madera木造 |
Construido en:建築年 | 1990 |
Todas las akiya en un solo lugar
¡Encuentre la casa vacante perfecta en Japón!
Hokkaido experimenta inviernos largos y duros con fuertes nevadas, que pueden no ser del agrado de todos. Sin embargo, Hokkaido ofrece un mercado inmobiliario más accesible en comparación con las principales ciudades del sur como Tokio u Osaka. Es posible encontrar propiedades a precios razonables, incluidas casas tradicionales y modernas, especialmente en pueblos más pequeños y zonas rurales.
Hokkaido es famoso por sus impresionantes paisajes naturales. Es un paraíso para los amantes del aire libre. Las ciudades de Hokkaido, como Sapporo, son conocidas por su alta calidad de vida. La región disfruta de aire limpio, una menor densidad de población y un ritmo de vida más lento en comparación con las ciudades más pobladas y bulliciosas de las islas principales.
AllAkiyas.com pone a su disposición miles de anuncios inmobiliarios japoneses de propiedades en venta o en alquiler. Nuestra vasto catálogo incluye casas unifamiliares, casas adosadas, apartamentos, locales comerciales y terrenos baldíos. Nos centramos especialmente en las casas tradicionales vacías, conocidas como akiya (o kominka en zonas rurales), y las casas adosadas tradicionales, o machiya. Puede buscar fácilmente propiedades en todas las prefecturas de Japón utilizando sus criterios específicos.