




Añadir a listas:✕
¿Te gustaría vivir en una casa espaciosa? ¡También hay espacio para una tienda, para que puedas disfrutar de vivir libremente!広々とした家に住んでみませんか♪店舗向けスペースもあるので、自由に暮らしを楽しめます!
Terreno:土地面積 | 597 m² |
---|---|
Edificio:建物面積 | 227 m² |
Escala:建物規模 | 2 historias2階建 |
Estructura:構造 | De madera木造 |
Construido en:建築年 | 1960 |
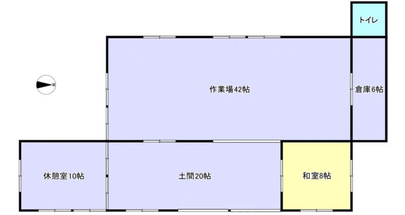
Casa vacía banco [venta] 1 millón de yenes Prefectura de Iwate Kesen-gun Sumita-cho Kamizumi personaje Nakazawa Lugar rico en naturaleza, sitio grande Casa de acero de madera de un piso con piso de tierra, almacén y gran taller空き家バンク【売買】100万円 岩手県気仙郡住田町上有住字中沢 自然豊かな場所・広い敷地 土間・倉庫・広い作業場付き木造鉄骨平屋
Terreno:土地面積 | 884 m² |
---|---|
Edificio:建物面積 | 152 m² |
Estructura:構造 | Casa de madera de una sola planta con estructura de acero木造, 鉄骨造平屋 |
Todas las akiya en un solo lugar
¡Encuentre la casa vacante perfecta en Japón!
La prefectura de Iwate, ubicada en la región de Tohoku, es un destino ideal para aquellas familias que buscan un estilo de vida tranquilo y un entorno natural impresionante. Con sus paisajes montañosos, costas escénicas y un rico patrimonio cultural, Iwate ofrece un ambiente sereno, perfecto para aquellos que valoran la conexión con la naturaleza. A diferencia de las grandes áreas metropolitanas como Tokio y Osaka, donde los precios de la vivienda pueden ser exorbitantes, Iwate presenta un mercado inmobiliario más accesible. Aquí, es posible encontrar casas y terrenos a precios mucho más razonables, lo que permite a las familias establecerse sin incurrir en deudas significativas. Además, la prefectura cuenta con diversas actividades al aire libre, como esquí en invierno y senderismo en verano, lo que la convierte en un lugar ideal para los amantes del aire libre. La comunidad es acogedora y ofrece una buena calidad de vida, así como un entorno seguro y familiar. Aunque Iwate puede no tener la misma oferta de servicios urbanos que las grandes ciudades, su tranquilidad y belleza natural proporcionan un estilo de vida único que muchas familias encontrarán irresistible.
AllAkiyas.com pone a su disposición miles de anuncios inmobiliarios japoneses de propiedades en venta o en alquiler. Nuestra vasto catálogo incluye casas unifamiliares, casas adosadas, apartamentos, locales comerciales y terrenos baldíos. Nos centramos especialmente en las casas tradicionales vacías, conocidas como akiya (o kominka en zonas rurales), y las casas adosadas tradicionales, o machiya. Puede buscar fácilmente propiedades en todas las prefecturas de Japón utilizando sus criterios específicos.