
Verifique disponibilidadAñadir a listas:✕

Casa vacía banco [venta] 5 millones de yenes Sasakawa, Tosho-cho, Katori-gun, Prefectura de Chiba 7K Edificio de 2 pisos con terraza e inodoro con cisterna en el estacionamiento空き家バンク【売買】500万円 千葉県香取郡東庄町笹川い ベランダ・駐車場付き7K2階建 水洗トイレ
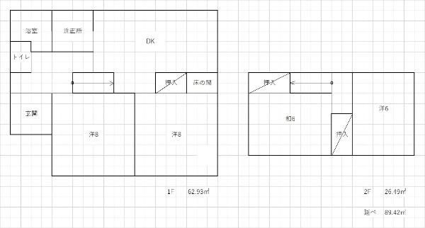
| Terreno:土地面積 | 365 m² |
|---|---|
| Edificio:建物面積 | 175 m² |
| Estructura:構造 | Estructura de madera de dos pisos木造2階建 |

Zonificación/Zona residencial de poca altura Clase 1
Relación de cobertura del edificio/60%
Relación de superficie construida/200%
Derechos/propiedad de la tierra
Situación actual/casa vacía
Entrega/inmediata用途地域/第一種低層住居専用地域
建ぺい率/60%
容積率/200%
土地権利/所有権
現況/空家
引渡し/即時
| Terreno:土地面積 | 264 m² |
|---|---|
| Edificio:建物面積 | 77 m² |
| Estructura:構造 | Casa de madera de un piso木造平屋建て |
| Construido en:建築年 | 1974 |

1985年築木造2階建て。2022/11外壁塗装リフォーム済み。敷地内に離れ一棟あり。室内は残置物等なく、綺麗な状態。和室、洋室ともにあり、バリエーション豊かな居室。1985年築木造2階建て。2022/11外壁塗装リフォーム済み。敷地内に離れ一棟あり。室内は残置物等なく、綺麗な状態。和室、洋室ともにあり、バリエーション豊かな居室。
| Terreno:土地面積 | 235 m² |
|---|---|
| Edificio:建物面積 | Por favor pregunte |
| Escala:建物規模 | 2階建て2階建て |
| Estructura:構造 | 木造木造 |
| Construido en:建築年 | 1985 |

(En negociación) Vivienda vacía banco [Venta] 3 millones de yenes Sasakawaro, Tosho-cho, Katori-gun, Prefectura de Chiba Zona residencial Edificio compacto de 4DK de dos pisos con terraza y estacionamiento Suministro de agua y alcantarillado(交渉中)空き家バンク【売買】300万円 千葉県香取郡東庄町笹川ろ 住宅街 ベランダ・駐車場付き4DKコンパクト2階建 上下水道
| Terreno:土地面積 | 196 m² |
|---|---|
| Edificio:建物面積 | 89 m² |
| Estructura:構造 | Estructura de madera de dos pisos木造2階建 |

Vacant House Bank [Compra y Venta] 4 millones de yenes Sasagawa, Higashisho-cho, Katori-gun, Prefectura de Chiba, a 10 minutos a pie de la estación, buena luz solar, casa de un piso de 4 habitaciones con garaje y estacionamiento空き家バンク【売買】400万円 千葉県香取郡東庄町笹川い 駅徒歩10分・日当り良好 車庫・駐車場付き4部屋平屋
| Terreno:土地面積 | 265 m² |
|---|---|
| Edificio:建物面積 | 77 m² |
| Estructura:構造 | Casa de madera de un piso木造平屋 |
Todas las akiya en un solo lugar
¡Encuentre la casa vacante perfecta en Japón!

La prefectura de Chiba es una excelente opción para quienes buscan mudarse a Japón, especialmente para familias que valoran un equilibrio entre la vida urbana y la tranquilidad suburbana. Situada justo al este de Tokio, Chiba ofrece un fácil acceso a la capital, con múltiples opciones de transporte público, incluyendo trenes que conectan a las principales estaciones de Tokio en aproximadamente 30 minutos. Esto la convierte en una opción ideal para quienes trabajan en la ciudad pero prefieren vivir en un entorno más relajado y menos congestionado. Además, Chiba es conocida por sus espacios naturales, como las playas de la costa de Boso y el Parque Nacional de Narita, ofreciendo oportunidades recreativas al aire libre que son menos comunes en áreas metropolitanas densas. En cuanto a la vivienda, Chiba tiene una amplia variedad de opciones asequibles en comparación con las tarifas más elevadas que se encuentran en Tokio; muchas áreas ofrecen casas unifamiliares y apartamentos a precios razonables. Esto la convierte en una opción atractiva para las familias que buscan asentarse y construir un nidito sin comprometer su presupuesto. Así, Chiba combina accesibilidad, calidad de vida y entorno natural, posicionándose como un lugar destacado para establecerse en Japón.
AllAkiyas.com pone a su disposición miles de anuncios inmobiliarios japoneses de propiedades en venta o en alquiler. Nuestra vasto catálogo incluye casas unifamiliares, casas adosadas, apartamentos, locales comerciales y terrenos baldíos. Nos centramos especialmente en las casas tradicionales vacías, conocidas como akiya (o kominka en zonas rurales), y las casas adosadas tradicionales, o machiya. Puede buscar fácilmente propiedades en todas las prefecturas de Japón utilizando sus criterios específicos.