





Añadir a listas:✕
□■Área del sitio de 45 tsubo o más ♪, amplio espacio ♪ para automóviles, se aceptan ♪ reservas de excursiones ■□□■敷地面積45坪以上♪ゆとりのカースペース完備♪見学予約受付中♪■□
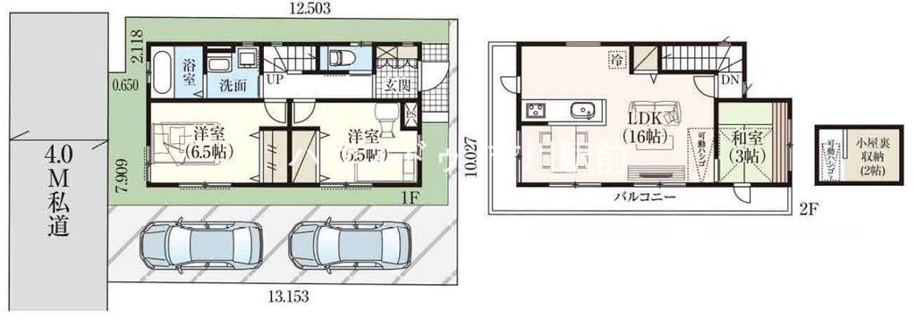
Terreno:土地面積 | 150 m² |
---|---|
Edificio:建物面積 | 107 m² |
Estructura:構造 | Edificio de madera de 2 plantas, parcialmente de madera.木造2階建一部木造 |
Construido en:建築年 | 2015 |
Todas las akiya en un solo lugar
¡Encuentre la casa vacante perfecta en Japón!
La prefectura de Saitama, ubicada al norte de Tokio, ofrece un estilo de vida atractivo y dinámico, ideal para familias y personas que buscan estar cerca de la capital japonesa sin los altos costos de vida. Saitama cuenta con una excelente infraestructura de transporte, facilitando los desplazamientos a Tokio en aproximadamente 30 minutos en tren, lo que permite disfrutar de las oportunidades laborales y culturales de la metrópoli mientras se vive en un ambiente más tranquilo.
En términos de vivienda, Saitama suele tener opciones más asequibles que Tokio, aunque la disponibilidad de viviendas puede variar por localidades. Ciudades como Saitama (capital de la prefectura) o Kawaguchi ofrecen una combinación de apartamentos y casas familiares a precios competitivos. Sin embargo, los precios han ido en aumento, por lo que es recomendable investigar y actuar con rapidez.
En comparación con otras regiones de Japón, Saitama tiene una calidad de vida alta, con acceso a parques, escuelas y servicios de salud de calidad. A menudo, las familias eligen Saitama por su ambiente seguro y comunitario. En resumen, Saitama es una excelente opción para quienes buscan un balance entre vida urbana y tranquilidad suburbana.
AllAkiyas.com pone a su disposición miles de anuncios inmobiliarios japoneses de propiedades en venta o en alquiler. Nuestra vasto catálogo incluye casas unifamiliares, casas adosadas, apartamentos, locales comerciales y terrenos baldíos. Nos centramos especialmente en las casas tradicionales vacías, conocidas como akiya (o kominka en zonas rurales), y las casas adosadas tradicionales, o machiya. Puede buscar fácilmente propiedades en todas las prefecturas de Japón utilizando sus criterios específicos.