
Verifique disponibilidadAñadir a listas:✕

La propiedad está ubicada cerca de la carretera bordeada de tiendas y hospitales. También hay unos 1,1 km hasta el IC de Yuzawa por la autopista, por lo que es conveniente viajar.店舗や病院が並んでいる道路に本物件が近接しています。また高速道路湯沢ICに約1.1Kmなので移動にも便利です。
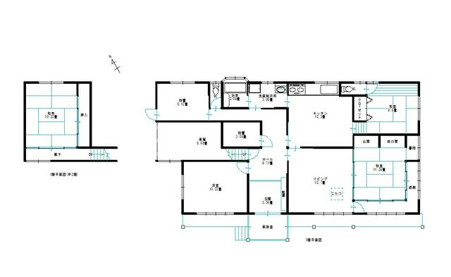
| Terreno:土地面積 | 401 m² |
|---|---|
| Edificio:建物面積 | 197 m² |
| Escala:建物規模 | 2 plantas sobre rasante地上2階 |
| Estructura:構造 | De madera木造 |
| Construido en:建築年 | 1999 |
Todas las akiya en un solo lugar
¡Encuentre la casa vacante perfecta en Japón!

Mudarse a la prefectura de Akita ofrece una experiencia de vida única, caracterizada por un ambiente rural tranquilo rodeado de naturaleza. Akita es conocida por sus paisajes hermosos, incluyendo montañas y lagos, lo que permite disfrutar de actividades al aire libre como senderismo y esquí. La cultura local es rica en festividades y tradiciones, destacando eventos como el famoso Festival Kanto.
En términos de vivienda, Akita se presenta como una opción más asequible en comparación con las grandes ciudades, como Tokio o Osaka. Aunque la disponibilidad de viviendas puede variar, generalmente se pueden encontrar apartamentos y casas a precios razonables, especialmente en áreas más rurales.
En cuanto a calidad de vida, Akita cuenta con comunidades unidas y un ritmo de vida más relajado. Sin embargo, el acceso a servicios culturales y de entretenimiento puede ser limitado en comparación con las grandes urbes. A pesar de esto, muchos residentes valoran la tranquilidad y la calidad del aire que se disfruta en Akita. En resumen, es una excelente opción para quienes buscan un estilo de vida más tranquilo y asequible en Japón.
AllAkiyas.com pone a su disposición miles de anuncios inmobiliarios japoneses de propiedades en venta o en alquiler. Nuestra vasto catálogo incluye casas unifamiliares, casas adosadas, apartamentos, locales comerciales y terrenos baldíos. Nos centramos especialmente en las casas tradicionales vacías, conocidas como akiya (o kominka en zonas rurales), y las casas adosadas tradicionales, o machiya. Puede buscar fácilmente propiedades en todas las prefecturas de Japón utilizando sus criterios específicos.