
Vérifiez disponibilitéAjouter aux listes:✕

C’est un terrain avec une vieille maison, et l’ancienne maison est vacante depuis environ 20 ans, on ne pense donc pas qu’elle soit utilisée à des fins résidentielles. Je me fiche du prix. La propriété se trouve à environ 15 m derrière la route avant et les voitures ne sont pas autorisées à y entrer.古家付きの土地で、古家は20年程空き家で、住居用には使えないと思われます。値段には頓着しません。物件は前面道路から約15m程奥にあり、車の進入は不可です。
| Terrain :土地面積 | 2485 m² |
|---|---|
| Bâtiment :建物面積 | 66 m² |
| Échelle :建物規模 | 1 histoire1階建て |
| Structure :構造 | Maison en bois à un étage木造平屋 |
| Bâtit en :建築年 | 1983 |

Emplacement avec une végétation luxuriante. Le bâtiment est vieux, mais il est pittoresque, et que diriez-vous d’une galerie ou d’un sujet brûlant de résidence ? Nous pouvons également vous présenter un plan de rénovation et de rénovation ! Commençons à vivre une vie passionnante !豊かな緑に恵まれたロケーション。建物は古いですが、趣があり、ギャラリーや話題のなりわい住宅としてもいかがでしょうか?当社でリフォーム・リノベプランのご提示も可能です!わくわくする暮らし始めましょう!
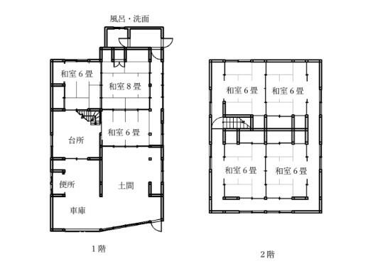
| Terrain :土地面積 | 160 m² |
|---|---|
| Bâtiment :建物面積 | 159 m² |
| Échelle :建物規模 | 2 étages hors sol地上2階 |
| Structure :構造 | En bois木造 |
| Bâtit en :建築年 | 1964 |

Il est situé dans un emplacement idéal.
Un canal coule à proximité, ce qui en fait une maison unifamiliale située à proximité de la route préfectorale 291. Les pharmacies et les supermarchés sont également accessibles à pied !生活利便性のある立地となっております。
近隣には用水路が流れ、県道291号線の近くに位置する一戸建て住宅になります。ドラッグストアやスーパーも徒歩圏内にあります!
| Terrain :土地面積 | 103 m² |
|---|---|
| Bâtiment :建物面積 | 77 m² |
| Échelle :建物規模 | 2 étages hors sol地上2階 |
| Structure :構造 | En bois木造 |
| Bâtit en :建築年 | 1964 |

[Installations environnantes] Jardin d'enfants Ayumi 2 500 m à pied 33 minutes École primaire Matsuyo 2 500 m à pied 33 minutes Lycée Kasama 2 700 m à pied 36 minutes Bureau de poste de Kagano 2 700 m 6 minutes en voiture Magasin Daiso Hirosei Mikawa 2 000 m à pied 26 minutes Family Mart Hakusan Mikawa Inter 1 900 m Environ 25 minutes à pied Magasin Albis Kitayasuda 4200m environ 9 minutes en voiture Magasin Komeri Hard & Green Mikawa Inter 2000m environ 26 minutes à pied Gare de Kaga Kasama 2300m environ 32 minutes à pied《周辺施設》あゆみこども園 2500m徒歩約33分松陽小学校 2500m徒歩約33分笠間中学校 2700m徒歩約36分加賀野郵便局 2700m車約6分ダイソーひらせい美川店 2000m徒歩約26分ファミリーマート白山美川インター店 1900m徒歩約25分アルビス北安田店 4200m車約9分コメリハード&グリーン美川インター店 2000m徒歩約26分加賀笠間駅 2300m徒歩約32分
| Terrain :土地面積 | 980 m² |
|---|---|
| Bâtiment :建物面積 | 263 m² |
| Échelle :建物規模 | 2 histoires2階建 |
| Structure :構造 | Bâtiment en bois de deux étages avec toit en tuiles木造瓦葺2階建 |
Toutes les akiya au même endroit
Trouvez la maison vacante parfaite au Japon!

La préfecture d'Ishikawa, nichée au bord de la mer du Japon, est réputée pour son riche patrimoine culturel, ses paysages naturels époustouflants et sa gastronomie savoureuse. En comparaison avec d'autres préfectures urbaines comme Tokyo ou Osaka, Ishikawa offre un style de vie plus tranquille et une atmosphère plus détendue, tout en bénéficiant d'une infrastructure moderne. Kanazawa, la capitale de la préfecture, est célèbre pour ses jardins japonais, ses musées et son quartier historique de samouraïs, ce qui attire de nombreuses familles cherchant un cadre de vie agréable. En termes d'accessibilité au logement, Ishikawa se distingue par des prix plus abordables que ceux des grandes métropoles. Les familles peuvent y trouver des maisons et appartements spacieux sans la pression financière souvent associée aux zones urbaines surpeuplées. De plus, la communauté locale est accueillante et l'éducation est de qualité, avec plusieurs établissements internationaux. Ces éléments font d'Ishikawa Ken une destination attrayante pour ceux qui cherchent à s'expatrier au Japon et à profiter d'un équilibre harmonieux entre nature, culture et confort moderne.
AllAkiyas.com met à votre disposition des milliers d'annonces de biens immobiliers japonais à vendre ou à louer. Notre vaste sélection comprend des maisons individuelles, des maisons de ville, des appartements, des locaux commerciaux et des terrains vagues. Nous accordons une attention particulière aux maisons vacantes traditionnelles, appelées akiya (ou kominka en zone rurale), et aux maisons de ville traditionnelles, ou machiya. Vous pouvez facilement rechercher des biens dans toutes les préfectures du Japon selon vos critères spécifiques.