





Ajouter aux listes:✕
Il s'agit d'une propriété en bois de deux étages située dans le quartier de Manai. Il y a de nombreuses pièces et beaucoup d'espace de rangement. Il y a un terrain (1 emplacement 538 mètres carrés).真那井地区にあります、木造二階建ての物件です。部屋数も多く、収納スペースも充実しています。畑(1箇所538平米)あり。
Terrain :土地面積 | 854 m² |
---|---|
Bâtiment :建物面積 | 154 m² |
Échelle :建物規模 | 2 étages / -2階建 / - |
Structure :構造 | En bois木造 |
Bâtit en :建築年 | 1976 |
« MUJI House », une excellente maison à long terme avec une valeur patrimoniale élevée, correspond au degré de résistance aux tremblements de terre 3, au degré de performance d’isolation 6 et à la classe de consommation d’énergie primaire 6 ! La méthode de construction SE rend l’intérieur lumineux et spacieux avec peu de murs ! À environ 3 minutes à pied de l’école primaire Toyooka !資産価値の高い長期優良住宅の『無印良品の家』耐震等級3、断熱性能等級6、一次エネルギー消費量等級6に対応!SE構法により、少ない壁で明るく広々とした室内!豊岡小学校まで徒歩約3分!
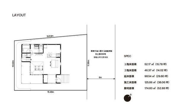
Terrain :土地面積 | 175 m² |
---|---|
Bâtiment :建物面積 | 99 m² |
Échelle :建物規模 | 2 étages hors sol地上2階 |
Structure :構造 | En bois木造 |
Bâtit en :建築年 | 2024 |
Toutes les maisons MUJI sont d’excellentes maisons à long terme. Il s’agit d’une maison à longue durée de vie avec une valeur d’actif élevée et des performances d’isolation de premier ordre au Japon, correspondant à un degré de résistance aux tremblements de terre 3, à un niveau de performance d’isolation 6 et à une classe de consommation d’énergie primaire 6 sur la base de calculs de contraintes admissibles.無印良品の家は全棟長期優良住宅。許容応力度計算による耐震等級3かつ断熱性能等級6、一次エネルギー消費量等級6に対応した国内トップクラスの断熱性能を持つ、資産価値の高い長寿命な住宅です。
Terrain :土地面積 | 175 m² |
---|---|
Bâtiment :建物面積 | 99 m² |
Échelle :建物規模 | 2 étages hors sol地上2階 |
Structure :構造 | En bois木造 |
Bâtit en :建築年 | 2024 |
Toutes les akiya au même endroit
Trouvez la maison vacante parfaite au Japon!
La préfecture d'Oita, située sur l'île de Kyushu, est une destination attrayante pour les familles cherchant à s'expatrier au Japon grâce à son cadre de vie paisible et ses richesses culturelles. Connue pour ses célèbres sources chaudes (onsen), Ōita offre un environnement naturel magnifique avec des montagnes, des plages et une atmosphère relaxante. Comparée à d'autres préfectures japonaises, Ōita présente un coût de la vie relativement bas, notamment en matière de logement. Les prix des loyers y sont plus abordables, permettant aux familles de bénéficier de plus d'espace pour un budget similaire à celui d'une métropole comme Tokyo. L’accessibilité au logement est facilitée par une variété d'options allant des appartements en ville aux maisons traditionnelles dans des quartiers plus ruraux. La ville d'Ōita, en tant que centre administratif, propose également de bonnes infrastructures, des écoles internationales et des services de santé de qualité. En outre, la communauté expatriée y est accueillante, offrant un environnement propice à l’intégration pour ceux qui souhaitent s'intégrer au Japon. En résumé, Ōita se distingue par son équilibre entre un mode de vie tranquille et des commodités modernes, ce qui en fait une option séduisante pour les familles immigrantes.
AllAkiyas.com met à votre disposition des milliers d'annonces de biens immobiliers japonais à vendre ou à louer. Notre vaste sélection comprend des maisons individuelles, des maisons de ville, des appartements, des locaux commerciaux et des terrains vagues. Nous accordons une attention particulière aux maisons vacantes traditionnelles, appelées akiya (ou kominka en zone rurale), et aux maisons de ville traditionnelles, ou machiya. Vous pouvez facilement rechercher des biens dans toutes les préfectures du Japon selon vos critères spécifiques.