
Plus disponible
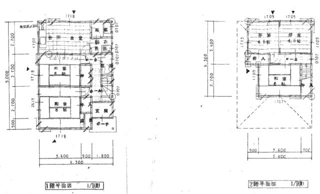
Maison vacante banque [vente] 5 millions de yens Miyata-cho, ville de Hikone, préfecture de Shiga Meiji Maison de 23 ans avec jardin, entrepôt, garage intérieur, débarras 7DK Maison ancienne de 2 étages avec sol en terre, véranda à double face, pièce continue空き家バンク【売買】500万円 滋賀県彦根市宮田町 明治23年築 庭・蔵・インナーガレージ・物置付き7DK2階建古民家 土間・二面縁側・続き間有
| Terrain :土地面積 | 305 m² |
|---|---|
| Bâtiment :建物面積 | 126 m² |
| Structure :構造 | Bâtiment en bois à deux étages木造2階建 |

◆Environ 5 minutes en voiture jusqu’à Bell Road ! Un quartier très pratique avec de nombreuses installations commerciales. ◆Toutes les installations de plomberie ont été rénovées (cuisine, toilettes, salle de bain, lavabo, chauffe-eau). ◆Environ 11 minutes à pied jusqu’à l’école primaire Kinjo. ◆Quartier résidentiel tranquille.◆ベルロードまで車で約5分!商業施設が充実の利便性の高いエリア。◆水回りはすべて新調済み(キッチン、トイレ、浴室、洗面台、給湯器)。◆金城小学校まで徒歩約11分。◆閑静な住宅街。
| Terrain :土地面積 | 170 m² |
|---|---|
| Bâtiment :建物面積 | 115 m² |
| Échelle :建物規模 | 2 étages hors sol地上2階 |
| Structure :構造 | En bois木造 |
| Bâtit en :建築年 | 1996 |

Pourquoi ne pas commencer à vivre dans une vieille maison folklorique dans un quartier où la vie est pratique, il y a un arbre géant dans la cour et vous pouvez obtenir un effet d’ions négatifs. Il y a aussi un rhinocéros doré. Le rhinocéros doré a un effet calmant et relaxant, et a un effet positif sur l’esprit et le corps.生活至便の良い地域で古民家生活を始めませんか、中庭には巨木がありマイナスイオン効果が得られます。又、金木犀の木もあります。金木犀には精神安定やリラックス効果が有り心身に良い影響をもたらします。
| Terrain :土地面積 | 354 m² |
|---|---|
| Bâtiment :建物面積 | 130 m² |
| Échelle :建物規模 | 1 étage hors sol地上1階平屋 |
| Structure :構造 | En bois木造 |
| Bâtit en :建築年 | 1920 |

Pourquoi ne pas commencer à vivre dans une vieille maison folklorique avec une vie autosuffisante et une maison pittoresque en cultivant les champs sur un grand site (il y a un puits qui souffle, lavant les légumes et rafraîchissant les légumes d’été, et les carpes nageant dans un étang séparé).『川端(かばた)』(自噴する井戸があり野菜を洗ったり夏野菜を冷やしたり、別池では鯉が泳いでいます)のある家広い敷地で畑を耕し自給自足の生活と趣のあるお家で古民家生活始めてみませんか。
| Terrain :土地面積 | 853 m² |
|---|---|
| Bâtiment :建物面積 | 293 m² |
| Échelle :建物規模 | 2 étages hors sol地上2階 |
| Structure :構造 | En bois木造 |
| Bâtit en :建築年 | 1952 |
Toutes les akiya au même endroit
Trouvez la maison vacante parfaite au Japon!

La préfecture de Shiga, située au bord du lac Biwa, offre un cadre de vie unique qui combine la beauté naturelle et la tranquillité. Comparée à d'autres préfectures japonaises comme Tokyo ou Osaka, Shiga est souvent perçue comme moins surpeuplée et stressante, ce qui en fait un lieu idéal pour les familles. Le coût du logement y est généralement plus abordable. Dans les grandes villes comme Otsu ou Hikone, les familles peuvent trouver des maisons à des prix raisonnables, tout en ayant accès à des commodités modernes et à de bonnes écoles. De plus, Shiga est bien desservie par les réseaux de train, ce qui facilite les déplacements vers les centres urbains environnants. La région bénéficie également d'un environnement riche en culture, avec des festivals traditionnels, des temples historiques et une gastronomie locale appréciée. Pour les expatriés, cela représente un excellent compromis entre la vie rurale apaisante et l'accessibilité aux grandes métropoles. En somme, Shiga Ken attire ceux qui recherchent un style de vie équilibré, tout en offrant des opportunités d'intégration et d’épanouissement familial au cœur du Japon.
AllAkiyas.com met à votre disposition des milliers d'annonces de biens immobiliers japonais à vendre ou à louer. Notre vaste sélection comprend des maisons individuelles, des maisons de ville, des appartements, des locaux commerciaux et des terrains vagues. Nous accordons une attention particulière aux maisons vacantes traditionnelles, appelées akiya (ou kominka en zone rurale), et aux maisons de ville traditionnelles, ou machiya. Vous pouvez facilement rechercher des biens dans toutes les préfectures du Japon selon vos critères spécifiques.