
Vérifiez disponibilitéAjouter aux listes:✕

Extrait de la page de publication : n°1306 ... ݒ n@ÎRs_304-1
Note du prix : @i@1200~@[] (probablement 12 millions de yens)
Terre : 741,4u (environ 224 pings)
Bâtiment : 155,36U (46,99 tsubo)
Autres fragments originaux : n685.9u / 55.5u / i@w 1,36 km / i@IC 960j掲載ページ抜粋: No.1306 ... ݒn@ÎRs_304-1
価格表記: @i@1200~@[](おそらく1,200万円)
土地: 741.4u(約224坪)
建物: 155.36u(46.99坪)
その他原文断片: n685.9u / 55.5u / i@w 1.36km / i@IC 960j
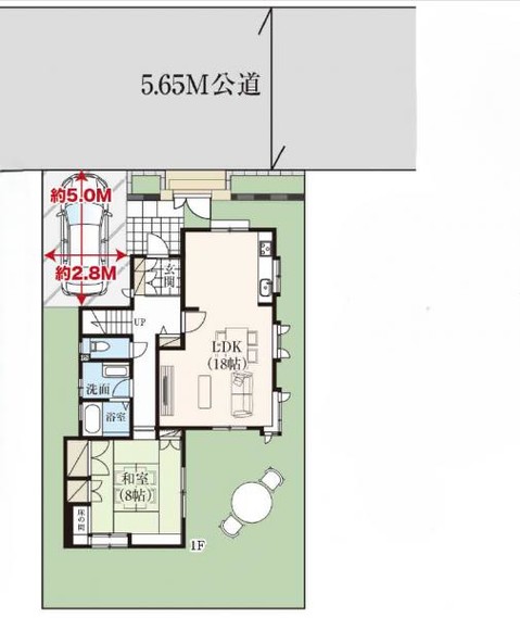
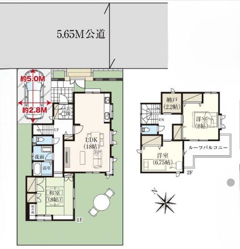
| Terrain :土地面積 | 741 m² |
|---|---|
| Bâtiment :建物面積 | 155 m² |

Rangement spacieux et balcon spacieux. Il est situé sur une colline et il n’y a aucun bâtiment autour. Mont Fuji et feux d'artifice pour vous tout seul. Il y a aussi un garde-manger avec beaucoup de rangement, ce qui le rend parfait pour la préparation aux catastrophes.広々収納、広々バルコニー。高台にあり周りにさえぎる建物がありません。富士山や花火が独り占め。また、収納たっぷりのパントリーがあり、災害への備えもばっちり。
| Terrain :土地面積 | 103 m² |
|---|---|
| Bâtiment :建物面積 | 106 m² |
| Échelle :建物規模 | 3 étages hors sol地上3階 |
| Structure :構造 | En bois木造 |
| Bâtit en :建築年 | 2007 |
Toutes les akiya au même endroit
Trouvez la maison vacante parfaite au Japon!

Saitama Ken, situé au nord de Tokyo, offre un style de vie attrayant, particulièrement pour les familles. Sa proximité avec la capitale permet de bénéficier des commodités urbaines tout en jouissant d'un environnement plus calme et résidentiel. Les infrastructures, notamment les écoles, les parcs et les centres commerciaux, sont bien développées, facilitant ainsi le quotidien.
Trouver un logement abordable peut être plus facile à Saitama que dans Tokyo, où les prix sont élevés. Les loyers y sont généralement inférieurs, et vous pouvez trouver des appartements spacieux ou des maisons individuelles. Cela en fait une option prisée par ceux qui cherchent à combiner vie urbaine et tranquillité.
En termes de qualité de vie, Saitama se distingue par un cadre de vie agréable, une bonne sécurité et des activités culturelles. Le coût de la vie est également plus bas comparé à Tokyo, même si certains produits alimentaires peuvent être équivalents. Dans l'ensemble, Saitama Ken représente un excellent choix pour ceux qui souhaitent s'installer au Japon, offrant un équilibre entre accessibilité et vie de famille, tout en restant connecté à la dynamique de Tokyo.
AllAkiyas.com met à votre disposition des milliers d'annonces de biens immobiliers japonais à vendre ou à louer. Notre vaste sélection comprend des maisons individuelles, des maisons de ville, des appartements, des locaux commerciaux et des terrains vagues. Nous accordons une attention particulière aux maisons vacantes traditionnelles, appelées akiya (ou kominka en zone rurale), et aux maisons de ville traditionnelles, ou machiya. Vous pouvez facilement rechercher des biens dans toutes les préfectures du Japon selon vos critères spécifiques.