




Ajouter aux listes:✕
Il s'agit d'une maison avec un magasin, avec l'espace de vie et l'espace de stockage séparés.
Il est situé dans le quartier commerçant du centre-ville, à proximité des supermarchés, des hôpitaux, de la mairie, etc., ce qui le rend pratique pour la vie quotidienne. À 5 minutes à pied de la gare d'Iyotetsu Gunnaka. L'école primaire Gunchu se trouve à 9 minutes à pied. Le lycée Konan Junior High School se trouve à 15 minutes à pied. Il y a également des sources chaudes à proximité. Statut actuel transmis.居住空間と店舗空間が分かれている店舗付き住宅です。
中心市街地の商店街にあり、スーパーや病院、市役所などにも近く生活に便利です。伊予鉄郡中駅より徒歩5分。郡中小学校まで徒歩9分。港南中学校まで徒歩15分。近くに温泉もあります。現状引き渡し。
Terrain :土地面積 | 340 m² |
---|---|
Bâtiment :建物面積 | 339 m² |
Échelle :建物規模 | 2 étages / -2階建 / - |
Structure :構造 | Autres : Bois et acier légerその他 木造・軽量鉄骨 |
Bâtit en :建築年 | 1932 |
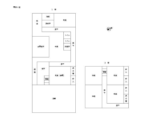
Cette propriété a été contractée avec une personne qui était prête à l’acheter l’autre jour, mais le contact a été perdu et elle a été réinscrite. Je l’ai acheté sur ce site il y a trois ans et j’avais l’intention de l’utiliser comme bureau partagé et maison partagée comme nouvelle base, mais je n’ai pas eu d’autre choix que de le vendre en raison de ma mauvaise santé. Il est situé à Nakayama, dans la ville d’Iyo, et constitue un emplacement pratique qui permet d’accéder en moins d’une heure à la destination touristique de la ville d’Uchiko et à la capitale préfectorale de la ville de Matsuyama en 1 heure. L’environnement environnant est à distance de marche des dépanneurs, des stations-service, des supermarchés, de la gare JR Iyo Nakayama, des arrêts de bus, des écoles, etc., ce qui en fait un quartier idéal pour vivre à la campagne. Il y a peu de catastrophes naturelles telles que les typhons, et bien qu’il s’agisse d’une zone rurale, c’est une région où vous pouvez vivre confortablement et l’esprit tranquille. La propriété présente une structure unique dans laquelle deux bâtiments sont reliés, et il y a des chambres de style occidental et japonais au deuxième étage, chacune d’eこの物件は、先日購入意思のある方と契約を進めておりましたが、連絡が途絶えてしまい再掲載となりました。3年前にこちらのサイトで購入し、新たな拠点としてシェアオフィスおよびシェアハウスとしての利用を計画していましたが、やむを得ず体調不良により売却を決めました。所在は伊予市中山に位置し、観光地・内子町まで車で10分、県庁所在地・松山市へも1時間以内でアクセス可能な便利な場所です。周辺環境は徒歩圏内にコンビニ、ガソリンスタンド、スーパー、JR伊予中山駅、バス停、学校などが揃っており、田舎ながらも生活に便利な地域です。台風などの自然災害も少なく、田舎ながらも住みやすく安心して暮らせるエリアです。物件の特徴は2棟が連結した独特の構造で、2階には洋室と和室があり、それぞれ独立した階段でアクセスできます。また、2階には広めのベランダがあり、洗濯物干し場や趣味のスペースとして活用可能です。トイレは洋式にリフォーム済みで、快適にお使いいただけます。部屋数は1階と2階を合わせて6部屋あります(キッチンや収納スペースは除いた部屋数です)。駐車スペースについて、玄関には広いコンクリートの土間があり、自転車やバイクだけでなく、車種によっては駐車も可能です。さらに近隣には月額3,000円で借りられる貸し駐車場もあります(3年前購入時に聞いた価格)。空気の入れ替えに入っておりますが、少し痛んでいるところもあります。以前の所有者が、令和3年1月まで3万円で賃貸していました。購入後に清掃・修繕費用に150万円ほどかけております。家族での居住はもちろん、シェアハウスやシェアオフィスとしても十分なスペースがあり、さまざまな形での活用が可能です。屋外のスペースを使った趣味の活動や、テレワークの拠点としても最適かと思います。引き渡しのタイミングはご相談に応じますので、お気軽にご連絡ください。
Terrain :土地面積 | 126 m² |
---|---|
Bâtiment :建物面積 | 156 m² |
Échelle :建物規模 | 156㎡156㎡ |
Structure :構造 | Bloc de béton et structure en bois (1er étage : 2 pièces / コンクリートブロック造りと木造(1階:2部屋/2階:4部屋) |
Toutes les akiya au même endroit
Trouvez la maison vacante parfaite au Japon!
La préfecture d'Ehime, située dans la région de Shikoku au Japon, offre plusieurs avantages en termes de niveau de vie par rapport aux préfectures voisines. Ehime est connue pour ses paysages naturels époustouflants, notamment ses côtes pittoresques, sa verdure luxuriante et ses sources chaudes (onsen). Ehime bénéficie d'un climat relativement doux avec des températures confortables toute l'année, ce qui en fait un choix attrayant pour ceux qui préfèrent ne pas subir de chaleur ou de froid extrême.
Le coût de la vie à Ehime est généralement inférieur à celui des grandes zones urbaines comme Tokyo ou Osaka. Les coûts du logement, de la nourriture et du transport sont également plus abordables, contribuant ainsi à un niveau de vie raisonnable. Si vous êtes ouvert à la rénovation, acquérir des compétences de base en construction ou en rénovation ou embaucher des professionnels peut faciliter l'achat d'une propriété à faible coût ayant besoin de réparations. Bien que trouver un logement abordable puisse nécessiter certains efforts, les avantages de vivre dans une région aussi pittoresque et culturellement riche peuvent être substantiels.
AllAkiyas.com met à votre disposition des milliers d'annonces de biens immobiliers japonais à vendre ou à louer. Notre vaste sélection comprend des maisons individuelles, des maisons de ville, des appartements, des locaux commerciaux et des terrains vagues. Nous accordons une attention particulière aux maisons vacantes traditionnelles, appelées akiya (ou kominka en zone rurale), et aux maisons de ville traditionnelles, ou machiya. Vous pouvez facilement rechercher des biens dans toutes les préfectures du Japon selon vos critères spécifiques.