
Vérifiez disponibilitéAjouter aux listes:✕

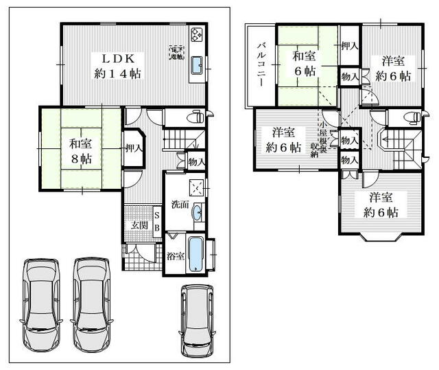
La maison spacieuse construite sur 178 tsubo de terrain est une pure maison de style japonais où le savoir-faire brille partout. Assurez-vous de découvrir non seulement le parc mais également la splendeur du jardin que vous pouvez voir depuis votre chambre. Il fait 9DK+S, il peut donc être utilisé comme résidence pour une grande famille ou deux ménages.土地178坪にゆったりと建てられた家屋は、職人技が随所に光る純和風の家屋です。敷地内だけでなく、お部屋から眺める庭園の見事さも現地で是非体感してください。9DK+Sですので、大家族や二世帯住居としてもご活用いただけます。
| Terrain :土地面積 | 590 m² |
|---|---|
| Bâtiment :建物面積 | 255 m² |
| Échelle :建物規模 | 2 histoires2階建 |
| Structure :構造 | En bois木造 |
| Bâtit en :建築年 | 1981 |
Toutes les akiya au même endroit
Trouvez la maison vacante parfaite au Japon!

La préfecture d'Osaka, souvent considérée comme le cœur économique du Kansai, offre un cadre de vie dynamique et diversifié, attirant de nombreuses familles expatriées. Comparée à d'autres préfectures, Osaka se distingue par son mélange unique de modernité et de traditions, avec une culture gastronomique vibrante, des festivals couleurs locales et une vie nocturne animée. Le coût de la vie, bien que relativement compétitif par rapport à Tokyo, peut offrir des options de logement plus accessibles pour les expatriés, surtout dans les quartiers périphériques ou en banlieue. Les familles peuvent bénéficier de logements spacieux à des prix plus abordables que dans les grandes métropoles. Par ailleurs, les infrastructures publiques à Osaka sont remarquablement développées, avec un excellent réseau de transports en commun facilitant l'accès aux centres d'intérêt culturels et éducatifs. Les écoles internationales et les établissements d'enseignement de qualité ajoutent également à l'attrait pour les familles. En somme, la préfecture d'Osaka Fu présente une qualité de vie attrayante, un environnement culturel riche et une accessibilité au logement qui en font une destination de choix pour celles et ceux qui envisagent de s'expatrier au Japon.
AllAkiyas.com met à votre disposition des milliers d'annonces de biens immobiliers japonais à vendre ou à louer. Notre vaste sélection comprend des maisons individuelles, des maisons de ville, des appartements, des locaux commerciaux et des terrains vagues. Nous accordons une attention particulière aux maisons vacantes traditionnelles, appelées akiya (ou kominka en zone rurale), et aux maisons de ville traditionnelles, ou machiya. Vous pouvez facilement rechercher des biens dans toutes les préfectures du Japon selon vos critères spécifiques.