





Ajouter aux listes:✕
Il s’agit d’une maison en bois de 90 ans entourée de montagnes et située près de la rivière Mukuri. Le lac Hakuryu, qui est connu comme un endroit célèbre pour les cerisiers en fleurs dans le lac du barrage, est à environ 15 minutes en voiture. C’est une zone rurale idyllique avec des rizières réparties autour. Il n’y a pas de chemins de fer, d’installations publiques, d’écoles, de magasins, etc. à proximité, donc une voiture est essentielle pour la vie quotidienne. Il faut environ 30 minutes pour se rendre aux villes de Higashi-Hiroshima et Mihara, et environ 1 heure pour se rendre à la ville d’Hiroshima par l’autoroute, mais c’est parfait si vous voulez vivre une vie riche en nature loin de l’agitation de la ville.山々に囲まれ、椋梨川の近くにある築90年の木造住宅です。ダム湖で桜の名所として知られる白竜湖へは車で15分ほど。周囲に田んぼが広がるのどかな農村地帯です。鉄道、公共施設、学校、店などは近くにないため、日常生活に車は必須。東広島市内・三原市内まで30分前後、高速道路を使って広島市内まで1時間前後かかりますが、都市の喧騒から離れて自然豊かな暮らしを望むならうってつけです。
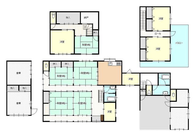
Terrain :土地面積 | 670 m² |
---|---|
Bâtiment :建物面積 | 135 m² |
Échelle :建物規模 | 2 histoires2階建て |
Structure :構造 | Maison en bois à un étage木造平屋 |
Bâtit en :建築年 | 1930 |
◆ Pourquoi ne pas changer d’avis et commencer une vie à la campagne en autosuffisance ?
◆ La superficie répertoriée comprend des rizières et des forêts.
◆ En plus des bâtiments répertoriés, les granges et le stockage du matériel agricole sont inclus
◆ 13 minutes en voiture de la station routière « Yogansu Hakuryu » En plus des légumes frais et du gibier, dans un four à pierre
Laissez-vous tenter par des aliments gastronomiques tels que la pizza et les pâtes◆心機一転、自給自足の田舎生活をはじめませんか?
◆記載の土地面積に田、山林が含まれます。
◆記載の建物以外に納屋、農機具置場が含まれます
◆道の駅「よがんす白竜」まで車で13分 新鮮野菜やジビエの他石焼窯で
ピザやパスタなどのグルメを堪能
Terrain :土地面積 | 7394 m² |
---|---|
Bâtiment :建物面積 | 106 m² |
Échelle :建物規模 | 1er étage hors sol地上1階 |
Structure :構造 | En bois木造 |
Bâtit en :建築年 | 1965 |
Toutes les akiya au même endroit
Trouvez la maison vacante parfaite au Japon!
S'installer dans la préfecture de Hiroshima offre un style de vie agréable et équilibré. Cette région est connue pour son riche patrimoine culturel, ses paysages pittoresques et sa cuisine délicieuse, comme les okonomiyaki. La ville d'Hiroshima, célèbre pour son histoire, propose une infrastructure moderne, des écoles internationales et de nombreuses activités pour les familles.
En ce qui concerne le logement, Hiroshima Ken offre des options plus abordables que de nombreuses grandes métropoles japonaises, comme Tokyo et Osaka. Les prix des loyers y sont généralement inférieurs, ce qui permet aux familles de trouver des logements spacieux et confortables sans trop d’efforts. Les zones rurales environnantes offrent également des maisons à des prix attractifs, mais avec un accès différent aux services urbains.
En termes de qualité de vie, Hiroshima Ken se distingue par une atmosphère conviviale, des transports en commun efficaces et une forte communauté d'expatriés. Le coût de la vie y est également plus faible qu'à Tokyo, ce qui permet de profiter d'un bon équilibre entre le travail et les loisirs. En résumé, Hiroshima Ken est une excellente option pour les familles cherchant une vie sereine au Japon, avec des logements abordables et une qualité de vie élevée.
AllAkiyas.com met à votre disposition des milliers d'annonces de biens immobiliers japonais à vendre ou à louer. Notre vaste sélection comprend des maisons individuelles, des maisons de ville, des appartements, des locaux commerciaux et des terrains vagues. Nous accordons une attention particulière aux maisons vacantes traditionnelles, appelées akiya (ou kominka en zone rurale), et aux maisons de ville traditionnelles, ou machiya. Vous pouvez facilement rechercher des biens dans toutes les préfectures du Japon selon vos critères spécifiques.